
这是一个七层的公寓项目,并带有底商,它坐落在科多巴市的巴兹将军区。



设计师希望公寓的客厅和卧室空间能够有一个舒适而宽敞的尺度。

规范规定的的分层在这里成了一个有利条件,设计师们设计了一系列金属网格阳台作为主结构的附加物,这样一来每一个公寓都可以有独立的室外延伸空间。



















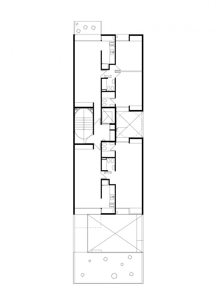
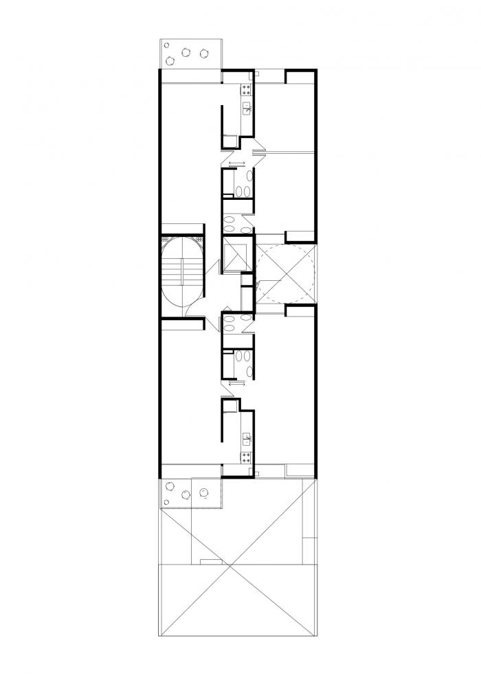
在自习研究了卫生功能的最佳位置后设计师将它移到了建筑的中央。它们的放置和一个技术天花板连接到一起,这里所有的装置都是从天花板上悬挂而下,者将有利于将来的维护。




最后为了市政府所要求的艺术装置,该项目举办了一场竞赛,有超过20位艺术家参与其中,得奖的提案是“露娜·卡塔马卡”。这是一个能够在夜晚发光的月亮形装置,它被安放在了建筑的屋顶之上。



设计图纸

△ 平面图

△ 平面图

△ 立面图
项目信息
项目类型:居住建筑
项目地点:CÓRDOBA,阿根廷
建筑设计:Carlos Alejandro Ciravegna
面积:1300m²
摄影师:Gonzalo Palacios,Sebastián Alonso
技术总监:Facundo Maidana
结构计算:Gustavo Gabriel Gonzales
艺术作品:Junco – Pon
主承包商:Juan Condori
微信公众号:xuebim
关注建筑行业BIM发展、研究建筑新技术,汇集建筑前沿信息!
← 微信扫一扫,关注我们+

BIM建筑网





评论前必须登录!
注册