

本项目位于昆明市吴井路塘子巷社区,该建筑群为旧工业厂区职工宿舍楼,属于昆明市规划发展遗留板块。周边商业板块发展迅速,业态丰富,很有商业活力。业主方是云南本土酒店行业新秀,整个运营管理团队专业化、年轻化,活力四射。经过严格的市场调查策划,私悦酒店又一新店选址就在这里,势必化茧成蝶才能重生。


主题创意:“绽放•蝶恋花”
蝶恋花一词本为词牌名,这里引用其本意,昆明被誉为春城,四季鲜花盛开,许多时候外界人士认知云南,常常是从一束鲜花开始的,花卉产业也是云南的重要支柱产业。
业主方早就想从鲜花的名片效应中获得灵感,让企业的品牌如春城的鲜花常开不败,让酒店的空间飘荡着鲜花的芬芳,让客人下榻酒店犹如坠入了花的海洋。


当然,更想让酒店的品牌像鲜花般受人喜爱。愿景是美好的,现实却很不容乐观,怎样把这些闪烁着爱的光芒的想法植入到酒店的空间当中去,让梦想照见现实,是本案的一大挑战。
为此,主案设计师带领设计团队的小伙伴们几次进行实地查勘,采集最准确的空间数据,航拍主体建筑在现实中的真实面貌以便为最终的创意提供切实可行的依据。
在业主方殷切的期望中,我们迎来了第一次的方案汇报。“蝶恋花”创意的唯美动人、易于实施,让业主方运营团队激动不已,85后的董事长露出了如花的笑容。


空间打破了传统的布局方式,运用雕塑的手法塑造空间的维度,以鲜花的抽象概念表达空间的特质,引蝶入室过度到彩蝶纷飞的装饰手法使得“蝶恋花”的主题不言而喻。
纵然如此,空间该有的功能性仍能顾及周全,设计成就空间的价值观得以统一。


△ 效果图
至于花香从哪来?这个问题就不是问题,大家都能做到,酒店运营团队却真的吻遍了几百种香薰,选择到所需的香型。




设计理念表达:
突破空间状态,多种艺术形式融于室内设计当中。
调用人体通感本能,感知室内空间氛围。
切合时代美学发展趋势,塑造新生代酒店空间。




主要材料:
天然大理石、品牌瓷砖、复合地板、木质板面、不锈钢及钢材、工艺玻璃、定制家具及软装布艺、内墙乳胶漆、采购灯具、品牌卫浴。











△ 实景图
设计图纸

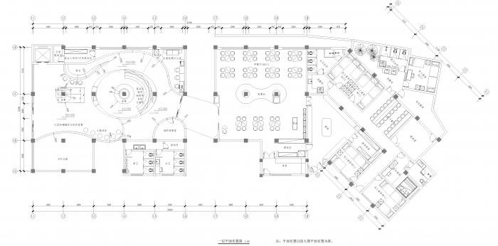
△ 一层平面图

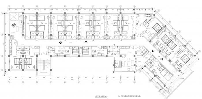
△ 二层平面图

△ 大堂中央艺术示意图

△ 立面图

△ 梁柱处理图

△ 椭圆放线图

△ 造型节点1

△ 造型节点2
项目信息
项目名称:蝶恋花私悦酒店
项目类型:精品酒店
项目地点:中国 昆明
设计机构:长空创作
主创设计:张宝华
设计团队:刘思唐 靖旭初 蒋应强 王春艺 李泉江 周林华
项目摄影:靖旭初
项目主材:天然大理石、品牌瓷砖、复合地板、木质板面、不锈钢及钢材、工艺玻璃
建筑面积:4000平方米
建成时间:2019年6月
建筑结构:砖混
建筑层高:3.2米
项目定位:新生代主题商务酒店
消费群体:90后
客房数量:36个标准间、36个单间、8个套房
投资估算:900万元人民币

BIM建筑网





评论前必须登录!
注册