
©亮点影像

©亮点影像
新北京理工大学体育中心位于北京卫星城良乡,连同新的体育馆,二者一起构筑了新校区的入口。体育中心为学校增添了约15700㎡的运动空间,包括3000个座位的篮球场、10条泳道的游泳馆、健身房、武术空间以及拳击室、跆拳道、乒乓球活动空间等。

△ 总平面图

©北京地平线航拍

©atelier Alter Architects 时境建筑
北京理工大学是一所长期专注于军事科学的大学,在这个项目中,我们从莱奥纳多·达·芬奇的飞行器以及军事科学中广泛应用的抛物线中汲取灵感,延续了达·芬奇关于科学、建筑和艺术之间的跨学科对话:在研究了相关学科的艺术和科学史之后,创造了三个漂浮在空中的相关联的表面作为建筑物的屋顶,空间网架结构支撑起这些曲面构成的拓扑关联体的屋面,直立锁边的金属屋面系统和幕墙体系覆盖整个屋面和立面。金属铝大量使用于屋顶、天花板和立面上,使建筑具有统一的金属色调,呼应了军事领域中的工业美学。

△ 概念分析

△ 屋顶构成图

△ 施工现场©atelier Alter Architects时境建筑

©北京地平线航拍
正如达·芬奇所倡导的“文艺复兴人”一样,个体应该在身体和心智方面都表现出强大的优势。北京理工大学体育中心旨在建立一个多维的开放的校园,同时培养学生的心智与身体,鼓励学生的在校际之间开展对话。我们在城市、建筑两个维度上希望能够传达出对话空间可能,主要是通过平面和剖面两个层面上创造出空间的渗透性,在城市维度上:篮球馆位于建筑的东南角,将体育馆与校园主要交通流线和街道生活融为一体;而西部的游泳池则与校园中心广场相连。

△ 一层平面图

△ 室内流线分析

©金伟琦

©atelier Alter Architects时境建筑

©atelier Alter Architects时境建筑

©atelier Alter Architects时境建筑

©atelier Alter Architects时境建筑

©亮点影像

©atelier Alter Architects时境建筑
在建筑尺度上:由于篮球馆的座位被抬高了一层,下方的空间在首层都是相通的,因而室内与室外也形成了很好的联系——从街道到校园,在首层建立了一个新的地平线和视觉渗透;一条内置的入口长廊置于游泳池和篮球馆之间,其南北两个出口正好连接了此前分割的南北校区。

©金伟琦

©atelier Alter Architects时境建筑

©亮点影像

©atelier Alter Architects时境建筑

©金伟琦

©金伟琦
在三楼的篮球座位顶部,有一个大窗户,可以俯瞰入口长廊、大厅对面的游泳池以及游泳池一侧的校园。

©金伟琦

©金伟琦

©atelier Alter Architects时境建筑
在二楼、三楼和四楼,游泳池后面的运动室——跆拳道、乒乓球和测试中心——都有不同的路径进入游泳池,并且共享来自游泳上方的天窗。由于拥有透明的空间界面,垂直的空间穿透是通过剖面上相互嵌套的功能得以实现。

△ 功能分析

©金伟琦

©金伟琦

©金伟琦

©金伟琦

©金伟琦

©金伟琦

©金伟琦

©亮点影像

△ 屋顶分化

©atelier Alter Architects时境建筑

©亮点影像

©亮点影像

©亮点影像

©金伟琦

©atelier Alter Architects时境建筑

©atelier Alter Architects时境建筑

©atelier Alter Architects时境建筑
模型与图纸

△ 模型1

△ 模型2

△ 负一层平面图

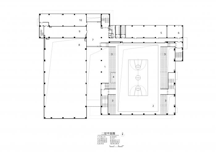
△ 二层平面图

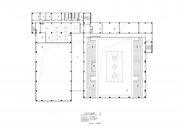
△ 三层平面图

△ 四层平面图

△ 屋顶平面图

△ 剖面1-1 & 2-2

△ 剖面3-3 & 4-4

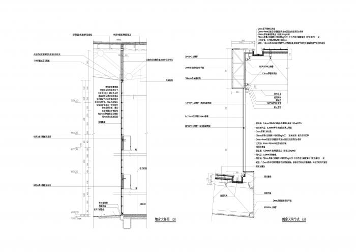
△ 节点大样
项目信息
业主:北京理工大学
位置:北京, 中国
类别:体育馆
建筑方案主创与室内设计:Atelier Alter Architects时境建筑
设计总包:中国中元国际工程有限公司
设计咨询:北京汉华建筑设计有限公司
主创设计师:张继元,卜骁骏
建筑设计团队:李振伟,覃凯,蒋萍,黄玮,刘同伟,杜德虎,张家赫,颜然,郑来荣,梅家铭,宋利东,
赵潇潇,张晶石,韦必达,熊伟,陈威狄,郭晓晴,达雪芸,黄博,马磊磊,曹辉
结构:中国中元国际工程有限公司
机电:中国中元国际工程有限公司
室内设计:Atelier Alter Architects时境建筑
景观设计:中国中元国际工程有限公司
幕墙顾问:深圳朋格幕墙设计咨询有限公司
灯光顾问:ZDP中辰远瞻 韩文晶工作室,京运佑锦照明设计
声学顾问:中国中元国际工程有限公司
工程监理:北京中景恒基工程管理有限公司
建设方:北京建工集团有限责任公司
精装施工:北京森洪利装修工程有限公司
幕墙施工:山东天幕集团总公司
厂家:霍高文建筑系统( 广州 )有限公司,太通建设有限公司,北京博隆盛工贸有限公司
造价:1.52亿人民币
面积:15692平方米
工程竣工: 2019.07
摄影师:金伟琦,Highlite Images (亮点影像),Atelier Alter Architects时境建筑
图片版权:Atelier Alter Architects时境建筑

BIM建筑网





评论前必须登录!
注册