

本项目位于距离济南市中心20公里的长清经济开发区,该区域尚未被大面积开发,周边环境杂乱,高压线塔建在周围杂草丛生的农田里。为了让参观者获得最佳的观感体验,设计师隔绝周边环境,打造一个相对内向封闭的空间。


建筑设计的灵感来自于王维《山居秋暝》的诗句“空山新雨后,天气晚来秋。明月松间照,清泉石上流 ”。通过四个“石块”体量的呼应交错,犹如一股清泉从石缝中流淌而出。建筑通体由白色冲孔板组装而成,纯净而淡雅的文化气韵扑面而来。北侧沿界面通过如山峰瀑布的跌水设计而成,结合绿植微地形,使得整个建筑清新脱俗,充满了文化气息。

建筑的主要功能为住宅销售展示,产业展示和办公。主入口位于西侧,为了消除周围杂乱环境的视觉影响,广场四周设计了具有几何感的小山坡,随着人们深入场地缓缓抬高,逐渐遮挡住周边环境。山,水,玉石,在这块尚未开发的荒野里相互融合,交相辉映。



在建筑主体外设置第二层表皮——冲孔板,使建筑被笼罩在冲孔板内,形成一个相对封闭的空间。幕墙体块倾斜,相互依偎,内部相互交错,体块交接形成的缝隙自然的成为建筑的入口。所有的事件都发生在冲孔板幕墙覆盖的空间内部,透过不规则的缝隙与外界连通。建筑内部透过白色的冲孔板若隐若现,夜幕降临,灯光透过冲孔板,整个建筑透着光,如同一块莹润的玉石,伫立在荒野之上。






冲孔板的冲孔率根据建筑内部的功能由上至下渐变。建筑一二层的主要功能为展示区域,冲孔率较大,更为通透。而建筑的三四层主要功能为办公,需要一个相对私密的环境,所以冲孔率较小,在保证采光的情况下相对更加封闭。渐变的冲孔板让建筑立面的通透性也从上到下逐渐变化,使建筑整体表皮富有层次感。冲孔板本身具有的遮阳效果,犹如一层生态皮肤,让建筑更加环保。同时在玻璃幕墙与冲孔板之间形成的灰空间,丰富了人们在建筑内部的空间感受。



景观的设计上,为了呼应济南”泉城”的盛名,沿主干道的展示面设置了大面积的叠水,水从4米高的石阶上层跌而下。产业展厅的主入口设置在二层,被隐藏在叠水后方,需要通过连桥才能到达。走上连桥,外侧是涌动的叠水,内侧是宁静的水面,点缀着一棵迎客松,一侧是动一侧是静,体现出明月松间照,清泉石上流的意境,在进入建筑前就已经将人从荒芜拉进了一个世外桃源。



建筑的室内也同样是室外的延续,入口处冲孔板元素从室外直接延伸至内部。一个四层通高的大中庭作为沙盘区,成为整个空间的焦点。从天窗引入自然光,四周用冲孔板围合,形成了一个极富仪式感的空间。围合的冲孔板上开启的观景窗可以让楼上的人俯瞰沙盘,同时形成互动,使空间富有活力。



一层为住宅销售展示中心,主入口和多功能休息区的墙面是建筑形态延伸到室内,延续建筑简洁,体块感的设计。四层通高中庭,立面的冲孔板材质,使得中庭空间效果极其整体和震撼。中庭上空的两座连桥将不同楼层空间之间相互连接激活,镜面不锈钢材质的表皮反射着整个中庭空间,犹如在空中悬浮。幕墙上的观景窗,方便来访者俯瞰一层沙盘也使得空间变得通透。下沉的沙盘增加了空间的层次和仪式感。中庭设计给人以强烈的视觉冲击力,犹如空中悬浮的盒子。






二层为产业展厅,室内立面利用建筑的形体,将二层的建筑入口的外墙形态延续到室内,立面依据整个建筑的轮廓进行设计,整个墙面呈现如折纸般的形态,和建筑的语言统一。“石块”的意向穿插运用贯穿整个展厅,在平面上从入口的接待区至各个展示空间串联起来,通过墙面的转折,使得空间产生了更多变化。中庭立面上的冲孔板,作用旨在统一中庭效果,在立面上设置观景窗,使处在不同楼层和空间的来访者产生更多观景、互动效果。

建筑、景观和室内的一体化设计使得整个项目能够将设计理念一以贯之,在与周边环境隔离开的同时也成为整个区域的焦点,满足了其作为展示中心和售楼处所需的展示性和昭示性,为这片区域的发展带来新的机遇。



设计图纸

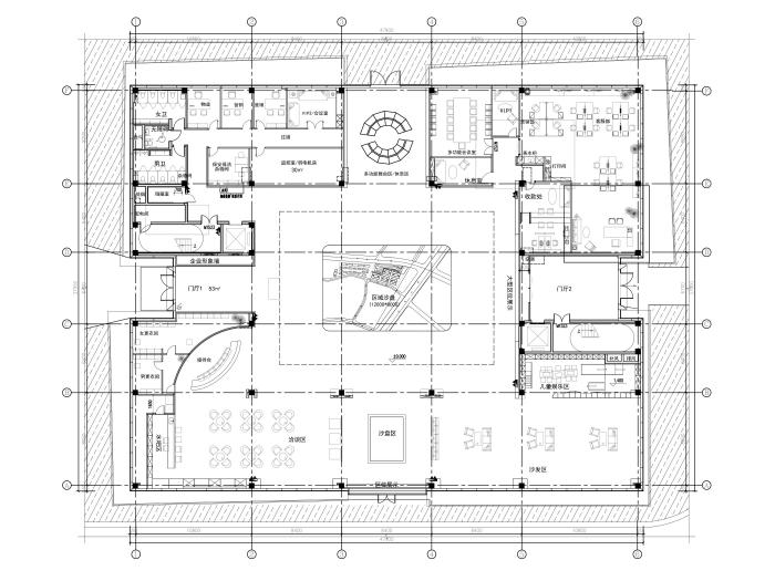
△ 一层平面图

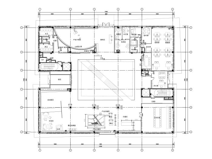
△ 二层平面图

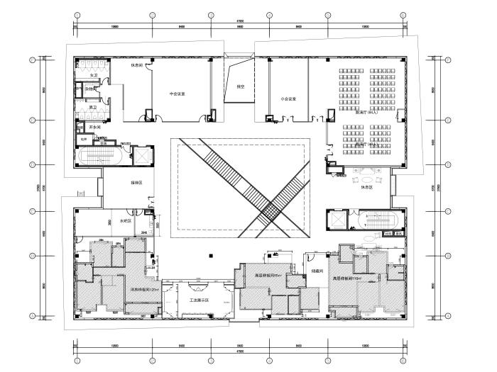
△ 三层平面图

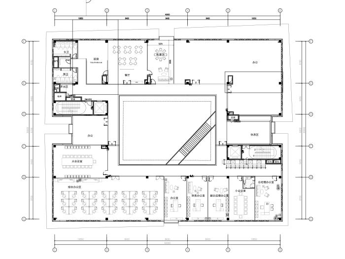
△ 四层平面图
项目信息
项目名称:济南水发地理信息产业园展示中心
项目地址:山东省济南市长清区
建筑面积:5200㎡
设计方:aoe | 事建组
公司网站:www.aoe-china.com
联系邮箱:[email protected]
项目设计&完成年份:2019 – 2020
主创设计师:温群
建筑设计团队:李根、高士鑫、李佳瑞 、颜苏青
室内设计团队:祝丹、杜婧、刘静怡
景观设计团队:刘柳青、王晔
照明设计单位:北京光湖普瑞照明设计有限公司
委托方:山东水发建融建设开发有限公司
摄影版权:吴鉴泉
品牌:特普丽,阿鲁克邦、京南方

BIM建筑网





评论前必须登录!
注册