
BIM建筑|融入海岸,眺望日落:芬兰桑拿旅馆 / Mer Architects
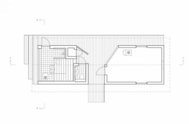
这间桑拿旅馆位于埃斯波群岛(Espoo archipelago)其中一个岩石岛的北岸。这间小小的旅馆被建筑师分为两个部分设计。其中一部分是一间桑拿房,而另一部分则是可供游客休憩的旅馆空间,同时也承担着桑拿房更衣间的空间功能。 ▲ 平面图 项...

这间桑拿旅馆位于埃斯波群岛(Espoo archipelago)其中一个岩石岛的北岸。这间小小的旅馆被建筑师分为两个部分设计。其中一部分是一间桑拿房,而另一部分则是可供游客休憩的旅馆空间,同时也承担着桑拿房更衣间的空间功能。 ▲ 平面图 项...
这座住宅位于赫尔辛基附近的一块岩石峭壁上,可以(BIM工程师)远眺波罗的海,其外部形态呈折线形式,可以为室外露台形成遮蔽,阻隔外部的狂风。 当地建筑事务所Mer Architects与Ettala Palomeras Architects合...