这间桑拿旅馆位于埃斯波群岛(Espoo archipelago)其中一个岩石岛的北岸。这间小小的旅馆被建筑师分为两个部分设计。其中一部分是一间桑拿房,而另一部分则是可供游客休憩的旅馆空间,同时也承担着桑拿房更衣间的空间功能。

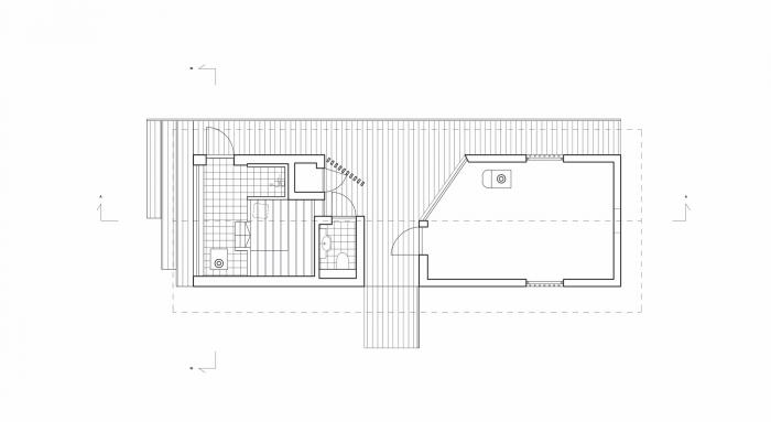
▲ 平面图

项目场地的周边拥有许多既有的木制建筑,因年代久远,许多房子的立面都开始呈现出富有年代感的灰色。而建筑师在这栋新建筑的外观处理上,并不希望设计一个相同色调的灰色小屋。相反,建筑师希望新置入的房子可以跟海岸上的云杉和松树融为一体,从而形成其特有的视觉语言。同时,建筑师还根据日落和大海的朝向,依据场地地形,决定了这间桑拿旅馆的最终朝向。若用户置身于由柏木搭建而成的桑拿房中,其视野可以通过一扇弧形的窗户,一直眺望到岸边的船道和日落时分的美景。

▲ 总平面图



而得益于建筑师在桑拿房和客房之间的空间分隔,置身于客房之中的旅客,同样可以欣赏到壮美的日落场景。建筑师选择了最新的交叉层压木材用于建筑的整体建造。而在外墙的设计上,建筑师则用云杉木对其进行了覆盖,并用当地传统的黑色Falu涂料对其进行了涂装。而镀锌的屋顶,也将在随后的几年内被漆成相同的深色调,以求整体的和谐与统一。



项目图纸

▲ 立面图

▲ 立面图

▲ 剖面图

▲ 剖面图
项目信息
项目类型:度假小屋
项目地址:埃斯波,芬兰
建筑事务所:Mer Architects
面积:38.0m²
项目年份:2018
摄影师:Archmospheres Marc Goodwin
主创建筑师:Julia Hertell
设计团队:Julia Hertell & Samuli Woolston

BIM建筑网





评论前必须登录!
注册