
BIM建筑|上海苏河湾万象天地 / Kokaistudios
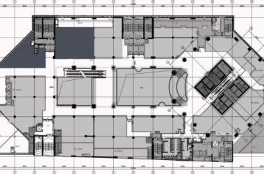
上海苏河湾万象天地位于上海苏州河畔,由Kokaistudios领衔设计,它的落成打破了这座城市过去、现在与未来的界限。该项目的出发点是反思如何使商业空间更好地融入周边环境,由此应运而生的“城市峡谷”提供了一个全新的城市公共空间,继而成为上海...

上海苏河湾万象天地位于上海苏州河畔,由Kokaistudios领衔设计,它的落成打破了这座城市过去、现在与未来的界限。该项目的出发点是反思如何使商业空间更好地融入周边环境,由此应运而生的“城市峡谷”提供了一个全新的城市公共空间,继而成为上海...

观点茶室是位于南京秦淮区汉中路上的一家以茶饮为主的集合型商业体验空间。毗邻商圈与高校。在设计概念上希望传达出“茶田”般的空间感受,同时在布局策略上迎合“聚落”主题,观点茶室的室内环境以错落设计而加强空间的开放性和体验性,有别于其他大部分专注...

△彩色,诗意的日常 △东山肉菜市场项目 奥默默工作室近期被委任承担广州新河浦历史文化街区地城市更新项目,并完成了东山肉菜市场的建筑室内景观一体化设计改造。基于以往在城市微更新领域丰富的项目经验和学术思考,对文化底色挖掘,日常性塑造,厘清空间...

到夏天来,青岛几乎是天堂了。 ——闻一多 △入口接待处 春有百花秋有月,夏有凉风冬有雪。自古,青岛便隽刻着无数文人墨客的眷恋,在历史的洪流中奔涌向前,如王统照在《青岛素描》中所写:这里一切的情形是混合着德国人的沉重,日本人的小巧,中国固有的...

4月23日,PHA的新作、位于中国重庆两江新区核心商务区的光环购物公园(The Ring)项目隆重开业。项目受香港置地(Hong Kong Land)委托,总建筑面积达42万平方米,其中约17万平方米为超大购物中心及商业街,11万平方米为超...

01 “空间中动态的力量” 中国的古诗词讲求“韵外之致”,而最美的炼字都落笔在动词上。所谓“以最小的面积,表达最大的思想”。我们于空间段落着墨“似动似静”之趣,欲以时间动态牵引诗性的自然流淌。 时间和空间一样,是一个...

“有间酒堂”坐落于上海徐家汇日月光购物广场商铺旁,是由建筑事务所DCDSAA设计的空间美学实验室,设计灵感来自于上海现代海派文化。融入光泽感极具创意、闪耀极简元素、开启不一样视觉享受的仪式感,都应当由这间酱酒实验室展现出来,从而勾人心绪。 ...

SAMO是江南布衣集团旗下的高端男装品牌。设计灵感来源于‘Palimpsest’这个古希腊文字,原本‘Palimpsest’的意思是古时候会把原本羊皮卷上的文字刮去再重新写上新的内容,在不断重写的过程中自然保留下了深浅不同的痕迹。 △ 与不...

在繁忙的当代社会中,能与我们保持形影不离的,除了影子,还有焦虑,车水马龙的都市让人变得浮躁,人们则需要一方心灵的净土来寻求内心的安宁。人之根本始于足下,人之所困累于气神。养生足疗健脏康腑、身心放松聚精气神,或许安于“樊丘”之中,才能真正获得...

△ 项目视频:完成后俯拍视频 WDD维度点设计近日在厦门完成“俱舍茶集”的项目改造。项目所在地是一栋带独立庭院的南洋华侨老别墅,它位于厦门南普陀寺旁,曾被改造成咖啡馆。改造后的空间要成为集茶室、器物展厅、文化和艺术活动组织展示等功能于一体的...

△ 集屿 ©李金辉 △ 集屿©一乘建筑 "建筑意味着把一个场地转变成具有特定性格与意义的场所。设计就是造就场所。换句话说,场所是有清晰特性的空间,人必须要能体验到环境是充满意义的。” ——诺伯尔·舒尔茨《场所精神-迈向建筑现象学》...

圣东尼材质体验中心(SANTONI MEC)是由白鹭设计受圣东尼针织机器有限公司委托进行室内设计,为纺织业专业人士打造的一处现代研发中心。他们在这里可以与客户会谈,分享想法并一起完成各种定制化项目。它将成为启发灵感,进行理念实验与知识分享的...

Marronnier Gate位于银座街区的边缘,该区域所容纳的都是高端的奢侈品商店。而与这个高密度都市地块有所不同的是,其周边是一条宽阔的主路以及高架道。因此,这栋商厦也就具备了两种截然不同的风格属性:一边是密集且碎片化的商业店铺,而另一...

媒介在商业的历史进程中发挥着重要的传播作用,它本身蕴含着时代的属性,它的进步改变着人们接收信息的方式,进而推动人类思考和行为的进化。在这个项目中,我们希望利用空间装置作为载体、传播好利来的品牌精神,以更感性的方式与大众开展一场轻松而深度的交...

项目背景:上海浦东新区华润时代广场,是一个老商场改造,主持改造的是日本设计师佐藤大,轻盈、时尚简洁的日系风是整个商场环境气质。 区域状况 由消防疏散通道连接的一个三角形和一个接近正方形的两个独立区块,单块面积不足两百个方。 对两块区域业主也...

Beast 与姐妹店 Little B 北京三里屯太古里的外立面设计灵感来源于美国艺术家 Josef Albers 的抽象绘画。提取了他作品中的表现形式,探求色彩和造型之间微妙的关系,我们从硬边艺术 (Hard Edge)所传达的视觉表现力...

▲ 项目视频 西安地处中国中心,千年建都史累积成久远深邃的文化体系,如今作为教育重地更承载着中华文明的复兴与文化自信。这样的地域背景赋予西安天然的文创项目孵化力,开创文商结合趋势之先河。 ▲三楼挑空区南面视角 ▲三楼挑空区南面视角 本案即是...

互联网的冲击下,很多实体零售甚(BIM工作)至出现了负增长的情况。在这样的趋势下,线下实体店该如何突破固有经营思维,这是对经营者的考验,也是对零售空间设计师的考验。 南京,古称“金陵”,是一处文学之昌盛、山川之灵秀的地方,如今苏宁极物也正式...
买手店的出现源于消费者对专卖店和百货公司大众化审美的不满,因此,一些专为小众和品位鲜明的消费者服务的店铺出现了。 项目地点位于泉州石狮,区别于传统的服饰店,业主希望这个空间除了要具备售卖服装的功能,还需要兼具展示、休闲等供人活动与交流的功能...
一间黑色高反光面材质与高对比色组成的葡萄酒零售店,位于西班牙瓦伦西亚主要购物街科隆大道。这家葡萄酒零售店让人为之一振,将购物者带入一个几何线条明晰但是空间感受却较为模(BIM教程)糊的葡萄酒销售空间。这个空间旨在突出的展示葡萄酒产品,并在店...