
“有间酒堂”坐落于上海徐家汇日月光购物广场商铺旁,是由建筑事务所DCDSAA设计的空间美学实验室,设计灵感来自于上海现代海派文化。融入光泽感极具创意、闪耀极简元素、开启不一样视觉享受的仪式感,都应当由这间酱酒实验室展现出来,从而勾人心绪。

为此,主创建筑师王皓认为,实验室的设计应当具有自然美,空间要足够开阔,让光充分涌入室内,安静的空间既追求气质的雅致,又力求通过线条的营造,将空间演绎出与众不同的艺术气息。

DCDSAA淀川建筑事务所设计的这间“美学实验室”生动诠释了现代酱酒的精神内涵。建筑内的墙体被粉刷为白色和蓝色为基调,一根根百叶立柱以其双曲线型圆拱顶造型支撑着极简主义风格,“空间是设计师寄托灵魂的情感表达,我希望通过灯光与材质的现代表达,传达出设计的精神。”

对待每个设计,主创王皓都格外关注空间情感的流露,仿佛一位空间的诗者,通过情景的诗意表达,勾勒出令人神往的意境,安静、纯粹、自然、舒适。



整个空间在材料的选择上,运用了水、木质元素以及砖块,现代朴实的石材加上敞开的空间,内外景色互相映衬,相互交融。大面积的砖面与蓝色对比是设计的亮点,空间置入了一片水景,与舞台相融合得到最大化感受体验,带来亦真亦假的虚幻感,打破和颠覆以往传统酱酒品牌空间的气质,成为当代主流品牌核心价值。



品酒区利用北欧实木藤编椅子与小物件搭配现代简约的家具,将空间与时尚相融合,带来和谐的混搭风空间。通过大面积的木质隔断造型,可以欣赏到整体壮阔的视觉景色,不论是在品酒还是喝茶上,坐在藤编椅上休憩都让人感到无比的惬意。


总而言之,这间“美学实验室”酱酒品牌旨在将空间的精神内涵物化为实体空间。设计虽然简单,但足以震撼人心,力求聚焦于现代文化,留下存在意义的记忆。建筑室内形态的有机统一是为呼唤更加自然的精神特质、迎接更加舒心的向往。

它是一个梦幻极简般的空间,没有装饰的复杂性,可以通向无垠的天空,让人感觉一切皆有可能。


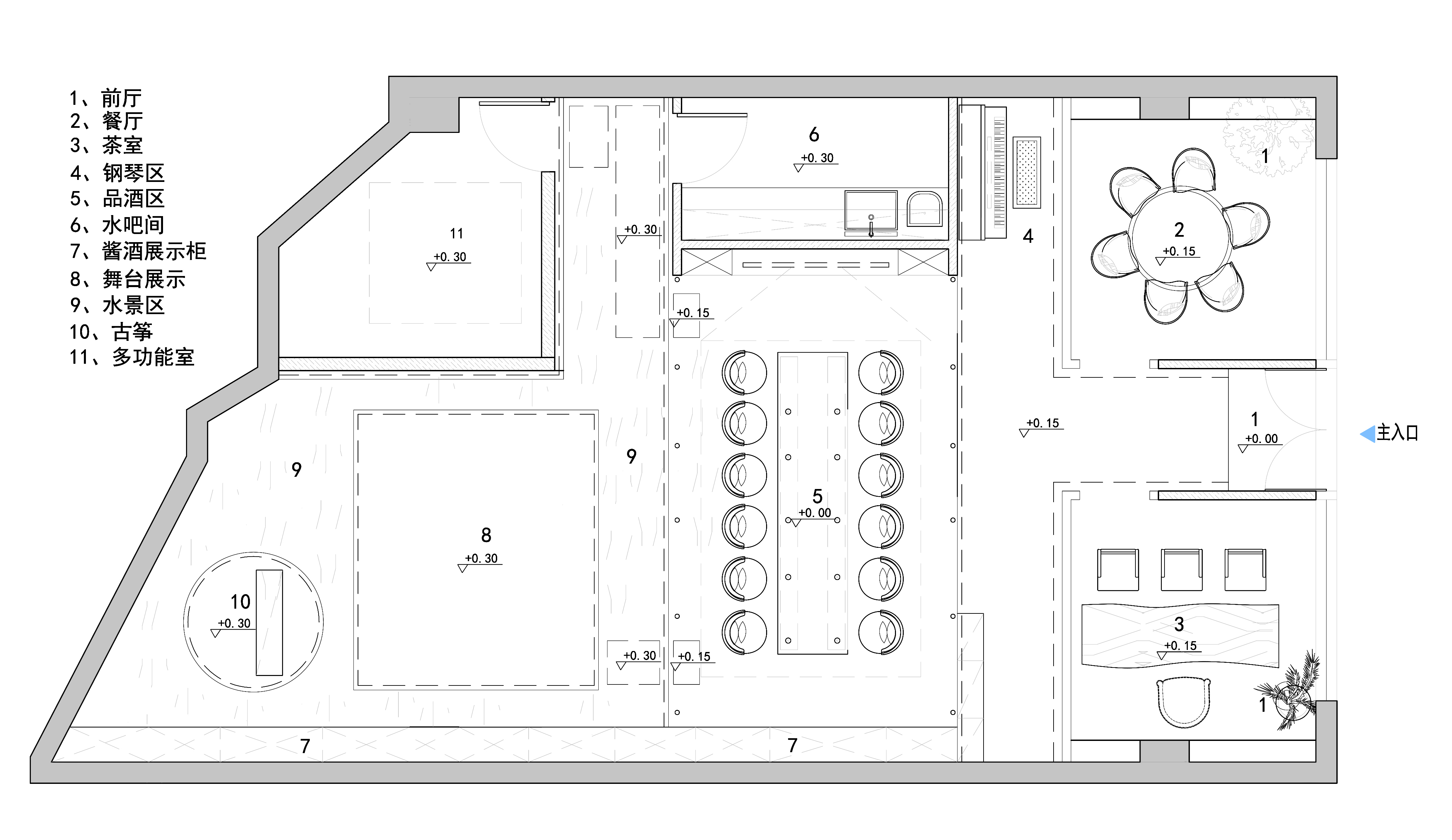
△ 平面图

△ 轴测图A

△ 轴测图B
项目信息
项目名称:上海徐汇“有间酒堂”
项目地点:中国·上海·徐家汇
建筑面积:150㎡
项目业主:知酒堂
设计公司:DCDSAA淀川建筑事务所
公司网站:www.dcdstudio.cn
主持建筑师:王皓
设计团队:袁郑亮、唐超、颜丙坤
建成时间:2020年12月
灯光顾问:驰加照明
施工单位:上海缔家设计工程有限公司
主要材料:不锈钢金属、超白玻、木饰面、水磨石、实木百叶、钢板、肌理漆
项目摄影:ELTON STUDIO朱恩龙

BIM建筑网





评论前必须登录!
注册