
这是一座表面上隐匿于城市的园林铜顶亭阁。詹尼博茨福德建筑师设计的花园住宅是一个极不寻常的住宅,人们通过狭窄的通道,途经一个19世纪40年代的诺丁山别墅探寻拜访。该项目涉及一栋20世纪60年代时拆除的平房,现将其更换为大部分都深埋地下的独立住宅。

房子外部最明显的部分是它的亭子,就像一个铜屋顶。在室内,屋顶由云杉制成的复杂胶合木构架构成,其双曲坡度在玻璃窗中形成。屋顶的浮动体积设置在起居室的玻璃墙上方,增强了整体的轻盈感,同时将房屋内部空间连接到周围的园景花园以及城市环(BIM培训)境之中。




在房子的底层厨房的表面和下面的房间细节都会反复出现铜质的装饰特征,为室内增添了微妙的色调温暖。道格拉斯冷杉和雕刻的卡拉拉大理石之间冷色调和暖色调的对比增加了地下空间的视觉品质,经过仔细考察后的光暗设计也是这样的原理。地面下有两层。卧室位于第一层,而宽敞的起居和走廊区则设有一个10米长的游泳池,位于第二层。光壁和天窗设计用于优化日光的使用,投射顶灯于地板和墙壁上。







将日光引入长达8米的深度是一项挑战,尤其附近房屋的位置很紧凑,并且面朝北向。数字分析工具被用于寻找光在创造建筑物的形式和建筑组织设计方面提供了三维功能。花园中的房子建立在建筑事务所的长期关注之上,他们在白天和季节中操纵自然光线,丰富和活跃并最终定义建筑的本质。詹尼·博茨福德如此描述了这座房子。


三维模型

三维模型
“用光明和黑暗来构建建筑是与你周围的环境所能给予你的东西一起工作。一套独特的约束条件也是创作过程中的机会。屋顶的帐篷形状由屋顶的光线和阴影塑造而成,为屋内的生活创造了一个新的生活场所 ——一个可以背对周围的大体积建筑物并拥抱、融合周围的新生场所。”





木屋顶结构的每个独特部分在三个方向弯曲,并根据Gianni Botsford Architects提供的三维模型在多洛米蒂山预制。然后将这些碎片构件带到现场,然后分成八个部分进行组装。詹尼·博茨福德如此总结了这个屋顶的设计概念,“使用数字和手工工艺进行设计,建模和制造,每个工艺都依靠另一个,复杂的木屋顶结构的强度掩盖了其温暖的居住建筑所拥有的限制性的规模和特征。

三维模型




图纸

场地图

总平面图

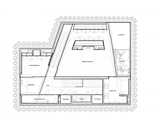
地下平面图

底层平面图

首层平面图

屋顶层平面图

剖面图

剖面图

剖面图

剖面图

剖面图

剖面图

剖面图7

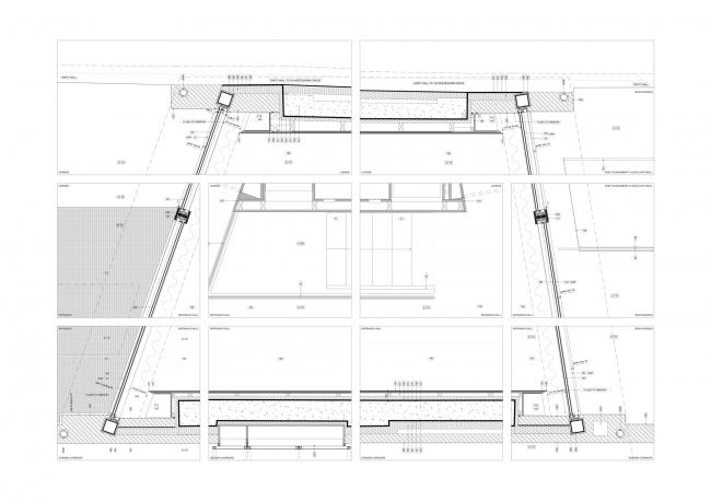
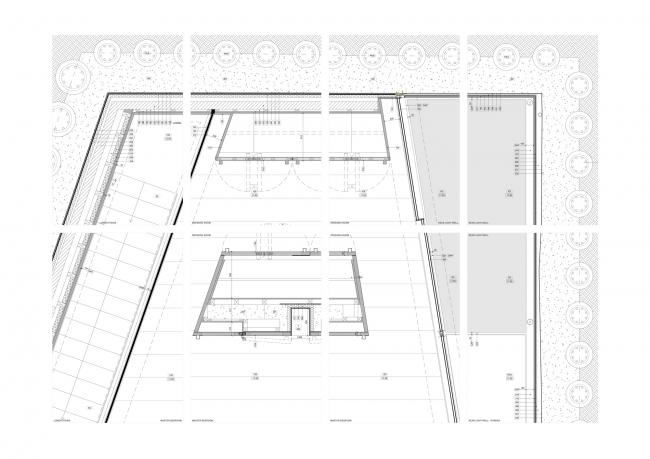
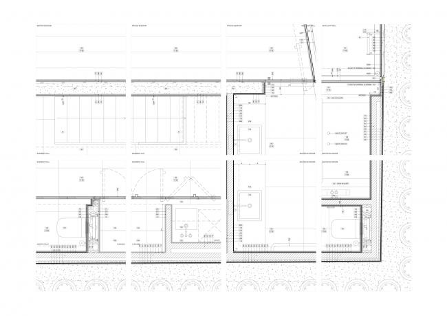
节点构造图

节点构造图

节点构造图

节点构造图

节点构造图

节点构造图
项目信息
建筑师:詹尼·博茨福德建筑师事务所
地点:伦敦,英国
设计团队:Gianni(BIM建筑) Botsford,Paulo Martinho(项目建筑师),Kate Dar-by,James Eagle,Hiroshi Takeyama,Anahi Copponex
总建筑面积:2722.0平方英尺
项目年份:2018 年
建筑摄影:埃德蒙·萨姆纳
制造商:Dinesen,Sky-Frame,Cantifix
结构工程师:内置
服务工程师:Pearce and Associates
工料测量师:莱斯利克拉克
景观设计师:Todd Longstaffe-Gowan
AV:安德鲁卢卡斯有限公司
核准检查员:萨卢斯
CDM:戈达德咨询公司
照明设计师:Isometrix
规划单位:肯辛顿和切尔西皇家自治市镇

BIM建筑网





评论前必须登录!
注册