
本次项目延长了Arquitectonica建筑事务所与迈阿密大学建筑学院(其中Bernardo Fort-Brescia, Laurinda Spear和他们的儿子Raymond Fort都曾在该校教职员工中任职)的长期合作关系,这座Thomas P. Murphy设计工作室大楼也巩固了该公司对迈阿密大学及其家乡的承诺,他们致力于为下一代建筑师设计一个独一无二的实验室和合作空间,为其创造更加优良的学习空间。新大楼的建筑面积在两万平方英尺左右,已经通过了LEED认证,将为学生们提供支持和促进学校教育教学的空间。未经任何修饰的玻璃及混凝土结构可以作为天然的教学工具,用来阐述现代建筑、构造和可持续性的一些基本原则。

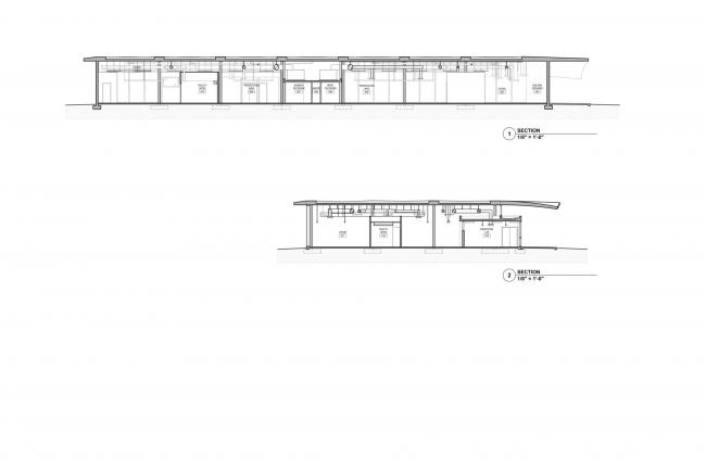
该建筑位于十字路口的中心,创造出一个广场和毗邻的通道,将迈阿密地铁与校园联系起来。这座建筑本质上是一个单一的、超大尺寸的棚式建筑,有一个拱形屋顶,通过细长的钢柱和几片固定墙支撑起来,悬在距离地板上方18英尺的高度上。这种屋顶结构提供了开放的感觉,使自然光有效渗透到建筑物内部空间中。


弯曲的混凝土墙面直接朝向公共交通的主要入口和Jorge M. Perez建筑中心(该建筑由建筑师莱昂·克里尔设计,是建筑学院的核心教学楼)。这面朝向南侧的墙向下弯曲,与克里尔大厦的拱形门廊和八角形礼堂形成对关系。整座建筑的造型形成了一种欢迎的象征性姿态,曲线的走势不但形成营造出一种邀请学生走进建筑物的感觉,同时还软化建筑物方方正正的平面形式。


屋顶本身是一个薄壳混凝土结构,在视觉上能够形成高度的视觉戏剧性效果。屋板稍微弯曲,仿佛在迈阿密热浪中慢慢融化,形成一个柔和的弧线,增加了结构轮廓的复杂性。这个屋顶除了为面朝东面和西面(BIM培训)的玻璃提供有效的遮阳,弓形屋顶也建立起了设计的主要设计趋势。屋顶的曲线与入口处的曲线相互作用,以显示混凝土的塑性。这两种姿态将一个简单的盒子转变成动态的建筑表达,将核心现代主义原则融入到渐进的设计中,这将对下一代建筑师产生理念上的影响。


该建筑的设计、定位和策略元素都是根据太阳的运动轨迹进行设计的,这样可以确保即使在最热的月份也能拥有一个可持续的工作环境。混凝土屋顶在建筑物的最南端形成翘曲,能够遮蔽照入室内的强烈阳光。这座建筑白天可以不用任何人造(BIM工作)光就能运行,同时首次使用了18英尺高的防飓风玻璃板。可开启式的窗户可以更好地隔热,减少夏季对空调的依赖。

工作室是每个建筑学院的核心教学场所,也是未来学生的强大磁场所在。工作室空间的设计充满了数字化的制作设施、展览区和充裕的社会和公共功能空间,将二十一世纪教育学的各个方面综合成一个全面完整的整体,将它们包装在一个看似简单的混凝土薄壳建筑中。

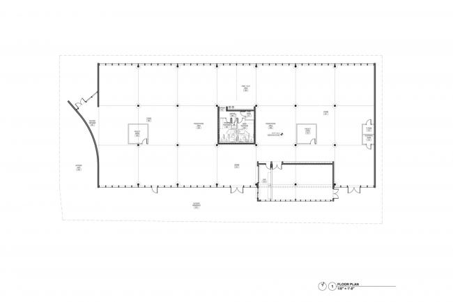
工作室空间以开放式的平面为主,以一个25平方英尺的工作站模块为基础进行布局,可以容纳从90到130个工作坊的各种桌面的配置。


主要入口通向一个非正式的大厅,该大厅向前延伸仿佛教堂建筑中的主厅一样将各个工作室串联起来。中间体量的东、西两侧墙体都用毛毡包着,让学生们把作品钉起来,中厅内设置有活动板供非正式评论和展览用。位于交通走道南侧的工作室是用于设计、建造课程使用的地方,与室外的工作区域直接相连。











在开放式的工作室空间内可以发现由不同材质制成的盒子散布其中,它们的用途灵活多变:比如陪审团区域的窗帘、研讨会和会议空间的玻璃和面板、制造实验室的混凝土。两个独立的琉璃展馆作为教师和访问教授的办公室使用,每年可以由学生们进行重新设计和建造,提供一个具有创造力和合作性的场所。







图纸

总平面图

平面图

屋顶平面图

剖面图

立面图
项目信息
建筑设计:Arquitectonica
项目区位:美国,佛罗里达州
合作负责建筑师:Bernardo Fort Brescia, Laurinda Spea
项目主管:Sherri Gutierrez
项目经理:Rafael Guissarri
建筑面积:13125.0平方英尺
项目时间:2018年
项目摄影:Robin Hill, Miami In Focus

BIM建筑网





评论前必须登录!
注册