
北京按摩医院扩建项目位于北京市朝阳区武圣北路,建设用地面积为 10289.0 平方米,总建筑面积39899.0平方米。东临朝阳区综合医疗服务中心,南至南磨房路,西至武圣北路,北至八棵杨南街。西侧邻近地铁10号线,交通十分便利。


该项目旨在打造中国第一个按三甲标准设计的中医按摩康复医院,一个向世界展示中国残疾人事业的窗口单位(文化交流和人权事业展示),以及中国残联无障碍标准示范工程。



面对北京按摩医院悠久的人文历史背景及特殊的功能需求,我们尝试提炼中国传统建筑的“檐”、“梁”、“柱”经典元素,转译并抽象成新的建筑语汇,同时与建筑功能有机的融合在一起,最终实现具有创新性、前瞻性及可持续性的现代中医医院建筑。我们希望通过“传承与提升” 的设计概念最大限度的唤起按摩医院特有的地域与场所精神,在继承中国传统文化的基础上,又能体现传统中医在当代的发展与提升。将抽象后的中国传统建筑要素重塑与整合,形式追随功能,从整体塑造到局部建构(如入口灰空间)以及细部处理,最终实现整个建筑组群的有机建构。



该项目的另一大亮点是引入地下边庭激活地下空间——严苛规划条件下地下空间的“地上化”。室外挑檐下植入的边庭将上下两层空间贯通,其正向的垂直挡墙强制光线通过多重折射蔓延进地下功能空间,实现良好的自然采光和通风。



北京胡同、老街和四合院中所体现的灰瓦、灰墙与原木构件奠定了北京城市色彩的主基调,灰色与原木色返璞归真,是北京最平常、也是最有中国建筑神韵的色彩。透出古都浑厚、朴实、宁静的文化底蕴。该建筑运用清水混凝土、木板(帕莱斯板)、木饰面百叶、灰色陶土面砖为主要材料进行组合。室内大量的木饰面的使用,拟在打造宁静、疗愈的环境。







项目图纸

△项目模型

△项目模型

△项目模型

△项目模型

△总平面图

△一层平面图

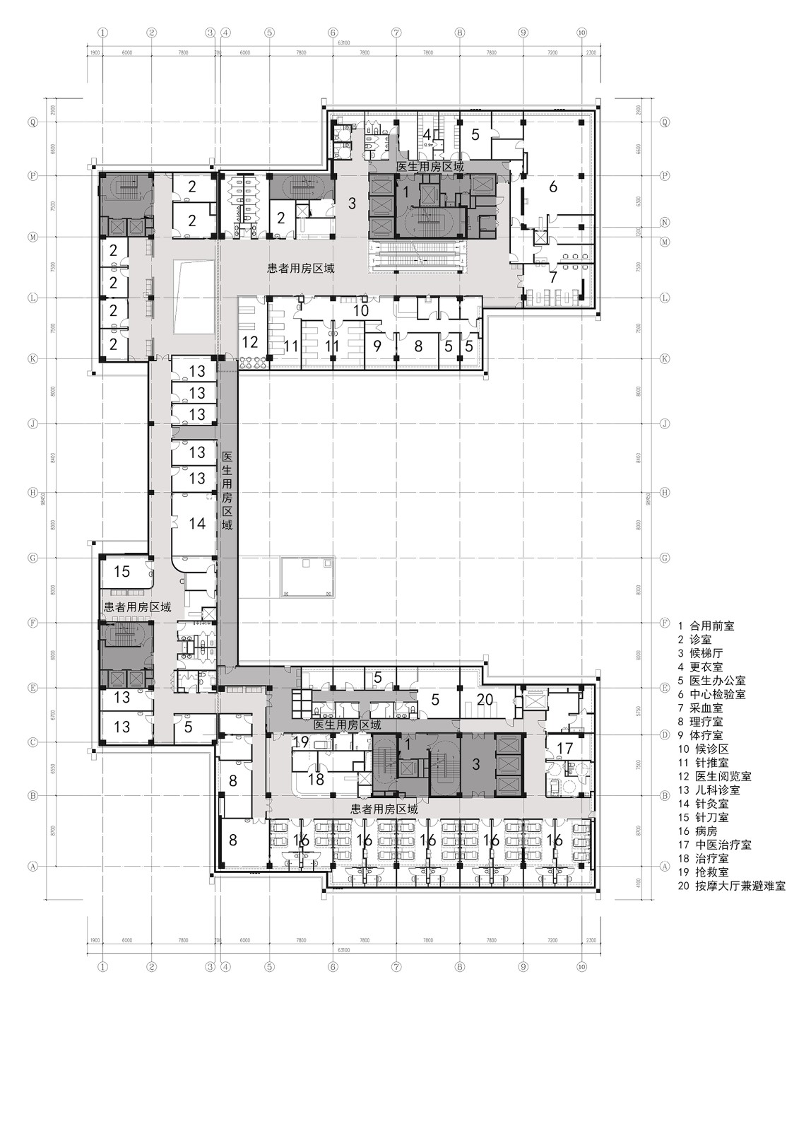
△二层平面图

△平面图

△剖面图

△剖面图

△分析图

△分析图
项目信息
建筑师:中国电子工程设计院
面积:39899m²
项目年份:2022
摄影师:周涵滔,WZJ Studio
主创建筑师:王振军
设计团队:孙成伟、陈珑、李达、夏璐、鲍亦林、王舒越、徐彤、朱谞、牟冰峰、赵玮璐、邓涛、时菲、李石一
施工方:北京城建集团
委托方:北京按摩医院
地点:北京

BIM建筑网





评论前必须登录!
注册