
清真寺通常是伊斯兰教的典型建筑,是一个“跪拜的地方”,意思是“跪”。伊斯兰建筑不是地域性的。多年来,大多数前伊斯兰的本土形式和特征逐渐成为伊斯兰传播地区的元素和特征的折衷组合。与历史悠久的纪念性清真寺不同,当代清真寺的设计旨在展示这些转变后的形式,从而建立自己的独特身份,“祖拜达清真寺(Masjid-e-Zubaida)”就是这样一个例子。


该设计的主要理念是宗教空间应有助于冥想,净化情感和精神,与真主建立直接联系。在分析了清真寺的功能和象征意义后,确定清真寺的基本要素,并精确地将重点放在基本要素上而不仅仅是美学和宏伟。


考虑到这一点,这座清真寺的设计将具有高功能价值的空间元素,将如伊巴达特·卡纳(Ibadat khana)、敏拜尔(Minbar)、米哈拉布(Mihrab)和宣礼塔(Minaret)等基本要素与朴素的现代建筑相结合。宣礼塔是清真寺的视觉标志。它不仅是功能性的,而且还可以作为一种明显的视觉提醒,用来提醒真主的存在。清真寺的美学是基于这样的概念,即材料必须是可持续的和来自本地的。由挖掘出土的土壤制成的 CSEB 块被计划用于该项目。


遗憾的是,这些砖块制作在土壤压缩过程中失败了,后来我们不得不改用客户工厂生产的锅炉砖。清真寺地下室存在的 Madresa(伊斯兰学校)有助于多样性的实现。虽然不像 Mihrab 那样是一种仪式要求,但穹顶常用于承载更大跨度的结构要求,这也变成了天穹的象征性代表。但是,随着建筑和施工技术的进步,对圆顶实现更大跨度的需求随着时间的推移而消失了。因此,我们选择了一个简洁的形式作为主体,有一个平屋顶,伊巴达特汗将被安放在其下休息,坚守简单和个人主义。


裸露的砖块构成了大部分外立面,允许阳光穿透内部,使整个空间变得神圣,营造出一种“敬畏感”。百叶玻璃与门和外墙面融为一体,有助于采光和通风。Ibadat Khana 上侧的开口进一步改善了环境并且照亮了空间。


朝拜墙(清真寺最神圣的部分)保持了朴素和宁静,使人的注意力不受外界环境的影响。由上方天窗射入的阳光逐渐照亮墙壁,提醒人们“真主”是上方天堂的光。地板也保持无缝,尽量避免礼拜者分心,并促进礼拜所需的“khusyuk”(专注)。该设计创造了一种新的清真寺语言形式,这种语言更具变革性,简单但独特,并与现代需求相融合。



项目图纸

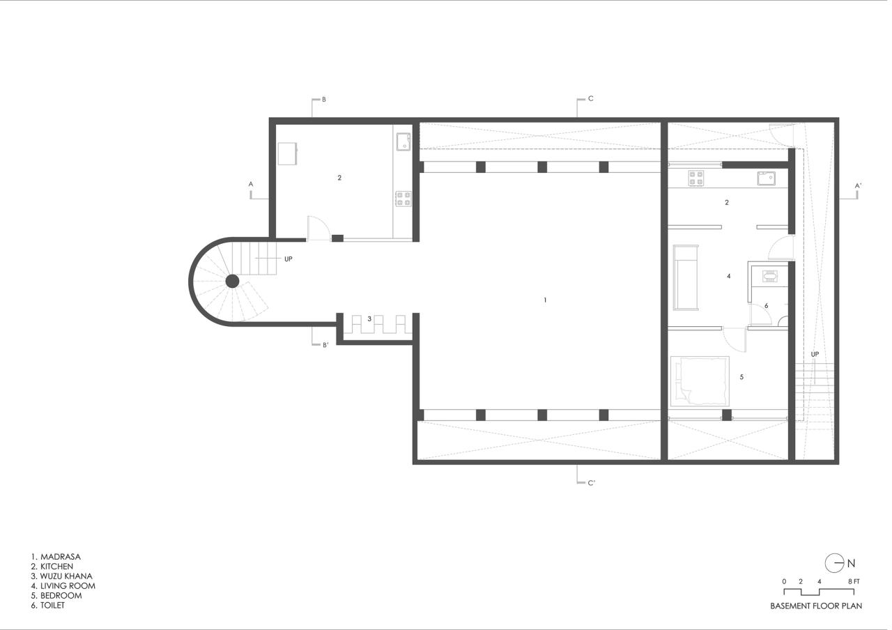
△负一层平面图

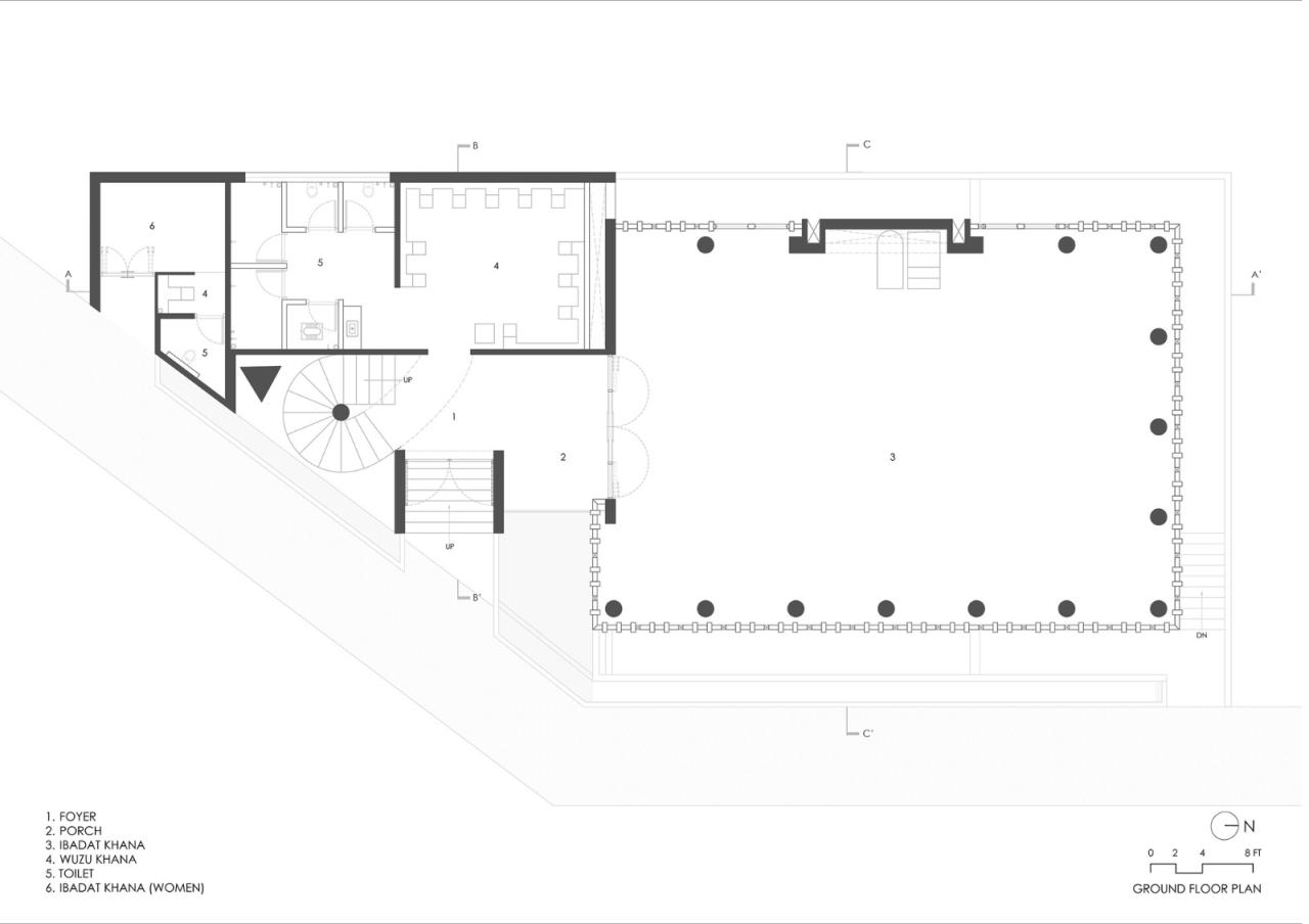
△一层平面图

△屋顶平面图

△剖面图

△剖面图

△剖面图

△立面图

△立面图

△立面图

△分析图

△结构大样图
项目信息
建筑师:Neogenesis+Studi0261
面积 :750m²
项目年份 :2022
摄影师 :The Fishy Project
主创建筑师 :Chinmay Laiwala , Jigar Asarawala, Tarika Asarawala
设计&执行 :Devanshi Parekh, Priyanka, Juby Thomas, Manthan Yadav
结构工程师 :Ritesh Chauhan
文字编辑 :Nilufer Contractor
木工 :Arjunbhai
地点 :印度,Raichur

BIM建筑网





评论前必须登录!
注册