
技术与传统结合,重新定义了 Zydus 企业园的办公大楼原型。Zydus 的总部位于艾哈迈达巴德郊区一条繁忙的公路旁,被构想为一个弹性的 21 世纪工作场所,它借鉴了古吉拉特邦(Gujarat)充满活力的建筑和文化遗产,灵巧地回应了该地区极其炎热干燥的气候。


这是一座具有锋利轮廓的巨型建筑,其堡垒般的外形参考了艾哈迈达巴德(Ahmedabad)城墙内中世纪时期的古迹:巴德拉堡(Bhadra Fort)、巴瓦加德堡(Pavagadh Fort)、阿达拉杰(Adalaj)的阶梯式天井,以及卡奇(Kutch)的传统“邦加”(Bhunga)建筑。构成西侧立面的三道城墙形外墙以巴瓦加德堡为主要的灵感来源,有效地为室内阻挡了严酷的夏季阳光,并为极端气温提供了热缓冲。这些双曲线的耐候钢壁垒(14200 个数据点)以艾哈迈达巴德传统金属工艺“堪萨拉”(Kansara)的复杂几何形状衔接起来,通过计算设计进行参数化转换。嵌入墙内的三角形玻璃管灵感来自于 "邦加"建筑上的镜艺,这些卡奇本土住宅因其建筑的弹性和装饰性而受到尊崇。这些玻璃管覆以二色性薄膜,在日间捕捉太阳的运动,使外墙展现出永久的如万花筒般的活力。


墙体横贯东西,为南北朝向的位于边缘的办公塔楼提供遮挡并创造出一片城市绿洲。塔楼群的间隔为它们之间的阶梯式庭院遮阳,形成了宜人的微气候,鼓励人们进行户外休闲和活动。无柱工作大厅完全没有眩光,使用 100% 日光照明,也无需百叶窗,免除了日间人工照明的需要。被动式设计和气候响应策略的使用大幅降低能源性能指数(EPI)至 56 千瓦时/平方米/年,同时使该建筑的能耗比最佳绿色建筑标准规定的能耗低 50%。除了作为环境屏障,该建筑的墙体还容纳了为两千多劳动力提供的社交孵化空间。墙壁间的流通区域沿着场地长度的方向,包含了休息空间、座位隔间、餐厅、员工参与区、访客休息室,以及用于头脑风暴会议和非正式会议的工作台。这条通道如脊柱一般将所有的正式工作区连接起来。在如今的背景下,这个区域还可以作为一个社交距离场地来将员工分散开。


建筑和地形的表面流畅地会聚和发散,创造出一种独特的地貌模式。通过融入自然界中的五种元素,这一模式在细节和材料上进一步层次化。建筑方面的主要挑战是如何将手工建造的工匠的古老知识与墙壁的几何形状所要求的精度结合起来。此外,表面处理也结合了当地的手工艺和建筑方法,如现浇水磨石地板、模铸水泥基色砖、手工制作的金属家具和装置。该项目体现了工作场所中的公平和透明的思想,这也是它的建筑关键词之一。该建筑通过对简单的被动设计和高效的建筑原则的关注,以一种现代的方式重现古吉拉特邦丰富的手工艺传统,有望成为全球和本地相关商业建筑的典范。











项目图纸

△区位分析

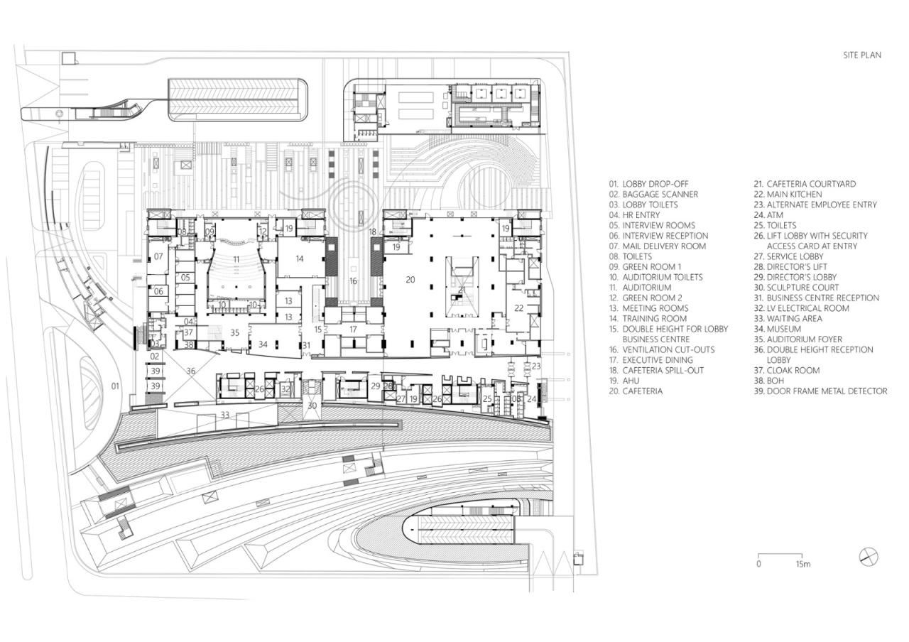
△总平面图

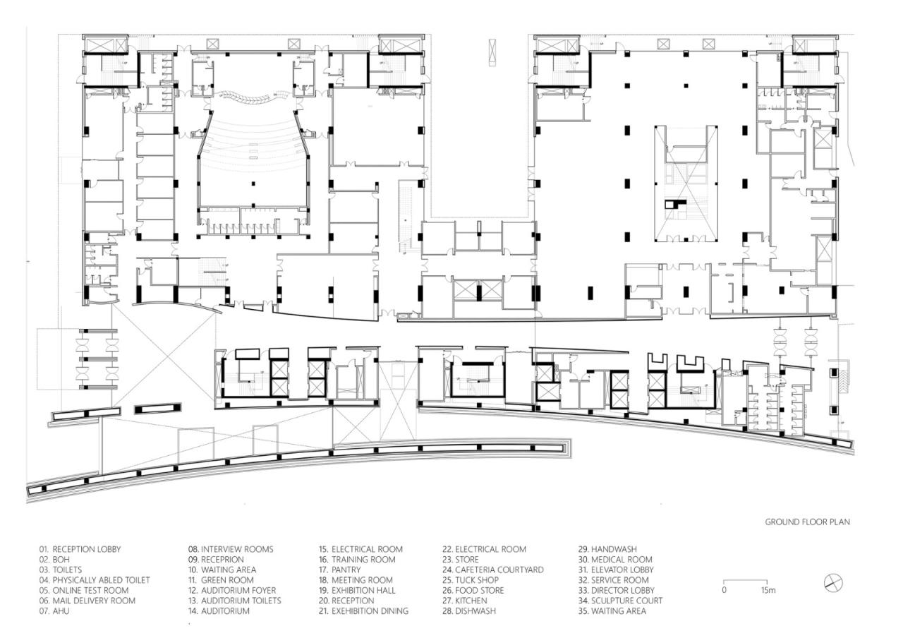
△一层平面图

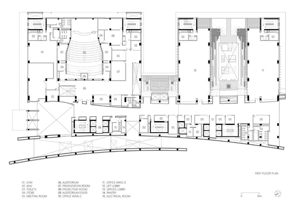
△二层平面图

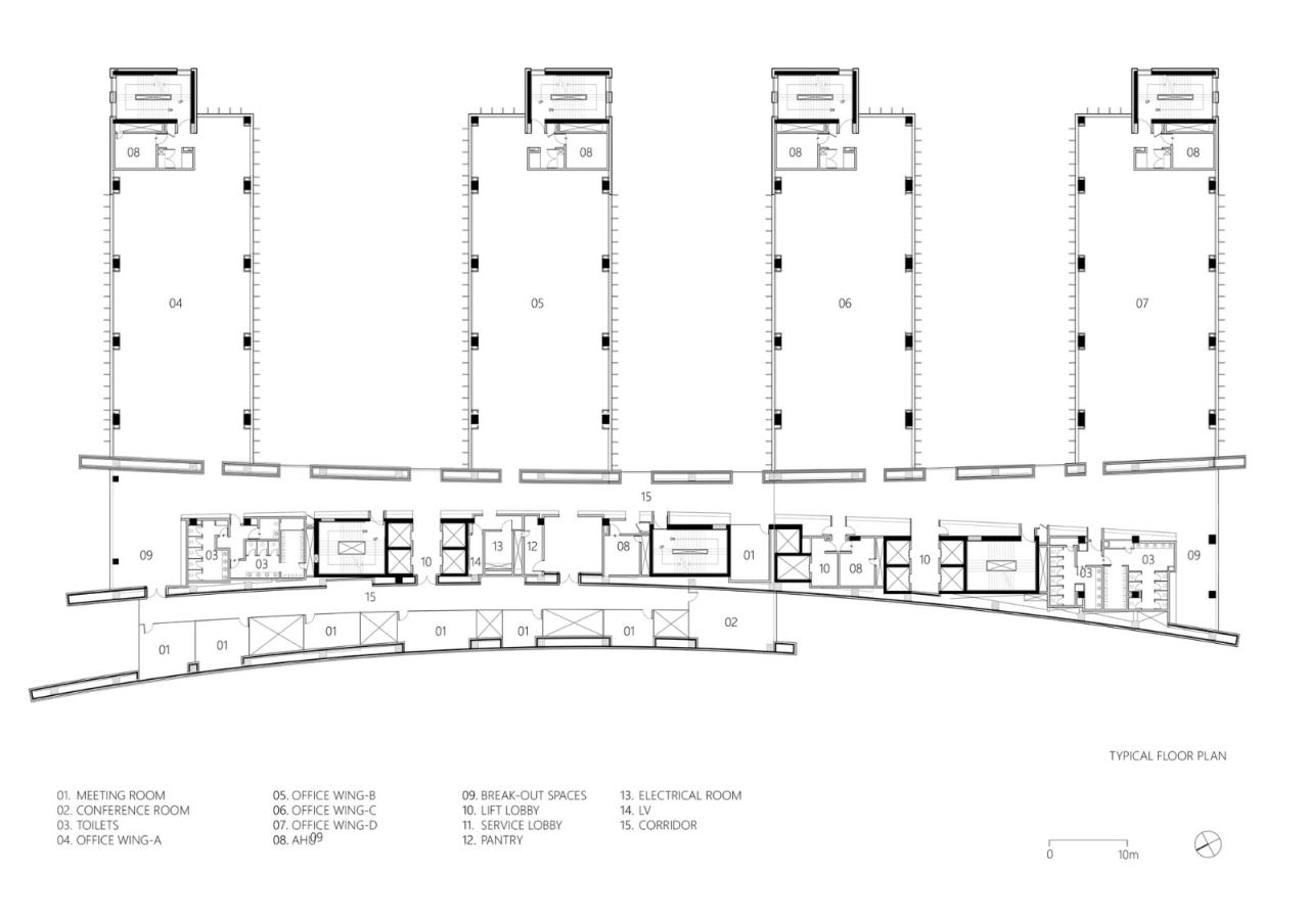
△典型平面图

△剖面图

△爆炸图

△分析图
项目图纸
建筑师:Morphogenesis
面积 :840000ft²
项目年份 :2022
摄影师 :Noughts & Crosses LLP
设计团队 :Neelu Dhar; John Alok De Cruz; Aakansha Aggarwal; Munazza Akhtar
委托方 :Zydus Cadila Group
建筑师 :Morphogenesis
电力顾问 :Sanelac Consultants
环境设计 :SGS India
立面顾问 :Meinhardt Façade Technology
灯光设计 :AWA Lighting Designers
AV 顾问 :KLM Designs
交通顾问 :Transfic
土木承包商 :PSP Projects
结构设计 :Sterling
地点 :印度,Ahmedabad

BIM建筑网





评论前必须登录!
注册