

该项目北侧为泾河大道,西侧为正阳大道。基地西北角150米处为新建成的静安荟奥莱公园(商业),西侧650米为崇文塔,北侧700 米为崇文中学和崇文佳苑小区。基于基地的情况,设计采用体块穿插的形式,根据不同的功能需求,将功能重新排布并将不同体块进行穿插。在满足功能要求的同时,做到形体足够具有昭示性,能够更好地吸引人流,成为区块内的新标杆。
01 项目位置

▲ 区位分析
因该项目位于正阳大道东侧,十字交叉口的关键性节点位置,所以我们希望区别于传统售楼处建筑,创造一个充满活力的城市公共空间,成为代表泾阳未来发展的地标式建筑,倡导一种新的生活理念。
02 概念设计

▲ 概念体块生成


▲ 建筑鸟瞰实景

▲ 建筑立面夜景
昭示性:通过不同体块之间的穿插从而构建另一种建筑形体,使其具有昭示性。主入口采用风帆造型,寓意一帆风顺。

▲ 建筑入口夜景

▲ 建筑主入口实景
03 景观设计
室外景观通过使用同样的线性设计语言,并结合几何形体的景观构筑物,使整个建筑与周边环境协调的融为一体。并且通过运用不同的几何图形来分隔景观,从而营造适宜的景观步道,增加用户的体验感,运用水景和景观构筑物将建筑与自然相融合为使用者带来自然感。

▲ 建筑航拍俯视图

▲ 建筑景观夜景

▲ 建筑景观夜景
04 室内设计
整体的室内设计采用建筑、室内一体化的设计手法。建筑内部形态各异的几何体,其材料与颜色透过玻璃幕墙成为建筑外立面展示的一部分。室内运用大量具有金属质感的材料,铝板、镜面不锈钢等营造时尚又具有未来感的氛围。大体量的几何体穿插使得空间更加具有雕塑感和趣味性,激发置身其中人群的好奇心与探索欲。

▲影音室


▲影音室+休息区

▲ 水吧

▲室内楼梯造型


▲ 下沉洽谈区


▲ 室内入口


▲ 室内一层儿童区

▲二层休息区
05 灯光设计
整体的灯光设计采用大量染色灯,并结合建筑本身特点,通过各种对金属光线的反射,打造出一个梦幻的场景。

▲ 室外灯光效果






▲ 室内灯光效果
本项目旨在能够为当地民众更多的公共活动空间,提升公共生活品质,引领人们对未来美好生活的向往,为社区做出积极的贡献。


项目图纸

▲ 总平面图

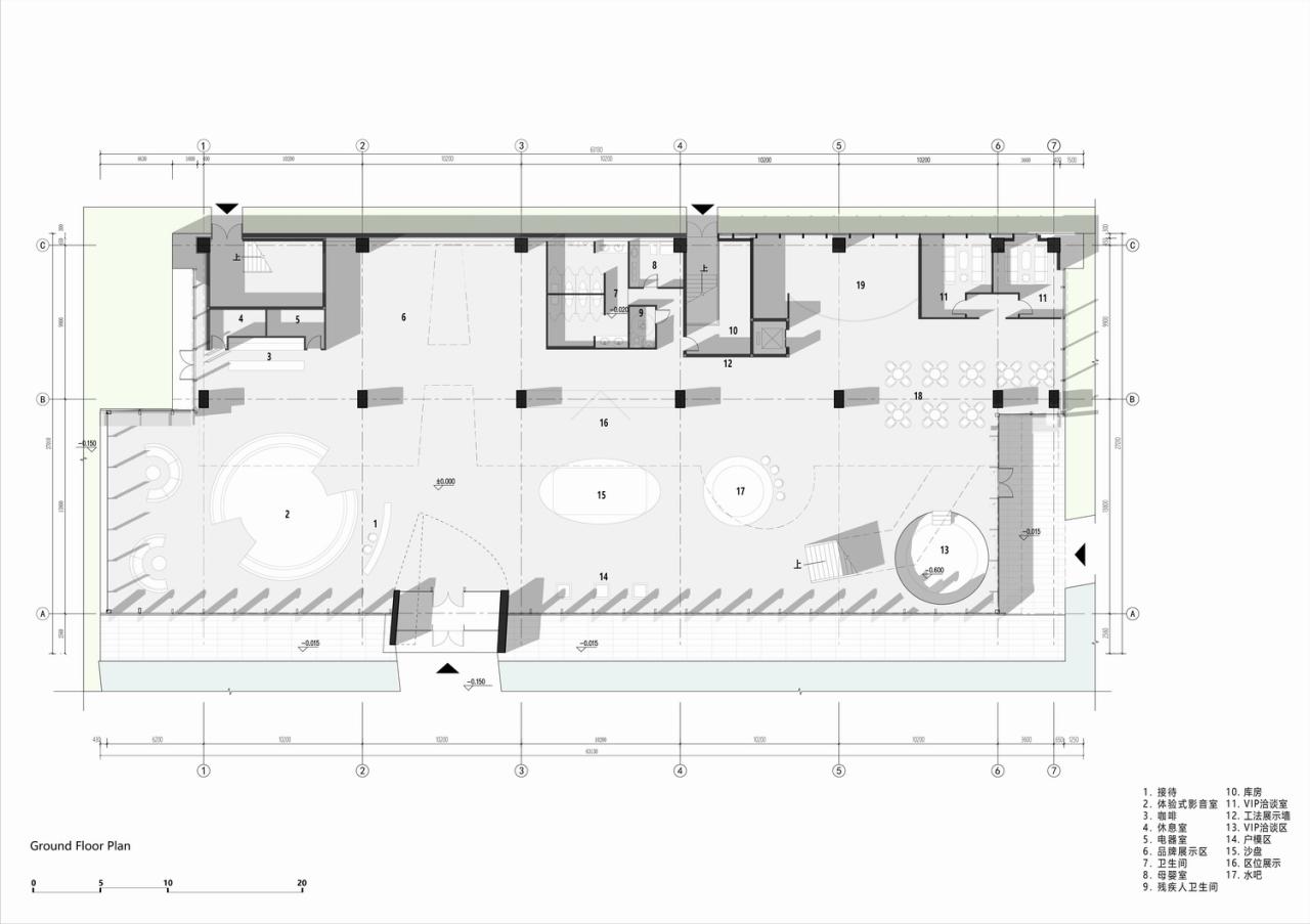
▲ 一层平面图

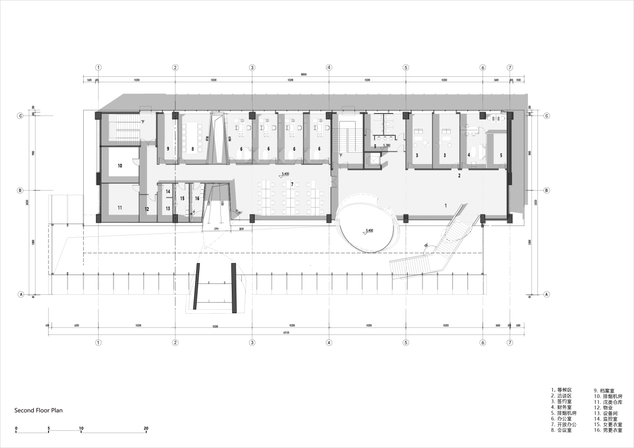
▲ 二层平面图

▲ 西立面图

▲ 南立面图

▲ 剖面图
项目信息
项目类型:商业建筑
项目地点:西安
建筑面积:2115.81㎡
设 计 单 位:aoe事建组
项目状 态:完成
主创设计师:温群
技 术 总 监:马剑宁
建筑设计团队:温群, 马剑宁, 高士鑫,海笑,赵岳,张蕊,戴传宇
室内设计团队:杜婧,尹晓凡,李莎,刘美君,薛雅文
灯 光 顾 问:Puri Light 北京光湖普瑞照明设计有限公司
幕 墙 顾 问:英海特工程咨询
摄影师:DONG建筑影像

BIM建筑网





评论前必须登录!
注册