该项目位于北京东城的老城区,本次的设计工作是翻新沿街现有的明代老建筑及内部改造为私人宅院。

在设计过程中,重要的是对新旧的事物进行清晰的解读,同时在一个连贯的建筑中把两者完整的联系起来。地块周围的砖砌围墙和老建筑的结构被保留下来,并增加了两座平行的建筑,以创造连续的三个院子。新建建筑以周围老建筑为参考,以现代的方式重新诠释:传统瓦片的双坡屋顶被保留下来,但坡度更低,屋檐更长,传统的木结构被薄钢结构和木椽的组合所取代。

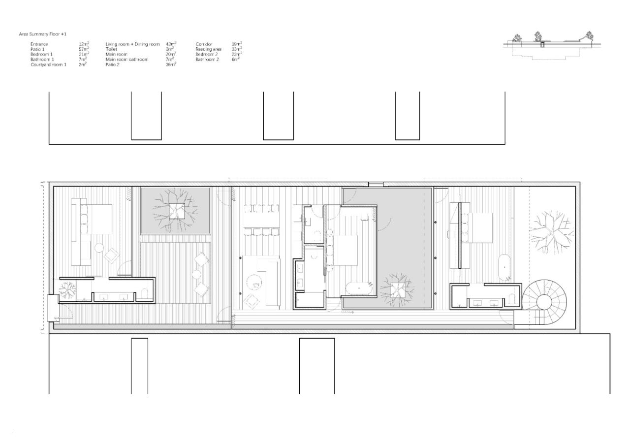
这组庭院依动线由外至内进行了私密度递增的布局。宅院的客房及起居生活空间都围绕在第一个庭院,而第二及第三个庭院则是完全私密的卧室和书房。

▲入户庭院

▲起居室

▲客卧
这三个建筑由一个超薄的黑色钢制顶棚连接在一起,用以隐藏结构的同时,自然形成了宅院的入口,并在三个庭院间创建了连廊。这条水平线也为现有建筑和新建筑的无框玻璃窗创造了一个共同的界限,并为南面的外墙提供了一个日晒保护。

▲混凝土框架卧室
整个体系中添加了三个混凝土元素:其中两个封闭“盒子”构建的浴室如插件般嵌入建筑,另一个以混凝土框架形式在起居室后新增了一个卧室。

▲混凝土框架卧室
该地块的绝大部分此前未进行过建设,在确定其有创建地下空间的可能性后我们将泳池及健身房设在此处。它由地块北端的庭院和侧面的线性天窗共同形成自然照明,同时露出结构横梁,为地下空间增加了漫反射照明。

▲负一层游泳池
一层和地下层间形成了强烈对比:一层使用了中国传统屋顶的形式谨慎地融合在老城背景中;而地下层则运用了野兽派粗犷的建筑语言,仅凭混凝土一种材料就呈现了极为有趣的光影景观。

▲负一层健身房视角
项目图纸

△模型图

△模型图

△模型图

△模型图

△模型图

△模型图

△模型图

△地下一层平面图

△首次平面图

△露台平面图

△南立面图
项目信息
项目名称:东城私宅改造
项目类型:建筑设计、室内设计、景观设计
项目状态:概念
主持设计师: Johan Sarvan, Florent Buis
设计周期:2022年2月-6月
室内面积:660平米
材料:洁具- SARVAN
图片版权:JSPA Design

BIM建筑网





评论前必须登录!
注册