
△坐落于城市中心的混合建筑体
随着近期欧洲发布会的成功举办,NIO蔚来成为国际高端新能源汽车市场一颗冉冉升起的新星。在国内,该品牌已经是市场的领军者,其倡导的用户社区概念及衍生出的一系列具有前卫设计感的蔚来中心为大众所熟知。为提升用户体验,品牌与设计师共同探寻项目所在城市的人文基因并将其融入方案中,造就独特的场景设计。在合作完成南昌蔚来中心后,芝作室再次受邀改造济南一座双层带庭院的独栋建筑。

△沿街空间,3个坡屋顶和2个内庭院

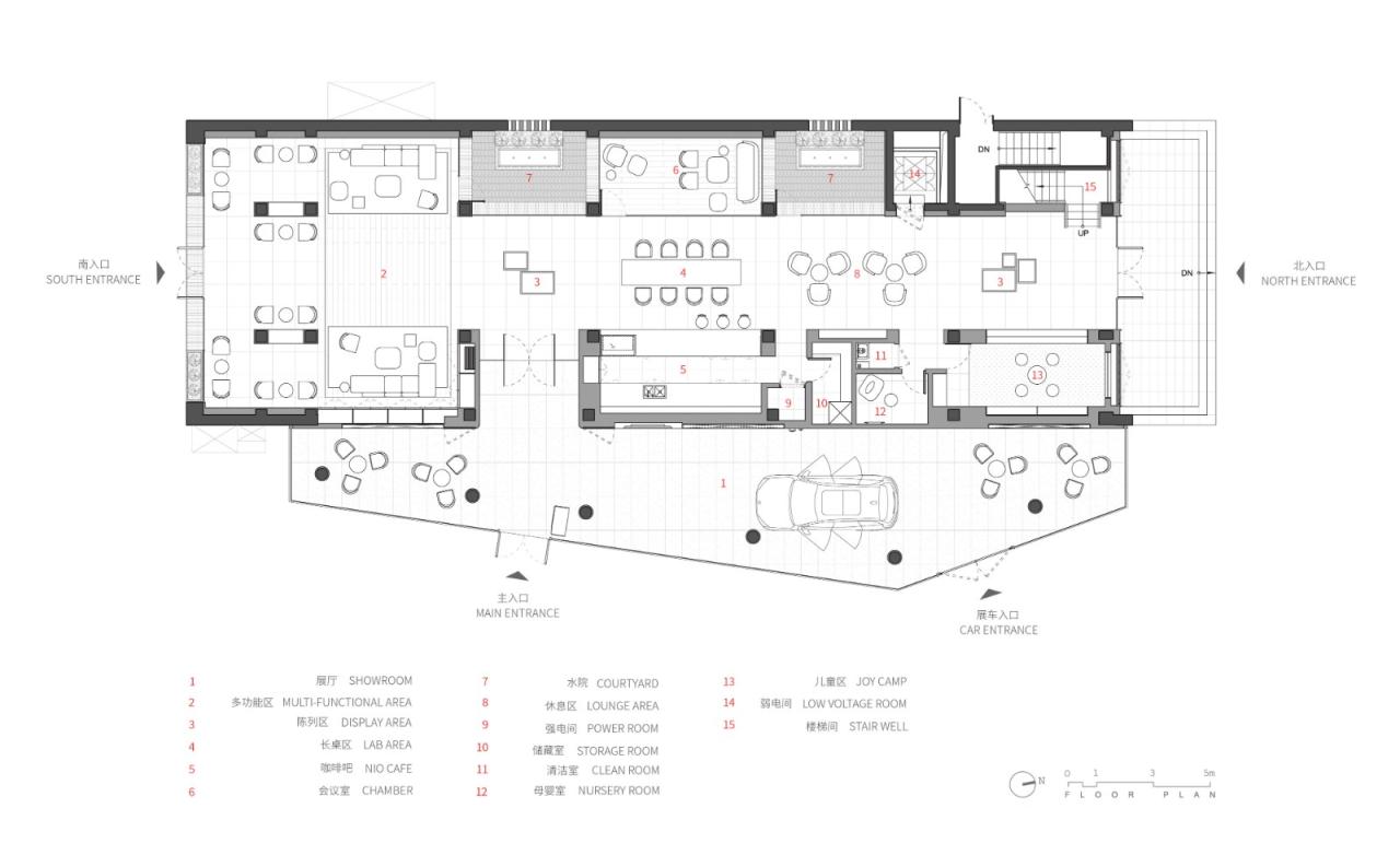
△一楼平面图 – 常规模式

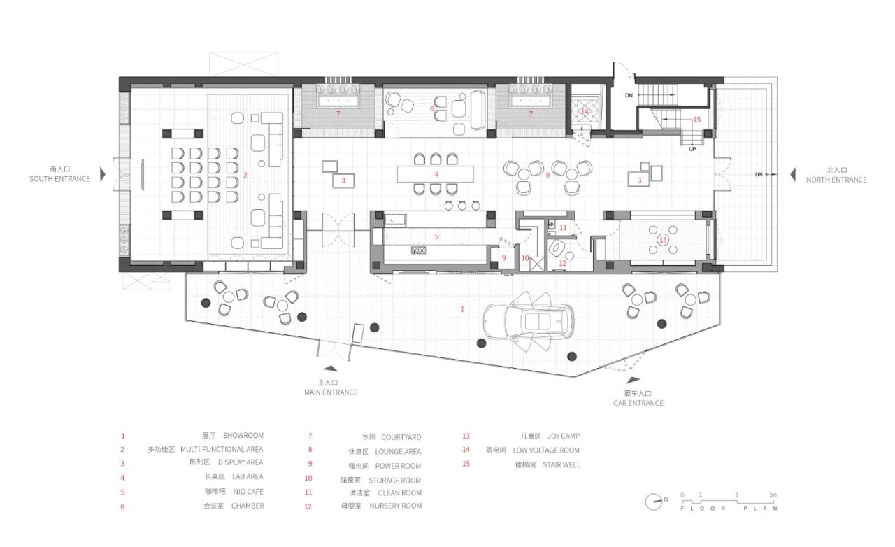
△一楼平面图 – 常规模式

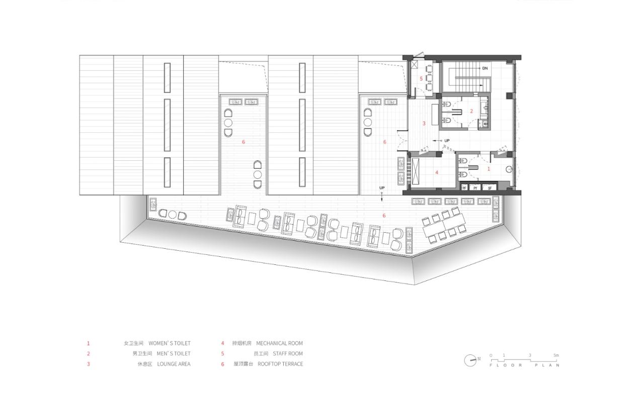
△二楼平面图
建筑位于黑虎泉畔的宽厚里商业街,始建于2015年,是一个包含3个坡屋顶和2个内庭院的展览空间。该场地曾被改作商铺,内庭院被拆除以扩充室内面积。

△建筑原貌

△层层挑出的铝制屋檐以下是通高的玻璃幕墙

△北立面原貌

△改造后的北外立面

△南立面原貌

△改造后的南外立面
芝作室在本次改造中还原建筑秩序,并引入一个开放式空间,“新”的现代布局与“旧”砖混建筑并置,营造出一种和谐的蜕变。

△新旧共存的建筑外貌

△白色水磨石墙、地和镜面不锈钢天花是展厅的标志性材料组合
整栋建筑在视觉上呈现出现代与传统建筑语言的对比, 也正好将展厅和车主俱乐部分成两个体块。朝向主街道的汽车展厅,通高的玻璃幕墙将充满高科技感的空间完整地展现给往来行人。铝制屋檐以平缓坡度层层挑出,用现代材料与样式重新诠释传统的斗拱结构。

△从展厅到用户俱乐部的入口视角

△庭院以旧砖青瓦修复,居中设有青石板涌泉,呼应“泉城”独特的城市景观
由展厅向内行进,俱乐部入口以一处静谧的庭院景观来迎接每一位车主。庭院以旧砖修复,地面青瓦立铺出传统的水波样式,栽竹养蕨,居中设有简约的青石板涌泉,汇聚自然风韵,同时呼应“泉城”独特的城市景观。

△静谧的庭院景观与展示区迎接着每一位车主

△梁柱结构当中的开放布局贯通南北,提供清晰通透的穿堂视野
车主俱乐部位于3个坡屋顶下,原有混凝土梁柱结构界定出南北轴向的开放用户空间,提供了清晰的穿堂视野。

△坡屋顶内部原貌

△呼应原建筑坡屋顶的木纹铝板天花

△轻盈的铝板与厚重的混凝土结构形成轻与重的对比
设计团队呼应原建筑坡屋顶用木纹铝板打造出一系列坡顶天花,与厚重的混凝土结构形成轻与重的对比。铝板相互独立,间隙内藏有轨道射灯和空调风口,顶点处分开成“人”字形,配合新增的条形天窗,将阳光引入室内。

△NIO Café 位于车主俱乐部的中心位置

△在坡屋顶与天窗下的聚会场所


△隐藏的壁柜里存放有活动隔断,在举办瑜伽课或分享会时能把多功能厅独立分隔出来

△儿童区地毯的设计灵感源自苔藓草坪

△嵌入白色空间内的木制楼梯

△细节表现出轻盈和现代感
车主俱乐部居中位置是NIO Café,南边是多功能厅,为大部分人聚集的场所,北边是儿童游乐区和通往二层的楼梯。木制柜台、展台、楼梯间如同嵌入建筑内的独立“积木”,与木纹天花系统一起为这个极简留白式画廊空间带来温暖与纹理。

△透明亚克力底座与“漂浮”的木托盘
一系列不同高低组合的落地展台亦采用轻重对比的理念进行设计,展台台面仿如一个个漂浮的木托盘,与透明的亚克力底座通过镶嵌的方式结合在一起,不仅视觉轻盈,也用现代的方式呼应了传统榫卯的细节。

△楼梯间顶上的天窗引导客人走到二楼

△涂上日光的白墙带来宁静的氛围

△白色渐变玻璃扶手柔和地界定内外边缘,为建筑立面增添雾气般的朦胧诗意
沿楼梯拾级而上,二层原有平屋顶区域经加固后变成户外露台。露台扶手用白色渐变夹膜玻璃制成,不仅有助于保护访客隐私,还能柔和地界定内外边缘,为建筑立面增添雾气般的朦胧诗意。

△新旧之间梦幻般的对话

△连接不同时代的室外露台
登高远眺,泉城高楼林立的天际线尽收眼底,同时还能触摸到传统建筑上的青砖黛瓦。每位到访济南蔚来中心的新能源汽车用户仿佛进行着一段奇妙的时间之旅,共同畅想未来。
项目信息
项目客户:NIO蔚来汽车
项目地址:山东省济南市历下区黑虎泉西路3号
使用面积:730平方米
设计团队:LUKSTUDIO芝作室(www.lukstudiodesign.com)
设计总监:陆颖芝
项目团队:张一诚、王海鑫、杜雪、谭丽苗、高永
设计内容:建筑、室内、景观
设计工期:2021.08 – 2021.12
施工工期:2022.03 – 2022.07
灯光顾问:杭州束芒照明设计有限公司
图纸深化:弘晟建筑装饰设计工程(上海)有限公司
家具产品:格度、HAY、界意、江丰、体物、吱音
项目摄影:Wen Studio

BIM建筑网





评论前必须登录!
注册