
Mây- 项目名称意味着云,由 2 栋 2 种不同建筑风格的建筑,街头咖啡馆和新古典主义风格的婚礼中心的一部分进行了翻新。考虑到有限的预算和投资者保留部分婚礼中心的意愿,我们决定保留前部建筑和新古典主义建筑的结构,并用新的结构将新与旧的部分联系起来


由于双方对咖啡店的共同期望反映了某些越南建筑特色,以及为项目注入了复古的北方建筑感觉,所以选择了鲜红色的鱼鳞瓦片和生锈钢的弯曲屋顶系统作为全新外观的匹配元素。理想的古董感和传统反射不仅体现在类似于寺庙的弯曲屋顶和旧式鱼鳞瓷砖的使用上,还包括宽阔的门廊,红砖鹅卵石,最后是充满熟悉的植物和花香的花园。我们还追求最高水平的简单性,始终避免使用任何不必要的细节。



因此,唯一的亮点是沿着立面延伸的大而高的门廊,其次是纤薄,轻巧且设计方便的天然木材内饰,装饰在弯曲屋顶下的喷砂混凝土地板上。花园和屋顶成为外人几乎看不见的惊喜因素,只有当一个人通过大门廊或旧结构的其余部分进一步进入内部时,才会显露出来。



我们一直渴望创造“鲜活的建筑”,优雅地融入预先存在的元素,毫不费力地融入当前自然的生活流动。在不作出任何牺牲的情况下重新崛起并成为整体的一个组成部分是我们的首要任务,特别是当考虑到自然时。工程还必须满足自给自足和以最少资源和维护运行的条件,同时对使用者来说是友好的。



在这个项目中,这种建筑理念是灵活但强有力的实施,使用耐用和适合气候的材料,以及以合理的方式将旧与新连接起来的想法,从而保持和进一步培育生命的流动,没有任何不必要的和代价高昂的干扰。



真正的建筑必须是其环境中有机和生动的一部分,因此能够培育并为其所有者提供恢复活力的能量,为他们提供健康的自然元素。一座将人类与吹风、阳光、雨滴、鸟儿唱歌和树叶沙沙作响完全分开的建筑,是阻止我们充分体验生活的建筑。我们不希望建造建筑;我们专注于通过我们的设计举措来改善生活。






项目图纸

△爆炸图

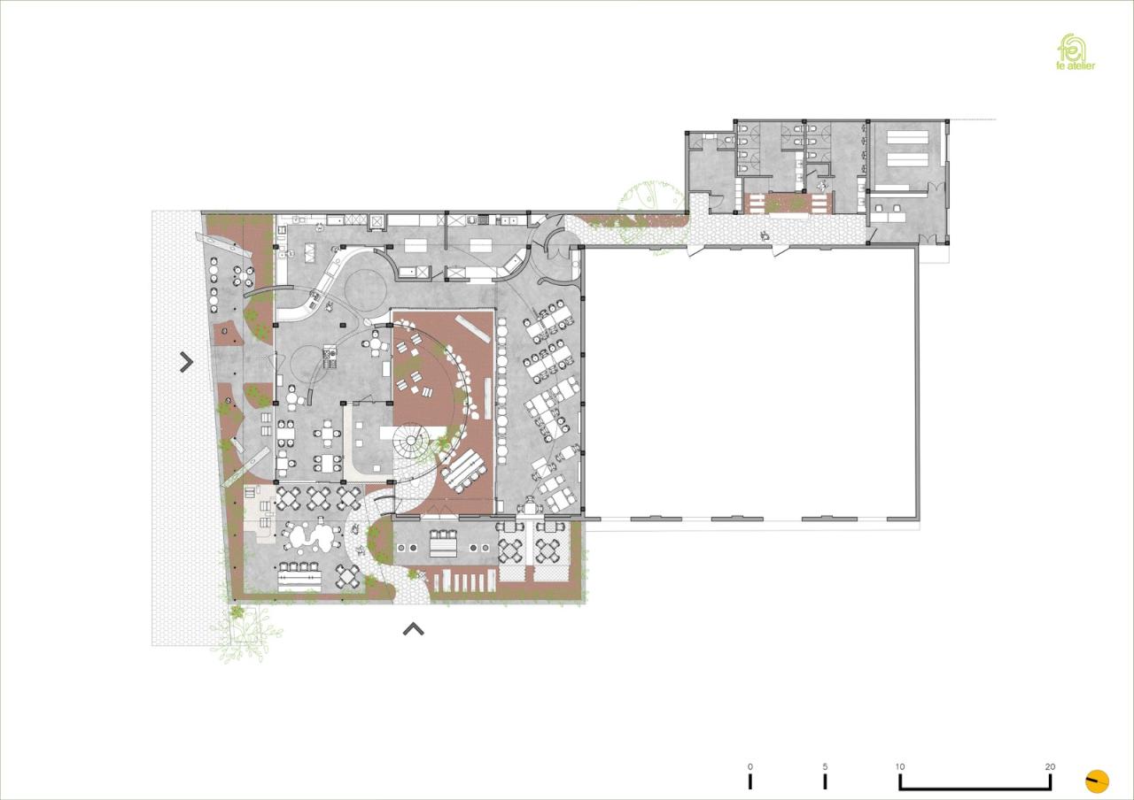
△一层平面图

△二层平面图

△三层平面图

△立面图

△轴测图

△分析图
项目信息
建筑师:FeA
面积 :800m²
项目年份 :2022
摄影师 :Trieu Chien
主持建筑师 :Vu Nam Son, Vu Quynh Giao
设计团队 :Nguyen Khuong Dung, Pham Bao Ngoc, Tran To Quyen
结构工程师 :Tran Dang Huynh
建筑设计 :FeA
地点:越南,Thành phố Ninh Bình

BIM建筑网





评论前必须登录!
注册