
委托人在这个房子里住了很长时间,他希望开始一段全新的生活体验,因此建筑师在这个改造项目中保留了原有的结构框架,拆除旧墙体和楼梯,以创造新的流通空间以及将房间重新划分。


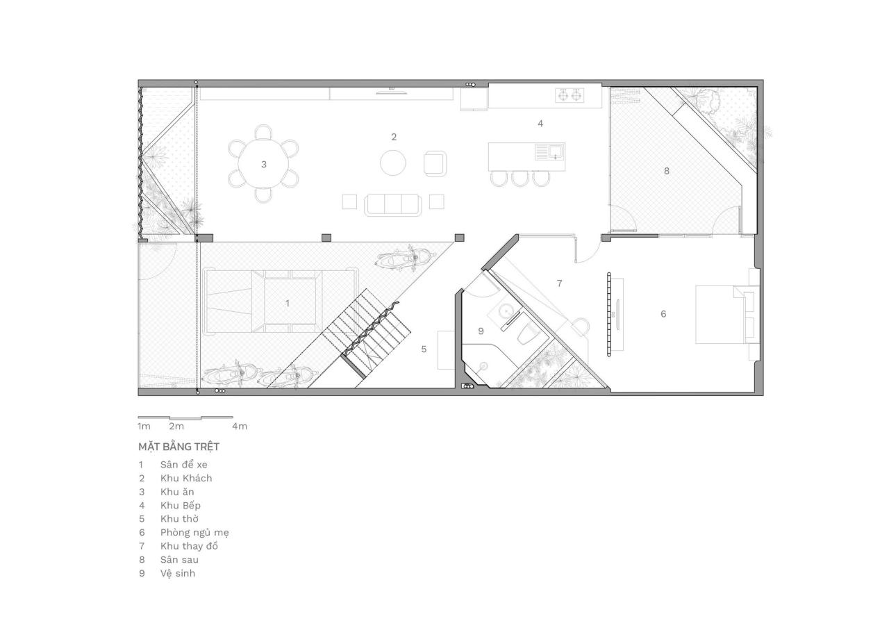
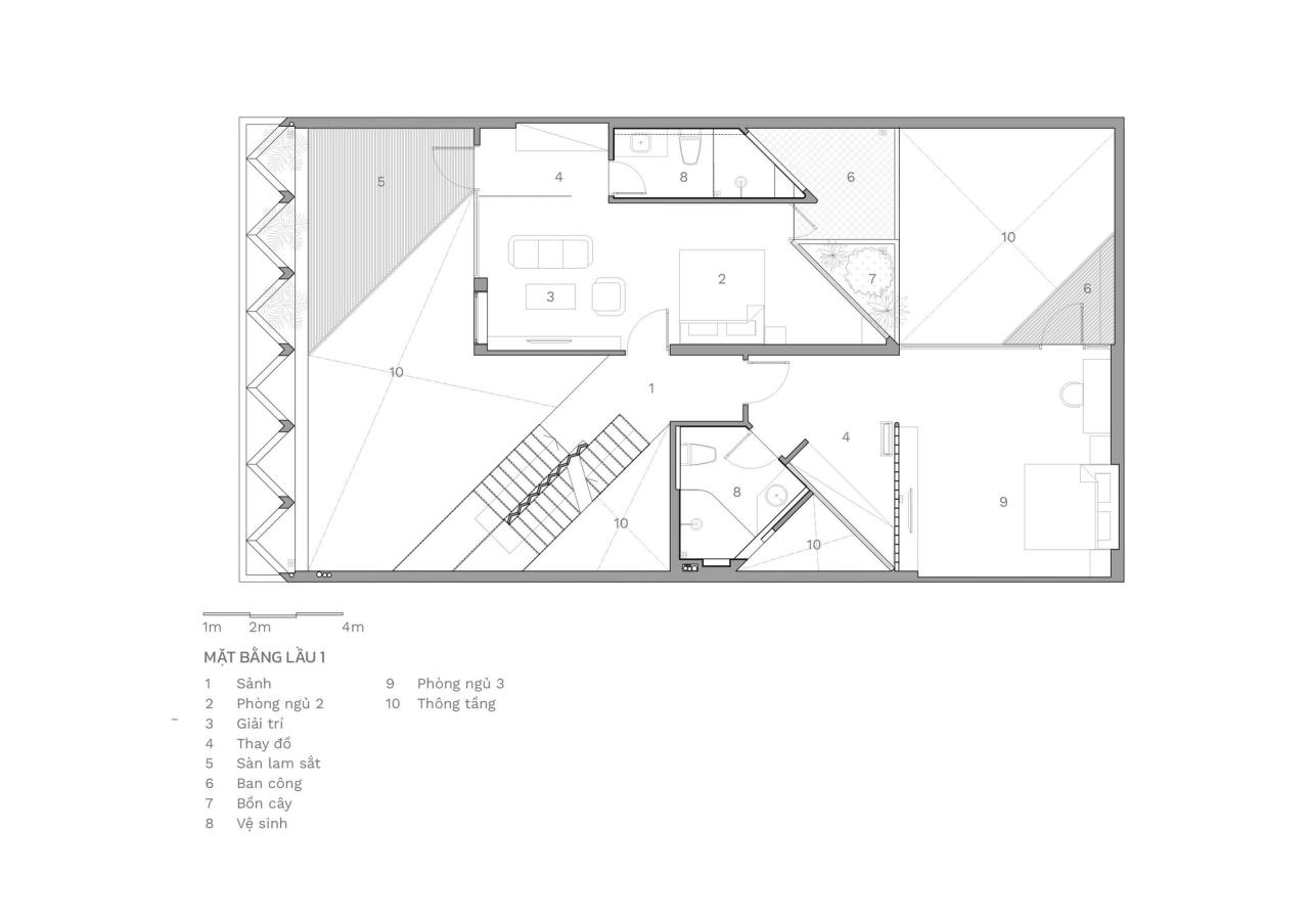
由于老房子有一个典型的矩形布局和太多的小房间,建筑师通过加入与原格局成 45 度角的第二个模式来为居住空间注入新的活力。新墙体以对角线的形式穿插进平面布局中,这不仅重塑了房间的形状,还将它们向中庭、内院和新的流通核心打开,从而优化了自然采光。


划分具有共同顶点的三角空间便于进入房间。每个房间也朝中庭方向扩大,促进了通风和灵活性。





新的对角线元素也重复出现在住宅的内表面和开口处,特别是瓷砖、木纹、水磨石墙和空心砖系统,统一了项目的几何图案元素。










项目图纸

△一层平面图

△二层平面图

△三层平面图

△屋顶楼梯平面图

△屋顶平面图
项目信息
建筑师:Khuon Studio
面积:380 m²
项目年份:2022
摄影师:Thiet Vu
厂家:Toto, Dulux, Takara Standard
建筑师:Huynh Anh Tuan, Ngo Quang Hau
建筑设计:Khuon Studio
地点:越南,Ho Chi Minh City
微信公众号:xuebim
关注建筑行业BIM发展、研究建筑新技术,汇集建筑前沿信息!
← 微信扫一扫,关注我们+

BIM建筑网





评论前必须登录!
注册