
该项目旨在设计出能容纳瑜伽、诵经和住宿等活动的多功能空间,并提供基础的厨房和其他功能空间。项目施工分为两阶段进行。


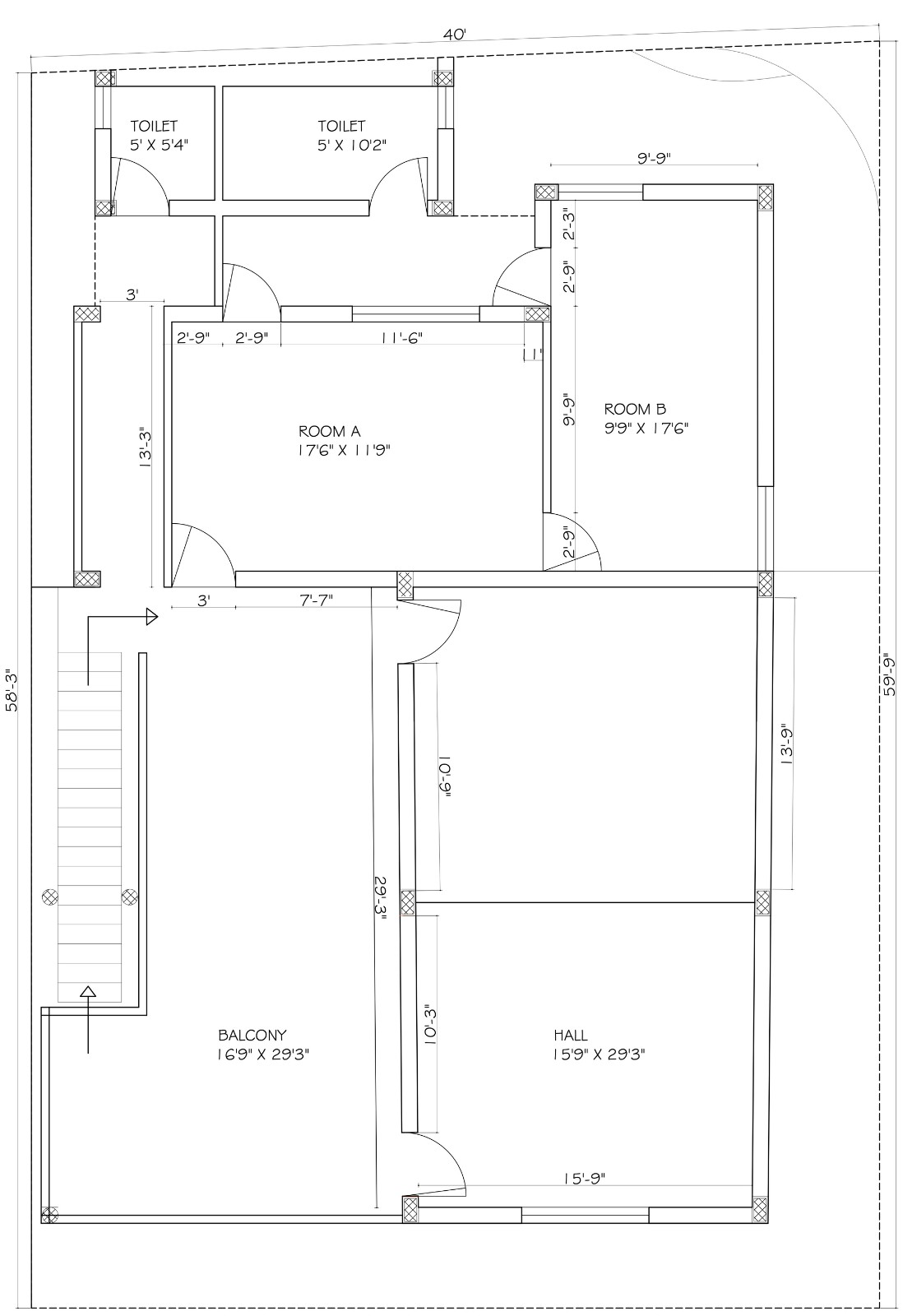
第一阶段重点是建造能容纳 30 到 40 人的会议空间。屋顶的浅弧拱顶形成了良好的混响效果,利于吟诵。气流由东向西,自下而上穿过房间,形成良好通风。该地块面宽 40 英尺,进深 60 英尺,位于Coimbatore西侧山脚下。


规则场地上的建筑布局相对简单,我们在西侧放置方形体量,短边临路,长边面西。为应对西晒,我们需要使用具有高导热性、低隔热性的材料。尺寸约为 16” x 8” x 8” 的 porotherm 粘土砌块是比较理想的选择,它尺寸较大但重量较轻,加快了施工速度,但由于其较脆,也在一定程度上拖延了完工时间。










项目图纸

△平面图

△平面图
项目信息
建筑师:Masonry of Architects
面积:2600 ft²
项目年份:2022
摄影师:Robin Shibu
厂家:Asian, Kavery, Maheswary Marbles, S Windows, Saint Gobain Glass, Surya Lime, Tata Oxide, Weinerberger Bricks
主创建筑师:Sabarish Thirumurthy, Tamilselvan Kannan
项目建筑师:Gokul G.S, Sanjay Kand
场地面积:2400 sft
建筑设计:Masonry of Architects
制造工艺:Siva Engineering
地点:印度,Coimbatore
微信公众号:xuebim
关注建筑行业BIM发展、研究建筑新技术,汇集建筑前沿信息!
← 微信扫一扫,关注我们+

BIM建筑网





评论前必须登录!
注册