过滤器的过滤功能可以针对模型构件的各种属性进行批量选择及编辑,在项目实际应用中非常广泛,不仅是制图方面,在协作分析、设计合作中也被频繁应用,可以说是非常具有探索价值的一个功能。同时,过滤器优先等级高过对象样式、可见性、管道系统以及阶段设置,因此任何在过滤器中的设置都可以覆盖在前4个功能面板中的设置,并且过滤器设置也只作用于当前视图,不会影响到该模型构件在其他视图的图面表达。
墙体厚度过滤器
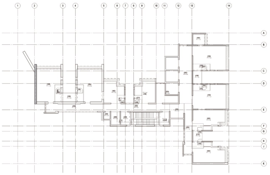
本节将用墙体厚度为例,说明过滤器功能的使用。如图3.38所示,图面是一个住宅楼的标准层。现在需要使用过滤器功能使图面可以直观表达出墙体厚度分别。

图 3. 38 住宅楼标准层平面
进行过滤器设置需要经过3个步骤,提出问题、限定类别,再限定条件。如图3.39所示,左边栏提出选择条件并命名过滤器,因为目的是通过墙体厚度进行过滤,因此直接用墙体厚度命名,如Wall200代表厚度为200mm的墙体选择集,以此类推,建立Wall250、Wall300等选择集;中间栏限定类别,即选择过滤条件使用的模型构件类别,在这个例子中即是墙体;右边栏限定条件,用逻辑公式表达选择条件,即是厚度等于200。以此类推,完成所有过滤器的设置。然后回到可见性/图形设置面板中的过滤器选项,如图3.40所示依次添加设置完成的过滤条件到过滤器,并根据项目要求进行图面表达的定制化,最终成果如图3.41所示。

图3.39墙体厚度过滤器设置

图3.40对墙体厚度过滤组别进行图面定制化设置
——节选自《BIM设计软件与制图——基于Revit的制图实践》李一叶 著
仅供学习交流 版权归原作者及出版社所有如有侵权请联系删除

BIM建筑网





评论前必须登录!
注册