


前话:本案位于湖北宜昌的一个小山村。整个村落由两条水系环绕,承半环形山地与农田组成,山体大部分为自然原石,项目房子全由当地石料砌筑而成。



源:源于当地的民俗传承与古法石墙的砌筑方式,因地制宜,因势利导,顺应当下的生活方式。


问:房子由原村落的两个兄弟的石屋,外部小石块堆砌而成,肌理混乱,工艺粗糙,但由于时间的沉淀而变成真实。屋内由木结构加土砖砌筑,年久失修,已支撑不了石墙的重量。
解:为了保留石墙的肌理,把原有的木结构更改为钢架结构。石墙开启大面积玻璃窗,进行适当的拆除和反砌。两栋石屋中间嵌入一个钢结构玻璃体作为入口前厅与天井,后方增加一把楼梯至二层,保留石墙内外的一体化设计方式。










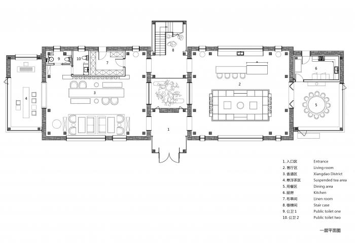
一层设有西式的咖啡厅和围合式壁炉,客人谈天说地,畅聊人生,另一侧则是中式传统的书、香、茶、画,再配置一个餐厅,以满足不同入住客人的需求。










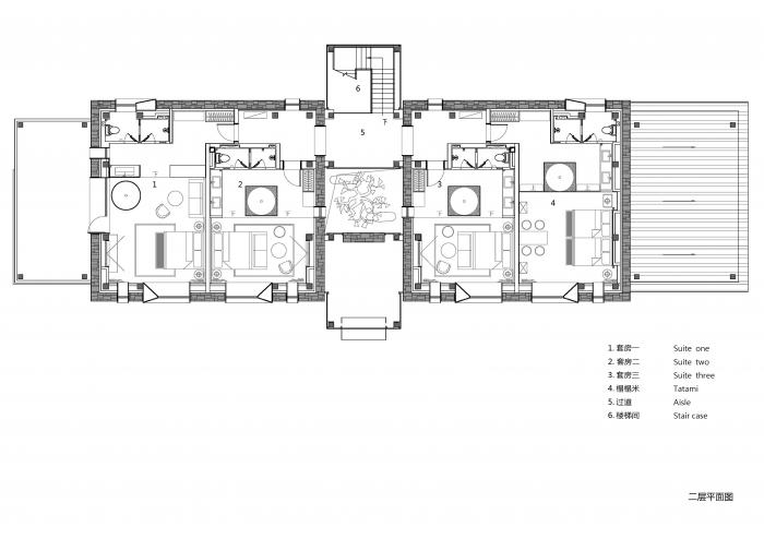
二层由四间客房组成,三间大客房加一间亲子房,户型的多样性,让客人的体验更丰富。空间对原有木材进行再次利用,结合石墙与钢材,刚柔并济。整体内外塑造更讲究建筑与环境的融合,空间与自然的关系,可视的窗景意为画境。





结语:山水田园,古村石屋。依稀记得巴东人毛老师的山歌,清亮悠扬,听之不厌。石屋部落更想表达一种画境,畅想自然与人的融合。


设计图纸

△ 一层平面图

△ 二层平面图

△ 1-14轴立面图

△ 14-1轴立面图

△ A-H H-A轴立面图

△ 1-1 2-2剖面图

△ 3-3剖面图
项目信息
项目名称:南岔湾·石屋部落民宿
项目地点:湖北省宜昌市夷陵区分乡镇南岔湾村四组
项目类型:民宿
项目面积:900平方米
完工时间:2020年5月
设计范围:建筑/室内/景观/软装
设计公司:中国美术学院风景建筑设计研究总院(www.caaladi.com)
电邮联系方式:[email protected]
主创设计师:黄志勇
建筑设计:郑若侃、赖寒、黄晓峰、胡鹭翔
室内设计:黄晓峰、梁章孟、张至祥
景观设计:郑若侃、洪雪峰、胡鹭翔、谢淇名、黄笑梅
软装设计:林永锋
结构设计:林盈峰
设备设计:章永刚
摄影师:奥观建筑视觉
业主:宜昌渡心石屋民宿旅游开发有限公司

BIM建筑网





评论前必须登录!
注册