
初始状态:隔墙之间的建筑包括三个体量,高度分别为4层、单层和2层,其中后两个位于非建设用地,必须拆除。

△ 初始状态
项目区域包括前两层,那里原本有一个工业车间,我们被委托将它改造成一座住宅。室内空间一片杂乱,天花板很低,自然光和通风极少。

清空:目标是定义一个2层的住宅,提供开放的、更高挑的空间,并带来良好的通风和自然采光条件。违章的建筑以及住宅的背面都被拆除,以获得光照、通风和室内中庭。中间的楼板也被拆除,还将底层楼面下沉了50厘米,以获得更高的空间。

△ 清空不必要的结构
插入:在现有体量中,引入了支撑一层的钢结构。该结构从主立面向内伸展了6米,定义出一个双层高的通道。

△ 插入钢结构










在横截面上,这套结构将空间分成1/3宽的“服务空间”和2/3宽的“享受空间”。从长剖面来看,结构则定义了连锁的空间序列,让街道和天井相通。

△ 剖面
能量与物质:房子的入口处设置了一块双层通高的区域,它没有特定的用途,而是作为生物气候的调节器。材料选择方面,混合了原始结构的粗糙与新建筑的纯净。庭院里还同时容纳着餐厅外摆的空间,以及一处花圃,其中有着中等大小的植株品种。





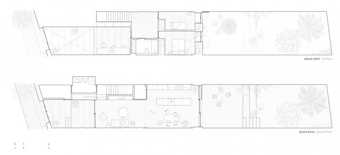
设计图纸

△ 平面图

△ 一层轴测图

△ 二层轴测图
项目信息
项目类型:适应性利用,住宅室内设计
项目地点:巴塞罗那,西班牙
建筑师:estudi08014
面积:142m²
项目年份:2020
摄影师:Pol Viladoms
主创建筑师:Adrià Guardiet, Sandra Torres
结构施工方:Xavier Gimferrer
施工方:Contrast Building
微信公众号:xuebim
关注建筑行业BIM发展、研究建筑新技术,汇集建筑前沿信息!
← 微信扫一扫,关注我们+

BIM建筑网





评论前必须登录!
注册