三土渡口,临江两岸 穿城而过的长江、嘉陵江既造就了重庆“山水相依”的独特城市格局和地理景观,也给城市交通带来了诸多不便。在人力、技术和资金相对匮乏的岁月里,车渡成为往返于城市各区重要的车辆交通工具和物质输送通道。然而,近几十年来随着一座座跨江大桥的建立,车渡这一传统交通载体的职能日渐式微,重庆以往运营的15个车渡码头已逐渐停运。往返于三胜、水土两地之间的三土渡口成为重庆主城区唯一在航的公益性车渡渡口。
△ 车渡服务站两岸 ©刘国畅
△ 渡船与码头 ©刘国畅 位于三土渡口西岸的北碚区施家梁镇三胜村是古时重庆通向合川的要道之一。上世纪60年代,随着川仪17厂的进驻繁华一时,也因17厂的衰落而逐渐沉寂。东岸是北碚区水土镇,清康熙年间设立水土铺,后称水土沱。水土镇曾是工商重镇,有诗“白天千人躬首,夜晚万盏明灯”来形容水土镇的繁华。民国陪都时期中央警卫署落户于此,建国以后水土镇是江北县人民政府驻地。县政府办公楼、人民大礼堂等历史建筑遗址均保留完好。
△ 施家梁老街鸟瞰 ©刘国畅
△ 水土老街 ©田琦 随着不远处水土嘉陵江大桥的即将竣工,重庆主城最后一处车渡渡口可能也会就此消逝在历史的长河中。然而,渡口码头是老重庆历史印记中不可或缺的一部分,尽管车渡作为交通工具的功能会逐渐减弱,但是将这一份老城记忆留下,通过合理的功能定位与产业策划使其重获新生,并激活带动沿线村镇的复兴与发展,或许是一条“以点连线,以线带面”的有效路径。
△ 建筑临江而立 ©刘国畅 曾经与车渡面临相同困境的还有重庆另一种独特的交通工具——过江索道。于上世纪八十年代初期建成并使用的过江索道辉煌一时,同样也是随着重庆城市交通格局的日新月异,过江索道的客运功能逐步减弱。为改善这一局面,重庆索道公司将过江索道从单一的索道交通服务转型为索道与城市交通旅游结合的模式,使长江索道成为重庆城市旅游的特色景点。
△ 渡船与车渡服务站 ©刘国畅 有着相似发展轨迹的车渡或许能从长江索道的转型中获得启发。以战备码头这一体验旅游背景为依托,充分发挥其“一线临江”的景观优势,并结合两岸的自然、人文等资源,将这一面临淘汰的传统交通方式与文旅产业结合,可以打破现有物质空间的限制,在留住这一老城记忆的同时,利用其历史、社会、文化等因素,打造一处新的城市旅游景点。 立于江岸,功能复合 在与车渡管理站沟通之后,我们寻求以建筑的方式介入这一转型过程,决定为三土码头建造一个配套服务的公共空间,为市民及游客提供文化展示和休闲的场所,同时解决部分船员的食宿问题,以此来体验车渡,将原汁原味的老重庆文化延续,从而带动两岸的复兴和发展。
△ 夜色下的车渡服务站 ©刘国畅 项目位于嘉陵江西岸的一处由条石垒砌的崖壁之上,地块紧邻经由三胜码头驶上车渡船的施家三胜公路。场地面积只有150平方米左右,为满足多种空间复合的多样性需求,我们将建筑依场地形状南北向为长边摆放,东面临江,西面靠山,最终用三个基本长方体块以上下错落叠加的组合方式而矗立于场地中。
△ 河岸边的心形巨石 ©刘国畅 南北向大小不同、交错布置的三个体块化解了场地的局促紧张,出挑的体量形成了多个灰空间,丰富了空间层次及立面构成。
△ 服务站与远景 ©刘国畅 底层体块西侧为建筑的主入口部分,虚实相结合打破了空间的呆板沉闷,以开放的空间感受引入人流,同时可减少空间狭长感,增强建筑的功能实用性。
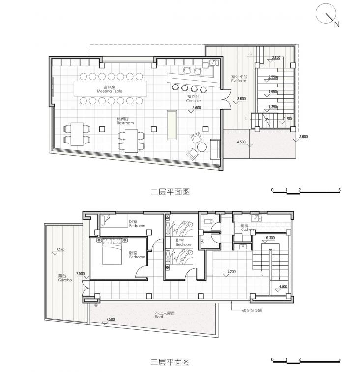
△ 出挑平台与水土老街对望 ©刘国畅 在功能策划上,我们将第一层作为对外开放的文化展示空间,展示车渡这一传统交通工具的历史发展过程;第二层作为市民休闲的区域,提供茶水、WIFI、充电宝、简单医疗救助等便民服务,满足建筑作为服务站的开放性和公众参与性;第三层则是为车渡船员提供生活起居的场所。
△ 一层展厅的砖墙 ©刘国畅
△ 二层休闲空间 ©图里摄影
△ 船员宿舍走廊斑驳光影 ©图里摄影 延续肌理,融于市井 建筑形态上,通过场地肌理的分析,我们希望建筑与周边老旧民房能产生形态上的相关性,试图将新的手法赋予山地建筑的传统材料、色彩、形式之上,将错叠的坡屋顶、吊脚楼、踏步等元素进行重新定义,形成新的形态视觉和文脉属性,使得建筑与环境融为一体,与渡口沿岸线相呼应,激发场地的传统空间活力,最终以开放的姿态迎接市民和游客。
△ 建筑与江边巨石 ©刘国畅©田琦 建筑屋顶延续当地民居传统坡屋顶的形态,但使用现代建筑的材料和体量,体现传统元素与现代元素相结合。底层除卫生间以外全部架空形成完全开放的空间,为文化展示空间提供更开敞的空间感受。在正对入口的位置设计了一个突出的垂直于江面方向的坡屋顶框形成景框,从入口处就可以直面嘉陵江以及对岸的远山。二层的体量经过扭转获得了更好的观景面,临江面全部采用落地玻璃窗,最大限度的保留了俯览江面的视角。
△ 二层落地玻璃 ©刘国畅
△ 二层极佳的观景视野欣赏日出 ©图里摄影
△ 阳光下的二层座谈区 ©图里摄影
△ 三层船员宿舍 ©刘国畅 同时,二层体块的错动在一层北侧形成了通高空间用作楼梯间,在三层南侧形成出挑观景平台。楼梯间同样没有围护结构成为开敞空间,这一设计使得楼梯间也拥有了开敞的观景面,增加了建筑的虚实对比,使得形体更加轻盈,仿佛飘浮在场地之上。
△ 一层交通转换空间 ©图里摄影
△ 融入活动功能的交通空间 ©图里摄影 三层则是一个相对纯粹的坡屋顶盒子,与背景的传统民居遥相呼应。
△ 雾气缭绕中的车渡服务站 ©刘国畅
△ 融于市井 ©田琦 建筑主体结构选用全钢框架结构,外围护结构则以水泥纤维板为主,部分墙体采用青砖砌成的传统砖花墙。采用部分砖花墙而不是大面积的落地玻璃窗的处理既保证了建筑体量的完整性,镂空的部分又保证了建筑内部的采光,并且能形成独特的光影效果。
△ 清晨的光与影(施工中) ©田琦 建筑灰色的整体进一步使得建筑相对于周边建筑高大的尺度有所消解,也与三胜村整体的色调相符,让建筑如本身生长在江边的巨石一般,低调地伫立在嘉陵江畔,体现了独特的场所精神。
△ 隔江远眺 ©刘国畅 创造契机,挑战制约 为解决条石垒成的将近11米的崖壁高差,我们用一座宛如山城步道的折行钢结构楼梯来连接建筑底层和位于江边的室外停车场。作为整个建筑的前景,打破了建筑本身体量的秩序,在拾阶而上的行进中以达到不同的空间体验。
△ 钢结构楼梯连接11米高差 ©刘国畅
△ 折行向上的钢结构楼梯 ©刘国畅 为尽快建成车渡服务站并投入使用,建筑整体采用了装配式全钢结构。在保证施工速度的同时,暴露出来的黑色钢结构与灰色的水泥纤维板相协调,体现出现代建筑的要素,并且钢结构的设计也让二层的悬挑结构部分厚重感减少。
△ 晨雾中 ©刘国畅
△ 钢结构示意图 建筑“一线临江”的地理位置带来了极佳的观景视野的同时我们也在思考可能遇到的极大挑战。为应对50年一遇的汛期水位线上涨可能淹没低层这一风险,建筑首层全部架空,在功能上设定为布置较为灵活的展厅,在洪峰过境时方便将室内尽早清空并撤离人员。水泥纤维板以及水磨石地面等材料的选择也是为了被淹没后不至于遭受颠覆性的破坏。
△ 底层架空与巨大悬挑 ©刘国畅 成效反馈,持续助力 以公共空间作为触媒,以引导而非主导的方式逐步推进周边地区的发展,是当下建筑学介入乡村振兴的一种新模式。通过建设并完善公共空间和公共设施的同时,提高乡村居民的居住和生活水平,并引导乡村产业的逐步转型以及民居的建设,是使乡村和城市边远地区重新焕发活力的长远之策。
△ 服务站运营后待渡的市民 ©刘国畅
△ 透过砖缝眺望眺望对岸 ©刘国畅 在三胜车渡服务站建成并投入使用后,三土车渡的运载量开始逐步回暖,周末以此为目的地前来旅游打卡的市民也络绎不绝。以此为依托,我们又参与到了车渡服务站二期的建筑设计及后街的沿街建筑产业策划与改造项目中,用“以点连线,以线带面”的模式,持续并渐进地推进村里风貌的改变。建成之后,这里将成为以车渡文化为主的一个复合型公共休闲服务区域,让三土车渡自身发展的生态链得到有机的延续。
△ 服务站后街整体风貌改造
△ 总平面图
△ 剖透视图
△ 生成过程动图
△ 一层平面图
△ 二、三层平面图
△ 立面图
△ 墙身大样示意 项目信息 项目名称:陵江驿渡·三胜车渡服务站 项目地址:中国重庆市北碚区施家梁镇三胜村三胜渡口 项目面积:430平方米 建筑设计:重庆悦集建筑设计事务所 室内设计:重庆悦集建筑设计事务所 灯光设计:重庆悦集建筑设计事务所 联系邮箱:[email protected] 主创团队:田琦李骏何飙 设计团队:李涛张茜 翁钰展 于春晓林岭 谭梦 施工图设计:重庆何方城市规划设计有限公司第一分公司 钢结构设计:王立彬徐富洪 主要材质:钢材、水泥纤维板、水磨石、青砖 建筑摄影:三棱镜建筑景观摄影(刘国畅)、图里摄影、田琦 设计时间:2018.08-2019.01 建造时间:2019.04-2019.10

BIM建筑网





评论前必须登录!
注册