

△ 一层中庭 ©Atelier Alter Architects 时境建筑
英良石材自然历史博物馆的业主在多年的石材业务中收集并保护了大量的化石文物,他们希望在集团总部的办公楼里引入一个博物馆用于展示化石的历史和研究化石的自然科学。在对原有的办公楼空间的改造设计中包含了两个巨大的挑战:第一,如何区隔和连接内部办公和开放展览这两种对立的功能空间;第二,原建筑办公区主要靠内部中庭采光,博物馆功能的介入势必使原先十分有限的办公采光更加紧张。

△ 建筑外观 ©Atelier Alter Architects 时境建筑

△ 天然晶体 ©Yingliang Group英良集团

△ 天光筒创意草图

△ 晶体空间逻辑概念图

△ 晶体平面概念草图




△ 中庭天光筒 ©Atelier Alter Architects 时境建筑

△ 入口 ©Atelier Alter Architects 时境建筑

△ 电梯间 ©Atelier Alter Architects 时境建筑







△ 展厅©Atelier Alter Architects 时境建筑
古老岩石最先出现在大陆内部的结晶基底之中,这些古老的晶体经过长时间地壳变化产生的高温、高压、混合、沉积,最终形成现在石头的样子。 我们通过对石材最原始的形态 :“晶体结构”的解读中获得了新的建筑语言。我们在中庭中引入三个相互穿插的晶体,它们有如金字塔般的锥筒,其倾斜的上外表面可以将一部分天光反射到中庭四周的办公室里,而在筒内,另外的一部分天光则可以直达一层的博物馆大堂。围绕着这些垂直通高的晶体,一些横向的晶体与中庭纵向的晶体生长、穿插在一起形成了一个个的化石展厅,展厅的布局根据展览的时间和故事线索行进展开。这些水平的晶体沿着自身的生长方向也把一部分外立面上的室外的光线引入到博物馆展厅室内——最终这些横竖交错的晶体将光线、展览功能交织在一起。



△ 交错生长的“晶体方锥”形成的反重力空间
最终的改造呈现出这样一种形态,即之前横平竖直的楼板仿佛被多个晶锥方体穿透,原本正交系统的梁柱空间被转换成一个个神秘发光的晶体空间,当这些沉重的物体漂浮起来时,反重力空间将观众置于一个未知的空间中,仿佛直接来自一部科幻电影。中庭空间被晶体的内和外分割成博物馆和办公两个功能,博物馆内部呈现出不停生长的晶体内部的复杂交错。在这里,原始的石头晶体转译成的空间正在与作为展品的远古化石进行着跨时空对话。




△ 纯净的建筑语言—墙壁©Atelier Alter Architects 时境建筑


△ 墙壁的反光功能 ©Atelier Alter Architects 时境建筑
博物馆整个空间没有多余的装饰,用最原始的表达方式记录沉积亿万年的古生物印记,只使用了一个简单的构成元素——墙壁,这种简单性带来的是空间、尺度和光线体验的前置。墙壁不再仅仅是功能的分割界面,它的使用被重新创造:不仅带来平静冷峻的洞穴般的气氛衬托年代久远的地质化石展品;晶体的墙壁内部是博物馆的天花,墙壁外部承载了办公楼层的反光板功能,同时间隔了公共和私密两个分区。

△ 施工现场

△ 墙体材料

△ 墙体分解图
由于墙体使用了大量倾斜的表面构成,所以空间无法用传统的二维坐标轴方式来进行表达,角度标注也无法精确地传达这些空间当中的面和线,我们最终采用了三维坐标系的方法对图纸进行标注,而施工现场则使用全站仪对三维空间坐标点精确还原,确保每个线条的精度,才不会导致任何一个放样点错位就会影响到其它相关平面的精度。整个项目的材料低调朴素,为的是凸显空间中的光源对空间形体的塑造,为这些来自远古的化石提供了合适的展览环境。
项目模型及图纸

△ 新旧结合以及晶体墙的构成



△ 模型

△ 总平面图

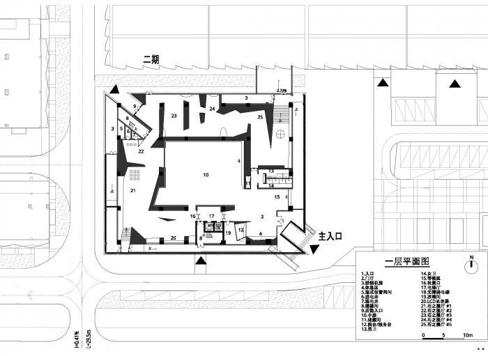
△ 一层平面图

△ 二层平面图

△ 剖面图

△ 细部节点图
项目信息
项目类别: 博物馆
建筑设计:Atelier Alter Architects 时境建筑
主设计师:张继元、卜骁骏
设计团队:李振伟,张家赫, 郑来荣, 黄博, 马磊磊
机电设计:成工
室内设计:时境建筑
造价:¥4,000,000
面积:2600㎡
建成时间:01/05/2020
摄影:Atelier Alter Architects时境建筑
图片版权: Atelier Alter Architects时境建筑
客户:英良集团
地址:福建省南安市水头镇英良印象五号石文化创意园
电话:0086-595-86812213
邮箱:[email protected]
网站:http://www.yingliang.com

BIM建筑网




评论前必须登录!
注册