

圣东尼创想空间是由白鹭设计为纺织业领军人才们打造的一个研究中心和现代化的办公空间,也是设计师们各种奇思妙想的孵化器,他们在这里可以为那些定制类项目做初期试验,或与客户会面一起探讨各种想法被实现的可能性。
设计师递交了一份多彩活泼又明亮干净的设计方案,但保留现场原有的工业设计风格,譬如高挑的天花和裸露的管线,对项目各方来说都意义重大。最终敲定的设计方案体现了当代极简主义的关注点,着重凸显了多彩色块与原本混凝土表面的天花墙柱之间的强烈对比。


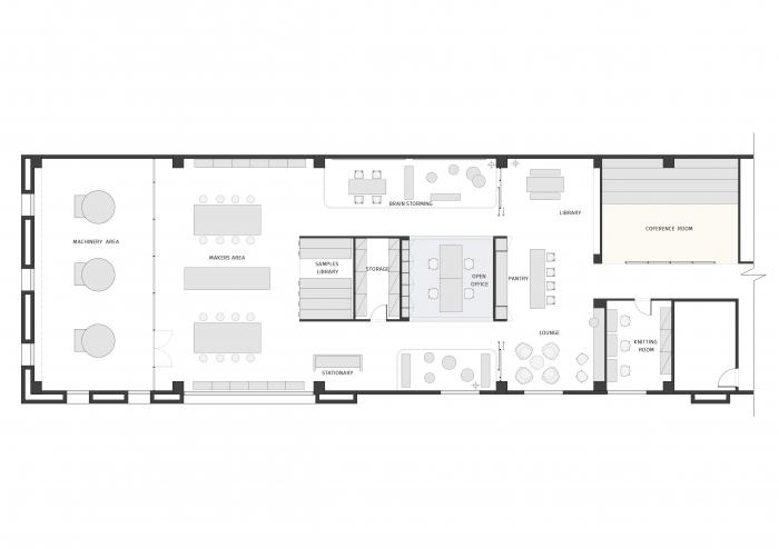
整个空间的平面基本被划分为三个区域。一面是半开放的公共功能区,例如茶水间、阅读室和会议厅,中央则主要是办公区、储藏室、材质库和非正式的谈话空间;其余的区域则是创想实验室和机器工作区,至此,整个空间一气呵成,五脏俱全。

△ 空间轴测图
白鹭设计充分利用了这一空间的原有结构去创造多种多样的智能又灵活的工作环境。客户需要的是一个万能的平面布局,在这样的布局里可以轻而易举的将公共空间转换成私密性较高的或者半开放的空间。因此,设计师提供了各种各样的共享办公区域,从正式的办公室到适宜于头脑风暴等工作需要的半休闲空间。



在这里,设计师采用了定制的金属网格板将半开放的公共功能区,如茶水间和休息区,与创作空间分隔开,显得利落又和谐。
设计师意图在一个小小的砖红色空间内将茶水间、储藏室和材质库等功能区布置得井井有条,以便为研发活动腾挪出更多空间。






设计图纸

△平面图

△剖面图
项目信息
项目名称:圣东尼创想空间
设计公司:白鹭设计
公司网站:www.byludesign.com
联系邮箱:[email protected]
公司地址:中国上海市静安区万恒都路888号16A室,邮编:200042
完工年份:2019
总建筑面积:400平方米
项目地点:中国,上海
设计主创:LUIGI ARCADU┃STEFANO BAI
设计主创邮箱:[email protected]┃[email protected]
设计团队:LUIGI ARCADU┃STEFANO BAI┃SARA CIRIBIFERA┃MICHELLE ZHANG┃CHENEY CAO
业主:圣东尼
图片版权:Marcos Romano

BIM建筑网





评论前必须登录!
注册