原有房屋是一个系列化的、外表低调的、类型上不同于周围的建筑,它被组织在同一水平面上,拱门和一个前花园构成了建筑的入口。这是1930年代城市化产物的一部分,当时专为工人建造的军事构筑物就在场地不远处。

我们之前在项目中将拱门视为联系房屋与传统的建筑元素,因此反复使用。在新设计中,我们的目的也是强化这一姿态:让拱形得到更多的运用,并将其放大为处理建筑问题的统一元素。



△ 加建前结构图

△ 分析图


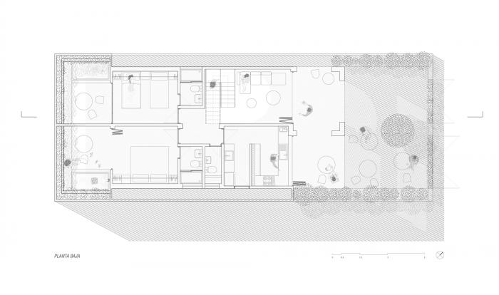
功能包括一个带有五间出租房间、酒吧和露台的招待所,这决定了首先要重新布置现有房间的功能,并把建筑向上扩建两层。不同空间的划分和设计皆为更好适应已有建筑的结构,同时也是为了将空间变得更加内向,以此提供更好的私密性和环境舒适度。




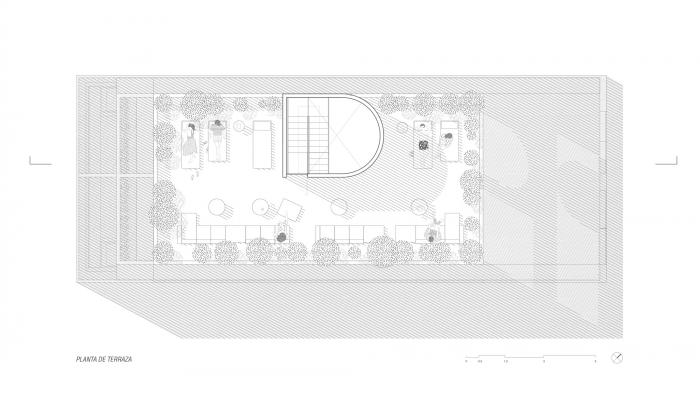
室内三层通高的空间,顶上是一个垂直摆放的拱形天窗,此处既能采光、散热,又能作为交通中枢,将首层客厅和花园的公共空间与二层的露台联系起来。







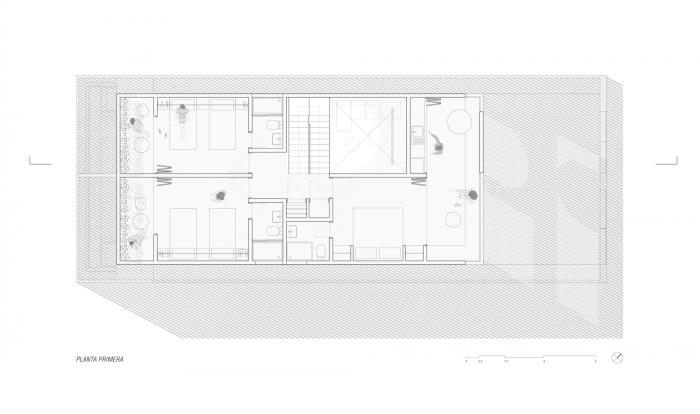
建筑的背面设置了四间出租房,它们都位于首层同一标高的位置,因此通过一个倒置的楼梯,他们就能向室内小庭院开放。第五间房用于长租,位于二层的前排。对于这间房来说,基本的设计原则围绕房间与室外的关系,空间边界被一个带顶的阳台界定,阳台上有个小厨房和起居空间,只用一扇折叠门跟卧室隔开。立面的板块为空间提供了很好的私密性,遮挡了部分阳光,也让雨水不那么容易进入厨房区。











饰面上,建筑几乎统一使用了白色和玻璃材质,以木工和栏杆点缀,还有人行道上的灰色大理石瓷砖。整个建筑通过引入自然光,加强了空间的开放性。

设计图纸

△ 场地平面图

△ 一层平面图

△ 二层平面图

△ 露台平面图

△ 屋顶平面图

△ 剖面图
项目信息
项目类型:青年旅舍,加建项目
项目地点:哈瓦那,古巴
建筑师:Albor Arquitectos
面积:205m²
项目年份:2020
摄影师:Laurian Ghinitoiu
厂家:AutoDesk,CARBONE S.A.,Cemento PORTLAND P-250 y P-350,Enscape 3D,Mapegrout Rápido,Mortero Cola CERMIK PLUS,Mármoles Centro,Pacivante cementicio WIN PAN,Pinturas SPECTRUM
主创建筑师:Albor Arquitectos
设计团队:Carlos Manuel González Baute, Alain Rodríguez Sosa, Camilo José Cabrera Pérez, Merlyn González García Clientes
工程师:Rafael Montaña Alonso

BIM建筑网





评论前必须登录!
注册