项目背景
京津冀协同发展战略上升为中国国家战略后,北京非首都功能向外疏解,服装批发及服装加工业首当其冲。沧州东塑集团利用沧州地域优势投资兴建了明珠商贸城和明珠国际服饰产业特色小镇项目。全产业链承接了北京服装产业疏解,并在承接基础上进行服装产业转型、升级,试图打造一个集设计研发、生产加工、批发零售、仓储物流、电子商务、娱乐休闲为一体的全新商业运营模式。
本案位于沧东经济开发区明珠国际服饰产业特色小镇内,项目已全面启动,承接了北京服装业的研发、设计、加工、销售全产业链,同时自己也建立了服装研究院、服装设计院。在承接北京服装产业转移上,沧东开发区优势明显,这里有大片未利用与开发的盐碱地,交通也很便利。整个小镇以时尚产业为主导,以服装智造产业为主要切入点及定位特色。希望形成集产业聚集与服务、产业园区开发、服装设计研发、面辅料一站式采购、金融服务、物流服务、营销服务、品牌塑造、会展服务等于一体的专业服装产业集群。

△ 项目区位©y.ad studio

△ 项目区位©y.ad studio

△ 项目原貌©y.ad studio
适当设计原则
初次勘查场地业主方带我们勘查现场,并顺便考察了已经完工的工程。表达了希望不要像过往房地产工程那样的方式依靠大量装饰手法及贵重材料堆砌的方式去营造空间及场景的意愿。也不希望将建筑当成“网红打卡点”或“地标”的方式去制造那种刻意的形式感及空间感去达到吸引眼球及关注的目的。希望以实际使用机能及现实状况为出发点去建造,回归使用机能。同时不要过于追求材质的极致及工艺的极致,顺势而为。寄托于设计、美感、空间氛围来创造空间。并希望以此建筑为“原点”为整个园区创造一处开放、友善、自然、具有吸引力的综合型公共交流、休闲、展示空间,向整个产业园区进行扩散及延伸。这些想法与工作室一直以来坚持及践行的“节俭忧患、克制、融合、追求真实、日常、自然美感的准则及以实际情况为出发点进行适度设计”的理念及设计习惯不谋而合。
开放空间/立体社区
地块西南角已有一栋建筑物作为研发及办公空间在使用。所以原本方形的地块缺了一角呈L型状。我们在整体规划时,不仅要考虑这栋具有鲜明形式感的建筑物与新建建筑之间的关系,同时还需考虑两个建筑之间的动线与关联。由于西南角建筑体量和高度都不小,从整体体量关系上我们将最高的建筑体设置在对应的东北角上,以此来平衡整个建筑群之间的形态。

△ 设计手稿©y.ad studio

△ 形体分析图 ©y.ad studio
在功能空间分布上我们将使用功能、生活社区与配套服务进行叠加,以开放的进入方式进行串联,试图创造出一个立体的复合型空间,将商业、展示、工作和居住、生活、休闲功能融为一体,达到共存并置的理想状态。

△ 功能轴侧分析图©y.ad studio

△ 轴侧图 ©y.ad studio

△ 景观轴侧图©y.ad studio

△ 南立面©Peter Dixie(英)/洛唐建筑摄影

△ 南立面©Peter Dixie(英)/洛唐建筑摄影

△ 东立面©Peter Dixie(英)/洛唐建筑摄影

△ 东立面©Peter Dixie(英)/洛唐建筑摄影

△ 北立面©Peter Dixie(英)/洛唐建筑摄影

△ 北立面多功能活动区©Peter Dixie(英)/洛唐建筑摄影

△ 北入口廊道©Peter Dixie(英)/洛唐建筑摄影

△ 北立面沿街商铺©Peter Dixie(英)/洛唐建筑摄影

△ 南立面设计师工作室、面辅料图书馆©Peter Dixie(英)/洛唐建筑摄影

△ 东立面设计师工作室、面辅料图书馆©Peter Dixie(英)/洛唐建筑摄影

△ 西入口廊道空间©Peter Dixie(英)/洛唐建筑摄影

△ 西入口连续散步道©Peter Dixie(英)/洛唐建筑摄影

△ 从景观水池中看向酒店/公寓楼©Peter Dixie(英)/洛唐建筑摄影

△ 公寓局部©Peter Dixie(英)/洛唐建筑摄影
内向院落/虚实转换
为了避免将整个建筑做的体量过于庞大,我们试图通过体块的错位穿插与高低错落的组合方式来构筑空间的构成元素,同时在体块与体块之间形成大量庭院与呼吸空间。通过虚与实的转换作为空间叙事脉络,用灰空间将不同的功能建筑主体与庭院空间形成自然过渡。

△ 连续步道向内庭院视角 ©洛唐建筑摄影

△ 连续步道向内庭院视角 ©Peter Dixie(英)/洛唐建筑摄影

△ 从景观水池望向连续步道 ©Peter Dixie(英)/洛唐建筑摄影

△ 连续步道望向多功能活动空间 ©Peter Dixie(英)/洛唐建筑摄影

△ 多功能活动空间外立面 ©Peter Dixie(英)/洛唐建筑摄影

△ 植物生长树洞 ©Peter Dixie(英)/洛唐建筑摄影

△ 植物生长庭院 ©Peter Dixie(英)/洛唐建筑摄影

△ 景观水池望向面料图书馆/设计师工作室 ©Peter Dixie(英)/洛唐建筑摄影

△ 傍晚时分下的面料图书馆/设计师工作室 ©Peter Dixie(英)/洛唐建筑摄影

△ 从内庭院看智能工坊©Peter Dixie(英)/洛唐建筑摄影

△ 廊道中的呼吸空间 ©Peter Dixie(英)/洛唐建筑摄影

△ 廊道空间 ©Peter Dixie(英)/洛唐建筑摄影
结构感与光影
真实是整个设计中想要贯彻的一个重要理念。不过度装饰追求材质与空间真实呈现,从前期功能配置到实际建造尽可能的清晰,避免拆改与反复造成浪费。从选择清水混凝土这种低调与朴素的材料来建筑开始,也是想避免做过多的装饰面从而可以达成一次成型。由于建筑室内外整体设计,在各个专业上都尽可能做到融合,各专业、结构与建筑都统一集成。用近乎裸露的方式将结构美感与实际力学融合,同时通过制造光影来塑造空间。

△ 设计手稿 ©y.ad studio

△ 设计手稿 ©y.ad studio

△ 光影下的廊道空间 ©Peter Dixie(英)/洛唐建筑摄影

△ 光影下的廊道空间 ©Peter Dixie(英)/洛唐建筑摄影

△ 光影下的廊道空间 ©Peter Dixie(英)/洛唐建筑摄影

△ 光影下的廊道空间 ©Peter Dixie(英)/洛唐建筑摄影

△ 光影下的廊道空间 ©Peter Dixie(英)/洛唐建筑摄影

△ 光影下的廊道灰空间 ©Peter Dixie(英)/洛唐建筑摄影

△ 设计师工作室中庭空间 ©Peter Dixie(英)/洛唐建筑摄影

△ 多功能活动空间 ©Peter Dixie(英)/洛唐建筑摄影

△ 多功能活动空间钢结构屋顶 ©Peter Dixie(英)/洛唐建筑摄影

△ 多功能活动空间阶梯 ©Peter Dixie(英)/洛唐建筑摄影

△ 内向透光的玻璃盒体©Peter Dixie(英)/洛唐建筑摄影

△ 中央树阵与廊道©Peter Dixie(英)/洛唐建筑摄影

△ 连续步道上看多功能活动空间©Peter Dixie(英)/洛唐建筑摄影

△ 连续步道上看多功能活动空间©Peter Dixie(英)/洛唐建筑摄影

△ 设计手稿 ©y.ad studio

△ 设计剖面图 ©y.ad studio

△ 设计剖面图 ©y.ad studio

△ 设计剖面图 ©y.ad studio

△ 酒店空间中庭及楼梯©y.ad studio

△ 楼梯©y.ad studio
技术图纸

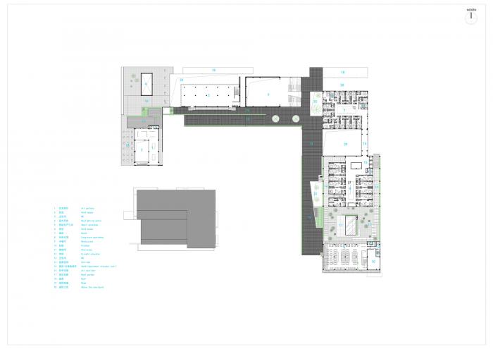
△ 1F设计平面图

△ 2F设计平面图

△ 3F设计平面图


△ 剖立面图




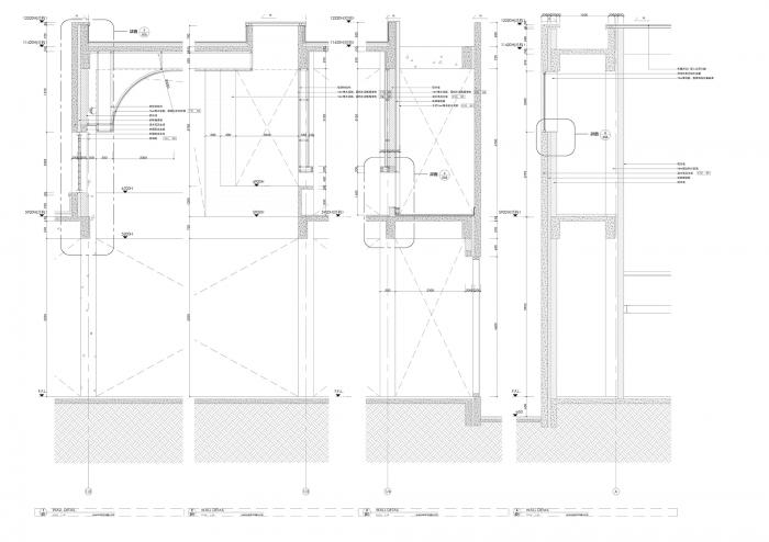
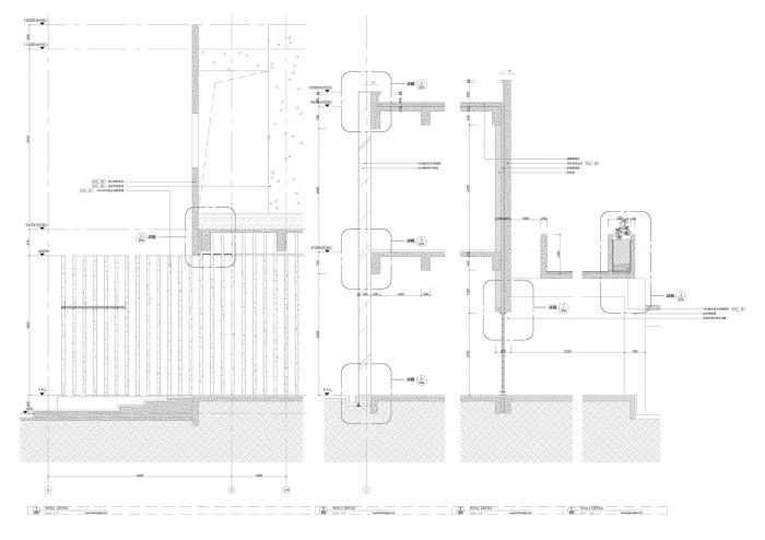
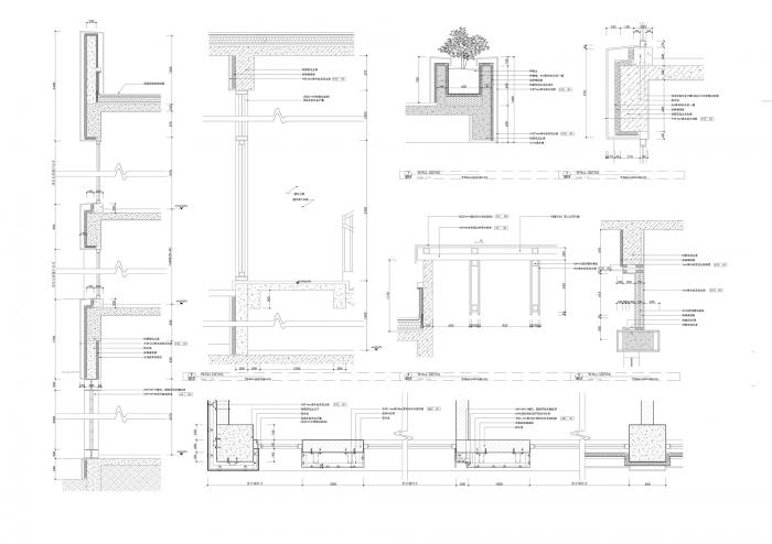
△ 节点详图
项目信息
项目名称:沧州明珠国际服饰生态新城会客中心
项目地址:中国河北省沧州市沧东开发区黄河道与齐云路交叉口
建设单位:河北明珠服饰文化有限公司
项目面积:26666.8平方米
建筑设计:y.ad studioI上海严旸建筑设计工作室(www.sh-yad.com)
室内设计:y.ad studioI上海严旸建筑设计工作室
景观设计:y.ad studioI上海严旸建筑设计工作室
灯光设计:y.ad studioI上海严旸建筑设计工作室
项目团队:严旸、贺茂峰、严昱
施工图设计:河北晶程建筑设计有限公司
钢结构设计:霍振忠
主要材质:清水混凝土、黑洞石、木丝水泥板、竹钢板、水磨石砖
设计时间:2018.12-2019.06
建造时间:2019.05-2020.05
摄影:Peter Dixie(英)/洛唐建筑摄影

BIM建筑网





评论前必须登录!
注册