d-u渡咖文集坐落于有着“江南水弄堂,运河绝版地”之称的清名桥古运河景区内,与挚舍·南禅观水酒店相邻。在满足保持整体风格一致的需求下,又要体现其作为独立美学空间的多样性。

△ 咖啡厅概览©形在建筑空间摄影 贺川
老街南下塘仍旧保留着当初枕河人家、小桥流水的古镇风貌。在江南老街与咖啡文化的对话关系中,如何寻找到平衡,是本哲在设计中的难点也是重点。

△ 咖啡厅入口©形在建筑空间摄影 贺川
更新后的入口处,细木格栅窗替代了原有的密闭花格窗,更加轻简有温度;外凸原木落地玻璃窗的运用让室内外空间更加敞亮通透。咖啡厅侧面开辟出进入室内的通道,褐色砂石中青石板路曲折迂回,营造出温婉江南的意境。




△ 艺术展示区©形在建筑空间摄影 贺川
推开主入口实木大门,是一个艺术展示区,兼具接待、艺术沙龙、展厅的功能。作为展厅时,空间内部的接待台和休闲长椅可瞬间变为吧台和展台。艺术空间和咖啡区由落地大玻璃窗隔开,两个空间纵深相互延展。





△ 用餐区©形在建筑空间摄影 贺川
用餐区中央整体被抬高,形成颇具日式风格的榻榻米区,带有多格书架的实木吧台、水吧及下沉式休闲区域,让室内空间错落有致,形成一个有趣的视觉体系。邻窗水流声不绝于耳,树影婆娑,内院景色一览无余。

△ 半开放式的水吧便于咖啡师与客人对话交流©形在建筑空间摄影 贺川




△ 榻榻米区©形在建筑空间摄影 贺川
半开放式的水吧便于咖啡师与客人对话交流,咖啡的研磨、萃取等全过程一目了然。重构顶部空间,让线条交错中又有着独特的几何秩序的美。

△ 新浇混凝土通道©形在建筑空间摄影 贺川



△ 庭院©形在建筑空间摄影 贺川
艺术空间和咖啡区的交接处,有一个狭长的新浇混凝土通道,内外切换给人强烈的“穿越”感。下沉式的江南庭院风雅别致,置身其中,偷得浮生半日闲。






△ 细部©形在建筑空间摄影 贺川


△ 建筑外观©形在建筑空间摄影 贺川
江南老街,古运河之滨,咖啡飘香。渡咖文集,演绎一段中西交响曲。

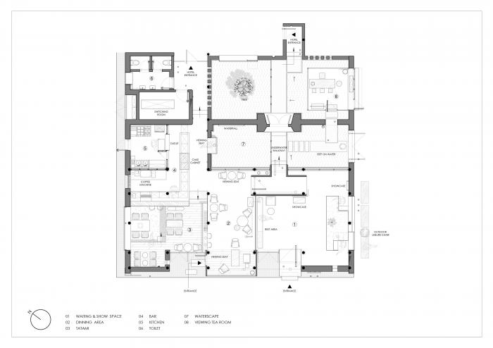
△ 平面布置图©本哲建筑

△ 正面立面图©本哲建筑



△ 侧面立面图©本哲建筑
项目信息
项目名称:d-u 渡咖文集
项目地点:中国无锡市南下塘街135号
设计单位:上海本哲建筑设计有限公司
公司网站:www.benzhedesign.com
建筑面积:148m²
主案建筑师:蒋华健
设计时间:2019年6月
施工时间:2019年8月
竣工时间:2019年12月
导向设计:本哲建筑设计
摄影:形在空间摄影 | 贺川

BIM建筑网





评论前必须登录!
注册