在当代中国的城市中,一个可以让父母放心给孩子玩耍的公共空间已经变为稀缺资源。乐享小鹿作为一家立足于社区的幼托机构,希望在社区中创造一个给不同年龄的儿童一起玩耍的空间,让孩子们在这里得到专业的照护,从而给予父母必要的个人时间。
项目场地是一个8m宽的长方形室内空间,仅北侧有自然采光。当没有了阳光、树木、草地、水池,怎样才能让孩子在一个局限的室内空间里体验到自由游戏的乐趣?

▲ 场地原状
合作舍将孩子的活动空间设计成了一条公共街道,连接被放置在场地尽端的功能房间和大空间。一些体量和形状各异的小木屋沿着街道布置,形成连续的边界,环绕整个空间,类似一个小小的村落。为了实现保护和连接的平衡,木屋被设计成半开放的,由墙体围合出角落,门洞和墙上的小窗让孩子的身体和视线可以在木屋之间自由的穿行。

▲ 轴测图

▲ 入口

▲ 接待区域

▲ 接待台

▲ 游乐区

▲ 街道

▲ 街道

▲ 街道回看
木屋内部空间的高度从1.5m到1.9m之间变化,这是对成人不舒适的高度,但对于孩子来说正合适,它暗示孩子作为空间主体的地位。

▲ 阳台

▲ 阳台

▲ 神奇的角落

▲ 桥

▲ 卧室外的公共空间
红、橙、黄三种温暖的颜色被有选择的涂在了木屋内部,色彩会带给孩子独特的空间记忆,从木屋内部制造归属感。

▲ 木屋中的色彩

▲ 卧室

▲ 卧室

▲ 餐厅

▲ 艺术小屋
设计师有意识的避免对孩子的过度保护,孩子需要透过“适度的危险”来建立对风险的感知力。木屋内的地板高度被刻意区分,这意味着孩子在进入不同的木屋时需要留心每个木屋的高度变化才能避免跌倒。同时,为了平衡安全和冒险,整个空间内的尖锐转角全部采用了1-2cm宽的圆角打磨。

▲ 律动小屋

▲ 卫生间入口
乐享小鹿的空间试图实现一种非正式的组织关系,回应孩子的社会性。它将置身其中的人暴露在一种适度的混乱中,每一个空间都没有所谓正确的使用方法,从而,老师和孩子们需要找到他们自己的方式,不断地建立新的秩序。

▲ 教室门关闭状态

▲ 教室门开启状态

▲ 综合教室
项目图纸

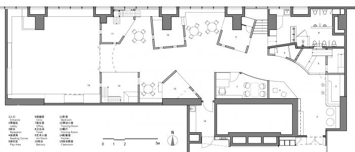
▲ 平面图

▲ 立面图

▲ 施工图
项目信息
项目名称:乐享小鹿幼托空间
建筑事务所:合作舍建筑事务所
公司网站:www.credohus.com
联络邮箱:[email protected]
公司所在地:中国广州
完成年份:2019.11
建筑面积:280㎡
项目地址:广州市天河区天河北路
主创建筑师:王慈航、宋方舟、罗健聪
主创建筑师邮箱:[email protected],[email protected],[email protected]cn
设计团队: 刘清岳, 黄栋华
委托方:广东乐知德教育投资有限公司
施工方: 清远市尚上艺术装饰有限公司
摄影师: 李宏

BIM建筑网





评论前必须登录!
注册