
这是一座位于日本宫崎县都城市Kirishima山脚下的乡野间的幼儿园兼托儿所。曾经在此读书的那波孩子,即使在多年之后,也会常常带着他们自己的孩子回来。这已经成为了牢牢扎根于当地人思想深处的风俗习惯。从这一代代人的传承中获取灵感,项目设计的主题被设定为“纽带”。


原建筑在过去的30年间被更新扩建了几次,但仍然没有达到我们我们今天培育孩子所需的理想环境。因此,在拆除旧建筑之后,新建筑的设计进行了适当的规划,界定出不同功能如学习、玩耍、就餐和运动等所需的空间。





四棵老树被保留了下来,人们仰望着它们,照看着茁壮成长的下一代。在所有的托儿所房间里,都能看到这几棵树。通过将它们置于中央来进行建筑设计,建立起了房间、树木和孩子之间的视觉联系。二层的消防楼梯一路延伸至树木枝杈的下方,孩子们可以近距离地感受它们,同时在其下方创造出玩耍空间。场地上种植了许多产自宫崎县的红松和扁柏树,用以建立幼儿园场地与当地社区和自然的联系。根据功能来进行空间的适当分隔,孩子们可以自己鉴别、思考、学习和估摸在特定的空间里该具如何去行为表现。






室内













夜景


项目图纸

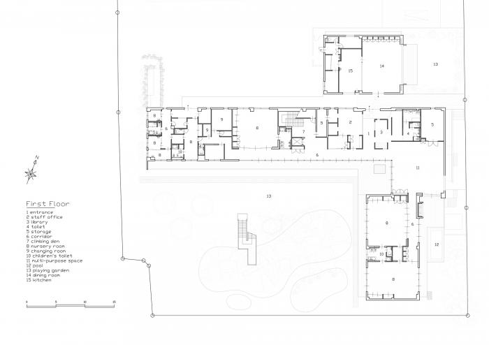
▲ 一层平面图

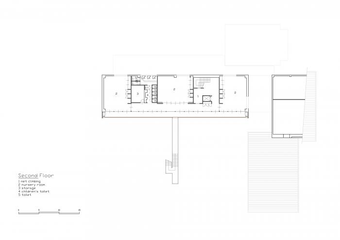
▲ 二层平面图

▲ 立面图

▲ 剖面图
项目信息
项目类型:幼儿园
项目地点:宫崎县都城市,日本
建筑事务所:HIBINOSEKKEI。Youji no Shiro
面积:1113.0m²
项目年份:2019
摄影师:Studio BAUHAUS
制造商:Archicad,AutoCAD,GANTAN BEAUTY INDUSTRY,Runon
责任建筑师:HIBINOSEKKEI + Youji no Shiro

BIM建筑网





评论前必须登录!
注册