
▲ 西院新建筑夜景

▲ 从基地远眺村落
偶寄精品酒店(MYMORY hotel)位于杭州临安太湖源天目山景区山麓处,场地内景致如画,眺望远处村落,勾勒出一幅“山麓炊香有人家”的淡墨山水。场地内有一栋建于上世纪70年代的老宅,很幸运其大部分夯土墙和木构架被相对完整地保留下来。我们将这栋老宅视为一代人的生活记忆和情感载体,并将其定义为酒店整体规划设计的核心。

▲ 场地图
是合设计工作室(RIGHT HUB)对该项目进行了整体规划,保留一栋老宅,一栋在原址上拆建的新建筑,整个场域由东、西、南、北四个院落构成。

▲ 立面图
对老宅的原始墙体及木结构进行了修复和结构加强,并用钢构结合陶粒混凝土重新浇筑了楼板。针对老宅的改造设计理念,用回收的老砖为原有的夯土墙穿了件“外衣”,将木结构合理地在室内空间裸露呈现,老宅的岁月痕迹和结构美完整地呈现在客人的视线中。

▲ 主入口(东院)

▲ 大堂入口

▲ 前台

▲ 前台背景墙细节

▲ 一楼茶室和二楼客房

▲ 通向二楼客房的楼梯间

▲ 从二楼走廊俯瞰前台

▲ 客房休闲区

▲ 天窗和睡眠区的视觉关系
我们将老宅原本单一的居住功能置换成酒店的复合功能,兼具了大堂、前台、休闲区、茶室、西厨、中厨、餐厅、客房等功能空间。老宅2层设置了2间客房,每间客房的屋顶都增设了较大幅面的天窗,分别位于客厅、卧室和卫生间的上方,有效改善老宅室内空间的照明质量。

▲ 漂浮在水面上的餐厅

▲ 餐厅面向绿色山林

▲ 水景(东院)
在老宅东侧用钢构结合玻璃幕墙的形式新建了一间坐落在水上的YING餐厅,庭院内栽种了日本早樱,春天樱花盛开时,客人可以享受到独一无二的用餐体验。

▲ 水面上的玻璃走廊

▲ 从老建筑进入新建筑的走廊

▲ 雕塑质感的楼梯

▲ 阅读区
通过玻璃走廊从老建筑进入新建筑,新老建筑之间有1.5米的高低差,在走廊两侧水面的映衬下彷佛客人是从水下浮出水面一般。新建筑一楼有两个休闲区,南面的休闲区透过玻璃幕墙将户外美景尽收眼底,西北面的休闲区设置了真火壁炉,入冬后在这里围炉取暖,喝杯咖啡,舒适惬意。

▲ 客房入口处

▲ 客房玻璃卫生间

▲ 从客房茶室看向阳台
新建筑2、3层共设置了5间客房,每间客房都配有独立观景阳台,客房内大幅落地窗满足白天自然采光的同时也将户外美景引入室内。客房的卫生间采用“水晶盒”的设计理念,通透明快的设计满足了客人“不同寻常”的体验,当然我们也在“水晶盒”外围设置了暗轨纱帘,保证了客人使用卫生间的私密性。

▲ 新建筑外观
新建筑外观采用水泥肌理的块面化设计语汇来表达,未来还会将实木百叶“表皮”安装完成,从木百叶过滤进来的光线让室内空间随着光线的变化渲染出流动的光阴肌理。

▲ 西院

▲ 泳池俯瞰(西院)

▲ 下沉广场(西院)

▲ 下沉广场和泳池的关系
在西院设计了无边际泳池,与泳池相邻的是一个可同时容纳6-8人的下沉式广场,泳池和下沉广场之间间隔90公分的平台具有“吧台”的功能,客人游泳的同时还可以在“吧台”喝一杯与朋友互动聊天。
东、南、西三个院落朝南一侧用玻璃护栏进行围合,在视觉上模糊了场地边界,客人在庭院里可以毫无遮挡地眺望远处村落,一览无余。

▲ 通过窗洞和门洞看到室内外不同的景观
项目图纸

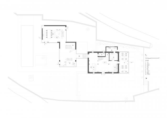
▲ 一层平面图

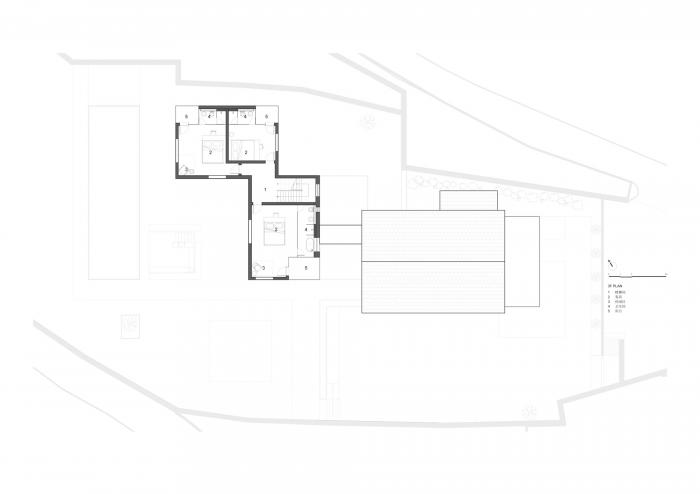
▲ 二层平面图

▲ 三层平面图

▲ 屋顶平面图

▲ A-A剖面图

▲ 老建筑结构细部
项目信息
项目类型:酒店,室内设计
项目地址:杭州,中国
建筑设计:是合设计工作室
面积:800.0m²
项目年份:2020
主创建筑师:龚剑,刘猛
设计团队:张杰(建筑设计),凌惠鸿(室内设计),吴凯伦(室内设计),宋永健(软装设计),徐贞(平面设计)
景观设计:是合设计工作室
结构设计:张海航 / 浙江广厦建筑设计研究有限公司
合作方:集致灯光

BIM建筑网





评论前必须登录!
注册