
巴尔德斯索诺(Bardessono)水疗酒店是一家拥有62间客房的精品酒店和水疗中心,酒店坐落于加洲扬特维尔纳帕谷核心区,坐拥4.9公顷土地。以可持续设计兼有奢侈感为设计出发点,巴尔德斯索诺水疗酒店是全美国仅有的在开业的同时取得LEED白金认证的的四家酒店之一。酒店值得称道的是拥有940块太阳能板,可以满足项目整体电能能耗一半的需求。


酒店随处可见回收利用的材料,比如外墙或者其他室内区域使用的回收木。虽然木材维护是项目需要操心的事情,但使用木材可以唤起对酒桶和周边酒庄的联想,将带来无比重要的价值,这正是选择回收木作为材料的原因。再利用的钢材被用于建筑外墙的锈蚀钢板,其颜色代表了葡萄酒、周边的葡萄园及其装运设施。



除了回收利用的材料,用于入内步道上的石材同样打动人。这些石材源自以前的巴尔德斯索诺家族酒窖,这些废弃的当地石材被切割成板材以现代的方式运用,来增强欢迎客人的到达体验感。为了鼓励客人享受当地温和的气候,底层的客房配置有私人花园,其中设置有户外沐浴设施。每个客房都配备有双扇玻璃窗,在控制眩光的前提下引入自然光线,在较冷的季节也能用于采暖。
其他可持续性设计元素包括夯土墙,百年橄榄树和抗旱景观设计,82个91.44米深的地热井来为客房加热制冷并提供热水,自动控制的软百叶帘确保一早有日光进入并在入夜关闭,客房内设置有动作感应电气控制,大小水量厕冲,整合于扬特维尔地区水系统的中水灌溉和污水处理系统。


为了让巴尔德斯索诺水疗酒店的大尺度匹配扬特维尔当地动人的小镇感觉,设计控制项目高度在二层以内来减小尺度。建筑的平屋顶设计意图最小化对周围山体景观的遮挡,与建筑紧密连接的内院都有着别致的设计。当客人漫步其中,他们会遇到各种景观布景和雕塑,促使他们将自然环境与这里的空间连接在一起。

项目图纸

▲ 总平面图

▲ 一层平面图

▲ 二层平面图

▲ 主要建筑立面图

▲ 主要建筑剖面图

▲ 客房立面图

▲ 客房剖面图

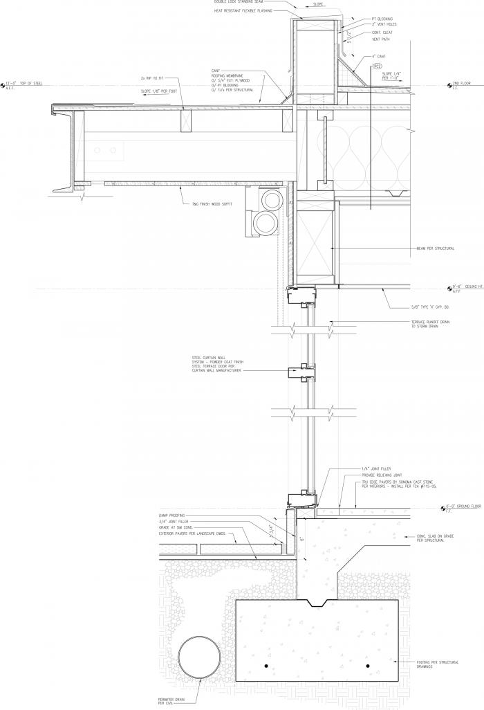
▲ 节点图
项目信息
项目类型:酒店,水疗设施
项目地址:扬特维尔,美国
建筑事务所:WATG
面积:5600.05600㎡
项目年份:2009
摄影师:Sam Dyess
厂家:Autodesk, Acor, Trimble
设计团队:Ron Mitchell, Cynthia Jacobs, Susan Frieson, Noe Pegarido, Rebecca Ellis, Jennifer Hawkins
Mep工程师:Ecotope
结构工程师:I.L. Gross
市政工程师:Bartelt Engineering
景观设计:George W. Girvin Associates Inc.
顾问:O’Brien & Company (Green Building consultant), Powell Padham Martin-Vegue (interior designer)
合作方:Cello Maudru (contractor)

BIM建筑网





评论前必须登录!
注册