
▲ 青少年宫

▲ 图书馆
宝安文化综合体是深圳市的一个全新公共文化园区。它俯瞰着深圳的前海湾和南海,拥有得天独厚的海滨景观,同时也毗邻密集的城市商业区。该项目占地达11万平方米,包括图书馆、文化艺术中心和表演艺术中心。图书馆、青少年宫和文化艺术中心是第一期工程的一部分,现已竣工。而表演艺术中心则正在建设中,将于2020年完工。

▲ 区位平面图
整个文化园区的规划将主体的三栋建筑配置在同一条轴线上,这条轴线从市中心一直延伸到海岸线。一系列的公共广场交织在建筑之间,将整个园区凝聚为一个整体。广场上的这些公共空间为市民们提供了亲水的环境,同时也连接了城市与海滨。

▲ 总平面图
建筑立面的设计灵感来源于中国南方的传统艺术:木雕和象牙雕刻。穿孔立面系统地应用保证了三栋建筑在视觉上的整体性。同时每个立面的细节处理又各不相同,使得三栋建筑又各具特色。

▲ 青少年宫立面

▲ 青少年宫立面

▲ 图书馆立面
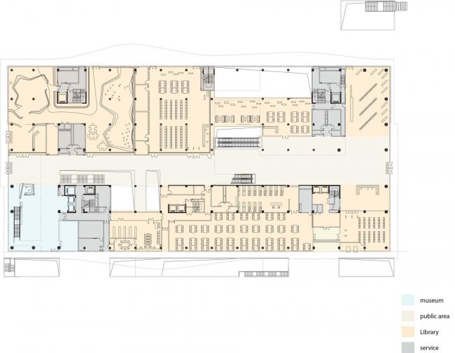
离广场水体最近的是图书馆,这是一栋面积达31853平方米的建筑,里面有阅读区、书库、管理设施、博物馆和展览厅。一个20米高的竖向中庭将公共广场景观延伸至建筑内部,并在建筑中心提供了一个公共聚集的场所。

▲ 图书馆日景

▲ 图书馆日景




▲ 图书馆内部
图书馆的一侧是占地达11316平方米的青年少宫和文化艺术中心。该建筑被设计成两个独立的结构,两个分隔的体量围绕着中心的室外庭院和圆形剧场。青少年宫中设有各类的科技展厅和儿童艺术展厅;文化艺术中心则设有表演空间,艺术工作室和画廊。中央庭院和圆形剧场连接着两个侧翼,并为它们引入自然采光和通风,并作为社交的核心空间。

▲ 青少年宫立面

▲ 青少年宫鸟瞰

▲ 青少年宫立面

▲ 青少年宫立面

▲ 青少年宫立面


▲ 青少年宫内部

▲ 青少年宫中庭
目前正在建设中的表演艺术中心面积达20660平方米,位于园区的南侧边界,紧邻海湾。建筑的底层设有零售商店和餐馆,可以吸引大量人流,并将建筑与城市连接起来。一个巨大的楼梯延伸至二层,这里是一个1500座的表演厅。该中心还包括一个较小的600个座位的场馆,以及一个垂直倾斜15度的结构,为公众提供了通向大型排练厅的公共通道,同时可以俯瞰海湾和更远的视野。

▲ 表演艺术中心鸟瞰效果图

▲ 表演艺术中心主入口效果图

▲ 表演艺术中心南立面效果图


▲ 表演艺术中心内部效果图

▲ 表演艺术中心表演厅效果图

▲ 表演艺术中心多功能厅效果图
宝安区是深圳正在大力发展的海滨城市副中心。宝安文化综合体的建筑体现了新的愿景和活力。拥有丰富功能的建筑和开放包容的公共广场构成了一个整体,这里将为深圳提供新的文化内核,并激活整个片区。

▲ 图书馆夜景

▲ 图书馆夜景

▲ 图书馆立面夜景

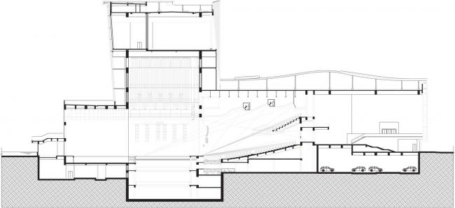
▲ 图书馆剖面
项目图纸

▲ 文化中心草图

▲ 青少年宫底层平面图

▲ 青少年宫一层平面图

▲ 青少年宫剖面图

▲ 图书馆底层平面图

▲ 图书馆一层平面图

▲ 图书馆剖面图

▲ 表演艺术中心底层平面图

▲ 表演艺术中心一层平面图

▲ 表演艺术中心剖面图
项目信息
项目类型:文化中心
建筑师:严迅奇建筑师事务所
面积:110000.0m2
项目年份:2020
设计团队:Rocco Yim , Derrick Tsang, William Tam, Herbert Hung ,Martin Fung, Lucia Cheung, Stephen Chan, Simon Ho, Calvin Chung, Ivy Yung, Zachary Wong , Zhu Yi, Seah lee, Jans Liang, Leo Zhou, Chen Lan, Amber Wang, Yang Shi Pei

BIM建筑网





评论前必须登录!
注册