本项目位于黄石市城市中心,基地东北边有风景优美的磁湖。场地原为团城山保税仓库,北面为黄石市档案馆,南面为居住用地。

▲ 整体鸟瞰
尊重场地脉络的总体布局
本项目充分尊重场地脉络,善用磁湖良好的景观资源,延续了磁湖和团城山的轴线关系,将主体建筑沿此轴面向磁湖展开布置。

▲ 分析图

▲ 整体鸟瞰
环境友好包容的景观设计
项目梳理了周边建筑的外部空间关系,最大化地保留了用地内的植被和树木,串联了磁湖景观视觉轴线。在屋顶面向磁湖和团城山的轴线开口设置屋顶花园,获得了最佳的观湖观景平台,创造了多层次的绿化景观,体现了环境友好包容的景观设计策略。

▲ 整体鸟瞰

▲ 群艺馆北侧人视

▲ 群艺馆东南角人视
新旧建筑共生的改造更新
项目以旧建筑改造更新为核心,将原有的街心公园作为群艺馆的主入口广场,实现了新旧环境的和谐对话,利用基地内现有保税仓库的大跨度现浇井字楼盖框架结构,不仅大大节省投资,提升装修档次,同时保护改造更新的设计手法也传达出对于工业遗产历史建筑包容友好的建筑设计策略,实现了新老建筑的共生。

▲ 群艺馆主入口一点人视

▲ 群艺馆主入口人视

▲ 群艺馆北侧临街人视

▲ 群艺馆西侧一点人视
模数控制构成的纯粹空间
项目采用模数控制创造出“纯粹空间”,以保留建筑改造成的方形剧场为几何中心,外围以圆形坡道环绕,中间布置采光水庭,形成外圆内方的空间格局,具有强烈的形式逻辑性。在立面材料上,通过清水红砖墙体现材料原始、内敛、稳重、古典之美,和谐的比例、尺度等细节赋予了建筑如雕塑般的体量感和空间感。

▲ 群艺馆南侧人视

▲ 群艺馆窗墙细节
人与自然对话的室内体验
项目贯彻“以人为本”的设计理念,多样化的建筑空间带给了市民丰富的戏剧性的空间感受,如水之庭院、展示环廊、方形的展览空间,既符合艺术展览的功能特性,又营造了幽雅、安静的氛围,带给了观众人与自然对话的室内体验。

▲ 环廊坡道人视

▲ 水之庭院人视

▲ 水之庭院人视
‘
▲ 天井

▲ 天井人视

▲ 剧场一点人视
节能低碳绿色的生态策略
项目通过节能低碳绿色的生态策略,将自然的“光、影、风、水”引入建筑内部,清澈平静的浅水带来了静谧的感觉,光在建筑构件上的投影形成了强烈的光影效果。建筑中还布置了多处中庭、天井,利用对流热压差形成拔风效应,产生了微气候循环风,保证了舒适的室内环境。

▲ 展览中庭人视

▲ 展览中庭人视
项目图纸

▲ 总平面图

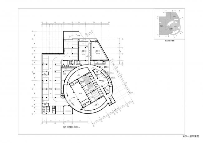
▲ 地下一层平面图

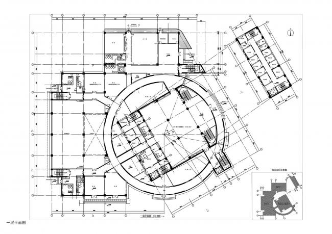
▲ 一层平面图

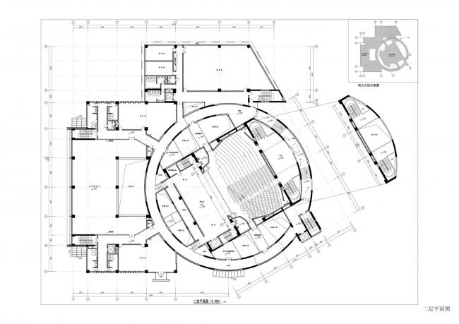
▲ 二层平面图

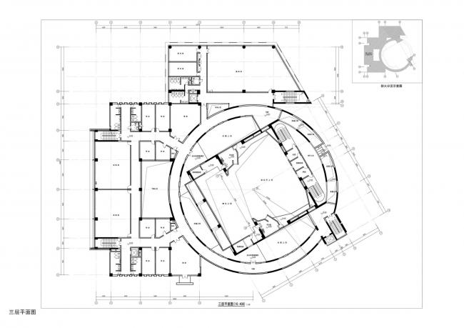
▲ 三层平面图

▲ 四层平面图

▲ 五层平面图

▲ 屋顶平面图

▲ 立面图

▲ 立面图

▲ 剖面图

▲ 剖面图
项目信息
项目类型:视觉艺术中心
建筑师:中南建筑设计院股份有限公司第二建筑工作室
面积:17709.0m2
项目年份:2015
摄影师:章勇、丁烁
厂家:York
主创建筑师:唐文胜
设计团队:唐文胜、王新、黄莉、张颖、王圣林、李士将
结构设计:李霆、王颢
景观设计:唐文胜、呂奎东
给排水设计:骆芳
暖通设计:张银安、王俊杰
施工方:湖北江天建设集团有限公司
概算:罗淑兵
电气/弱电设计:熊江
委托方:黄石市城市建设投资开发公司

BIM建筑网





评论前必须登录!
注册