基地位于,西周镇中心主干道上。主干道正巧在此处有拐弯,形成一个三角地公园,附带一个小型的停车场,因此形成了一个小型活动中心。地块仅东侧有民居相邻,南北为村道,西侧为空地,和邻居围合成一个半院,院内有井,有很多村民在此洗漱。

一层北侧沿街甲方要求为干洗店店铺,并在东南配有工作间和卫生间。而将家部分的入口朝向了有井的院子,同时按照当地习惯做了室外的洗菜池。从街道上看,由于商业需要,北立面为一个比较规整的形态,包括柱廊,和带形玻璃窗。而转到西立面以及南立面由于邻里关系的生活化,都和边界做了一些退让,让花园阳台檐下灰空间等处在这些界面上,和邻居的房子产生柔软的互动,也让立面更加碎片化和有机。



由于村子里串门频繁,一楼的餐厅厨房,兼有了小的会客功能。沿着楼梯向上尽量将客厅、茶室、花园等公共空间连通起来,通过一些弱的变化,例如高差的变化、吊顶的变化、弱的遮挡等来暗示空间和功能的变化,而且这些变化在位置上是不重合的。借此形成一个大的“地形”,空间和功能都变得暧昧,人可以自由找到一个场所来进行活动。到三楼的卧室区域,又变得私密,形成安静的休息空间。








在材料处理上也是遵循了这样的暧昧规则,涂料墙、清水墙、不同花纹的大理石、可丽耐、亚光和抛光瓷砖、马赛克都是白色的,青石(BIM教程)板、金属板、铝材都是深灰色的,但是质感不同。胡桃木、樱桃木、柚木、蚁木、杉木、松木等颜色深度上相近,但色相上又有差别。偶尔闪现的不同形状的铜色物件,例如栏杆、灯具、把手。保证了一种似是而非的状态。




施工的师傅都是村里的本地师傅,尽量去用他们熟悉的技艺来保证施工的完成。但对此稍作改变,在一个地方运用几种建造方法,以此来产生丰富性。

设计图纸:

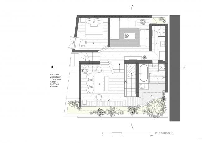
▲ 一层平面图

▲二层平面图

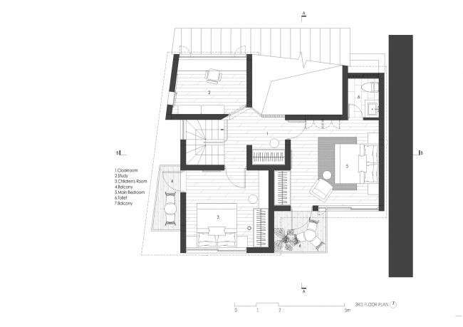
▲三层平面图

▲四层平面图

▲西立面图

▲剖面图A

▲剖面图B
项目信息:
建筑事务所:Studio MOR
地址:西瀛大街250号,西周镇,象山县,浙江省,中国
主创建筑师:李乐
委托方:李安军,周世香
建筑面积:258.0 平方米
项目年份:2017
摄影师:张岩,Yutian Zhang

BIM建筑网





评论前必须登录!
注册