
因为坡道在设计中常用于为行动不便的人提供通道,它们已经成为了无障碍的代名词。然而在很多情况下,它们也常(BIM培训)通过带入不同活动来在各种项目中起引导作用。本文挑选了10个不同的案例来展示不同环境下,坡道处理交通流线的方式。
● 如何设计和计算坡道?
● 依照 NBR 9050 设计无障碍坡道
K凉亭 汪洋 石景:三境合一的禅意建筑 KOHTEI / SANDWICH
(BIM教程)

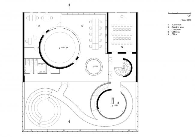
Mediathek 装置 / Laboratory of Architecture #3

西班牙拉拉古纳大学艺术系馆 / gpy arquitectos

帕恰卡马克遗址博物馆/ Llosa Cortegana Arquitectos

巴西Lagoa Santa 教堂 / João Diniz Arquitetura

空间即万象:Damas 45 / dmp arquitectura

埃斯托里尔住宅/ António Costa Lima Arquitectos

营地探险观景台 / EFFEKT

酒庄上的漂浮步道 / Keeo4design

Il Mercato / Landa + Martínez Arquitectos


微信公众号:xuebim
关注建筑行业BIM发展、研究建筑新技术,汇集建筑前沿信息!
← 微信扫一扫,关注我们+

BIM建筑网













评论前必须登录!
注册