
城市的发展是一个不断延续的历史过程,一个城市的空间及建筑都深刻的记录和承载了不同时期的历史和文化;苏州则是一个充满着“礼制”与“诗意”之人文精神而并存的城市。展示区在“意趣活泼、野致横生”的主题下,将实体空间与景观结合在一起,采用非对称的空间形式,塑造出传统的苏州园林式的空间形式。做到移步移景,秩序与雅致共存。







建筑师精心设计一条行进路线,通过连续、变化地展示建筑物的各个主体空间,使被控制下的展示空间创造令人激动的效果,亦创造了一种随观看角度的转移而趣味生动的流线。通过行成一个严格对称和秩序的院落空间,三进院中的每一个院落都通过建筑实体与景观围合具有仪式感的空间,移步移景的空间。




下沉庭院为满足会所的采光的功能需求,立面采用玻璃幕墙,通过玻璃肋形成传统园的柱列的秩序空间,中央的水池配以极简的枯山水等景观,意图营造出传统江南士大夫气质的空间质感。从下沉庭院的视角看去,形成多个层次,不同材质质感的空间体验,在统一的语言下,形成洗练的建筑氛围。





项目在艺术处理上重视虚实空间的组合与变化,采取含蓄隐晦的方法,追求意境之深邃和优雅。建筑山墙立面构图结合苏州传统民居山墙面较实的特点,大面积留白,与南立面精致细节形成强烈对比。灵动的人字顶采用金属包边,与白墙达到紧致的融合。精致且不繁复,极简却十分考究。

项目图纸

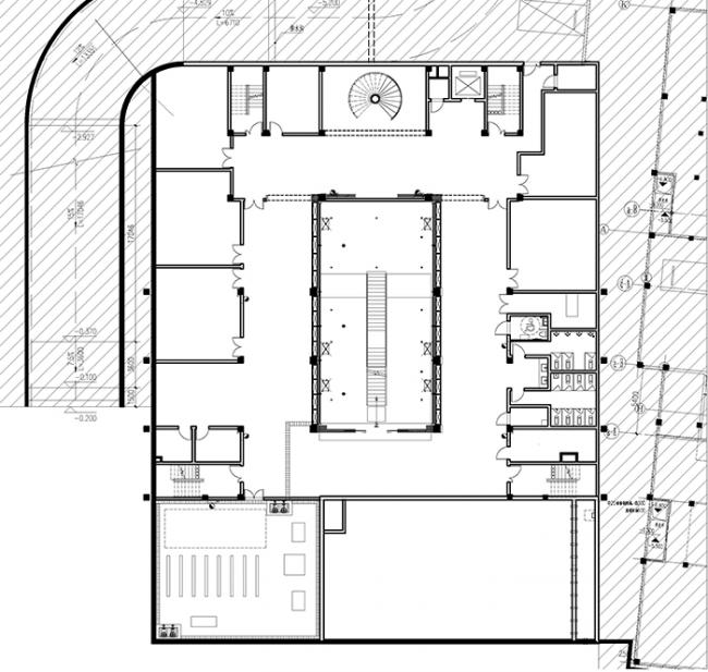
地下一层平面图

剖面图

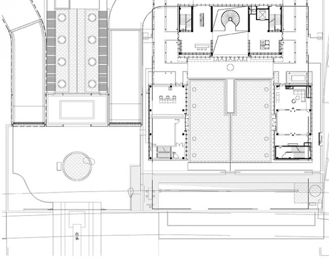
一层平面图

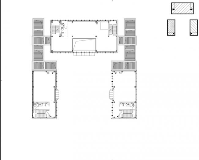
二层平面图

立面图

剖面图

分析图

GIF动图分析图
项目信息
项目名称丨世茂铜雀台·龙胤(BIM工作)
项目位置丨苏州工业园区石莲街
业主单位丨世茂集团
建筑设计丨上海日清建筑设计有限公司
景观设计丨朗道国际设计
施工图设计丨启迪设计集团股份有限公司
设计总负责丨宋照方
主创团队丨潘小波 罗曦 李俊超 李喜斌 陈世杰 吴曙光 陈静
建筑面(BIM学习)积丨2200㎡
设计时间丨18个月
竣工时间丨2018.06
建筑摄影丨是然摄影工作室

BIM建筑网





评论前必须登录!
注册