

在此之前如果想象一个能够漂浮在海面上的酒店是一种只会发生于幻想岛上的奇思妙想,而如今在智利的XI地区的艾森水域,此刻正在海面上方自由摇摆的真实建筑。这是蒙特港口海湾地区的一系列造船厂的房子,项目的独创设计由来自Sa(BIM工程师)bbagh Arquitectos建筑事务所负责,同样也涵盖了维持混凝土砌块漂浮的建造工程,这一建筑的建立使得最南端峡湾的面貌得以产生重大改变和创造。委托方则是以世界第五家鲑鱼公司闻名的Multiexport Foods公司,而他们的海上浮动酒店梦想得以真正在现实中达成。

虽然这看起来像一个简单的故事,但最初的建造情况并不令人鼓舞和乐观。这是因为我们的任务是设计符合公司环境标准的酒店建筑,并能够为在海上停留长达两周的使用者提供一定的舒适感需求。而这些混凝土块上的所有维度都只有14×9米大小的面积。如何成功满足项目(BIM教程)的需求和迎接这一挑战?技术创新,挑战尝试和因地制宜的设计策略成为了这个项目成功的关键。

平面图
在2005年Puerto Fonk决定建造渔业大楼后,Multiexport 食品公司的高管们迫切希望迎接新的挑战和建立新的机遇。由此他们决定再次聘请Juan Sabbagh建筑事务所办公室的建筑设计,这次在一定意义上也是为了重建Aysen峡湾的景观状况。“在建筑设计方面,委员会与渔业建设类似,因为它是关于将建筑景观与景观融为一体,从而改善工人的服务于工作环境而提出的设想,”Sabbagh Arquitectos合伙人Juan Pedro Sabbagh回忆道。
因此,建筑师着手设计酒店或更确切的说是员工们的宿舍和住宅,顾名思义,为远住在偏远地区的人们提供最佳的运营休憩条件。为了确保最佳条件,该项目的第一个想法是开发基于预制模块的集装箱,这些集装箱在陆地上提前组装。但是,环境领域的建筑禁令迫使我们将建筑搬到海边。是的,你没有看错,是海。面。上。


随着海洋区域的授予责令批准,我们终于开始了技术和建筑方面的挑战。“在该地区还有其他造船厂的渔场,但这些建筑在建筑和技术上都非常的不稳定,”Sabbagh说。该公司提出了他们的要求。“该设施应该能够方便在海上作业,以便对我们的生产进行最佳控制。而且必须按照公司严格的环境标准的要求,不仅可以移动,而且可以留有未来使用的空间区域”,来自Multiexport 食品公司的法人代表如是说到他们的具体需求。

面对这样的要求,建筑师利用了蒙特港蒙特卡纳造船厂开发的混凝土砌块,并在此基础上提出并完成了该地区的一次成功的建筑和工程革命。



但事情并非如此简单。建筑师开始施加建筑设计标准。因此,他们记得在第一家酒店建造过程中“做了很大的牺牲”,但努力得到了回报,因为在第一次体验之后,我们获得了一些有趣的教训。我们谈到了一个涉及在楼板上建造浮动混凝土酒店的项目。但这些支持酒店的楼板是由什么组成的?他们如何维持下去?我们接下来一步一步的去探究吧。

模型
用作建筑板的板材或混凝土船体是由14×9米的矩形钢筋混凝土表面组成,由相同材料的梁板支撑而成的。水下结构由特殊材料H30组成,具有比其他类型混凝土更高的强度和更低的孔隙率,可防止盐水进入钢筋,避免腐蚀。

为避免损坏建筑物,我们着重增加了预防措施的相关设计。比如“在钢筋之前放置了至少10厘米混凝土的重要涂层隔离。另外,在与表面接触的区域进行了特殊处理,因为氧气的存在使得这些材料变得更容易受到腐蚀和损耗,”首席设计师Eduardo Valenzuela这样解释道。同时这些板材有一个用于维护的舱口。

但是这次最冒险的尝试部分是建造平板,因为造船厂将它们组装在海湾中,等待涨潮以促进结构系统的运动,这些结构在海上最终完成建造。这个任务已经完善了许多,因为项目的第五个元素,目前正在开发的1000平方米的农业中心,将具有独特的结构开放设计,而不是使用旧有的再生循环结构体系。

浮动的房屋和建筑,这将使建筑师和建筑商更好地控制空间。实际上,预计会为已经建成房间的两个楼层另外增加一层楼的空间。你可能会想知道板块之前是如何漂浮的,特别是因为它们能够支持面积达400平方米的酒店建筑体量。“这是一个将重量集中在建筑的下部,在这种情况下的浮动区域系统,并在顶部变得更轻”的系统,“Valenzuela解释说。


实际上,当混凝土集中在下部区域时,上部结构是镀锌金属,具有75x75cm的薄外形,可以减轻朝向海床的负荷。出于同样的原因,避免了地板之间的楼板,这将迫使结构进一步加强,使得项目成本更加昂贵。镀锌金属材料同时也带来了一定的机遇条件。“网格是用镀锌池制成的,这意味着关联接头处必须用螺栓固定,因为焊接会损坏镀锌材料的耐久性。”Valenzuela设计师解释道。








在结构计算方面,建筑的长度必须考虑来自风的荷载干扰。这是因为,与受地震影响的混凝土等坚固结构不同,最轻的元素反而会容易受到风的影响。




该结构设计可承受180公里/小时的风速,并通过对角支撑进行加固设计,用于承受横向负荷,薄壁型材位于墙后或隐藏在酒店后部的结构内部。

该结构具有高度的浮力特性,因为在其中我们满足了一个简单的规则,即计算由结构重量引起的浮力。因此,考虑通过水密度的浸没体积产生指示位移。“如果酒店的重量证明比它同等的水更重,则会产生下沉,”巴伦苏埃拉说。现在让我们来看看海上的细节情况。最好在此说明一下,从蒙特港运输的板坯通过安全和创新的系统固定在上部结构上,以避免产生任何脱落的危险情况。


因此,板材通过混凝土基座连接到结构上。反过来,螺栓连接到基座上,并且在每个15厘米的支柱上,形式上有点像日常生活中的梳子的齿型结构。“我们在底座上钻了一个表面结构,粘上了特殊的胶水,然后引入了条纹柱,放置模板,浇筑混凝土,然后拆下模板,”工程师一一列出整个建筑流程。该系统用粘合剂加固,以固定混凝土板与基部的连接。此外,平板漂浮在基地上方40厘米处,而实际的酒店建筑距离海平面约80厘米。



对于建筑师来说,酒店的室内和室外设计至关重要。事实上,他们保持了公司的企业色彩,使用通体的深灰色石墨色调,因为它使建筑能够与周围景观和环境相互协调产生统一感。这是通过专门为项目开发定制的板材实现的,这样也达到了墙壁和天花板之间的连续性。

该公司打算为其工人提供一个舒适的标准工作氛围,因此设想了尽可能舒适和愉快的视觉环境。这是通过为空间增加更多高度,使用木材进行室内装饰以增加温暖体验感,以及分配大型双层玻璃窗以提供光线并保持室内温度,减少一定的压抑紧闭感来实现的。




建筑师补充说,光和空间都是必不可少的。“自然光和通风应该是所有房间都有的元素,所以每个房间都有一个可操作的通风窗,以及一系列能够自然照亮和扩大空间的飘窗,”Sabbagh说。在外面,循环表面用于对接船舶和维护等待区的设计。酒店内有两层,一层为住宅区,另一层为休闲娱乐区。两者都有经理和工人的房间,甚至对于一些穿过该地区的皮划艇运动员也提供了一定的住宿服务。



在日常设施方面,该公司打算实现“工作人员的互动交流和休闲放松”空间为主。因此,包括在此建筑内含有公共空间的电视区,游戏室,运动区和咖啡网吧等等。

图纸

模型图

平面规划图

平面图

平面图

总平面图

部分构件螺栓示意图

部分构件螺栓示意图

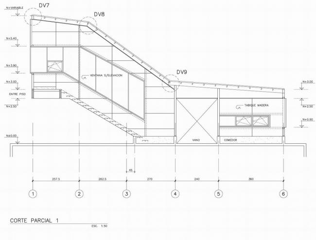
剖面图

剖面图

立面图

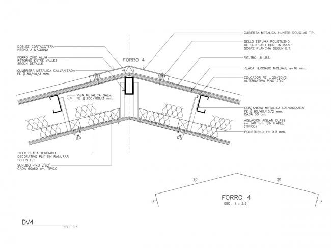
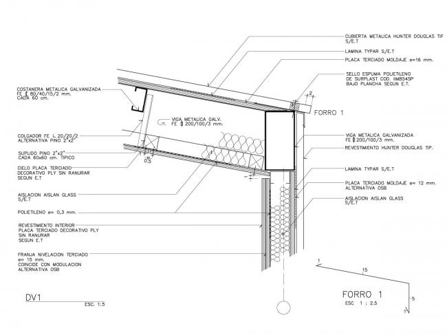
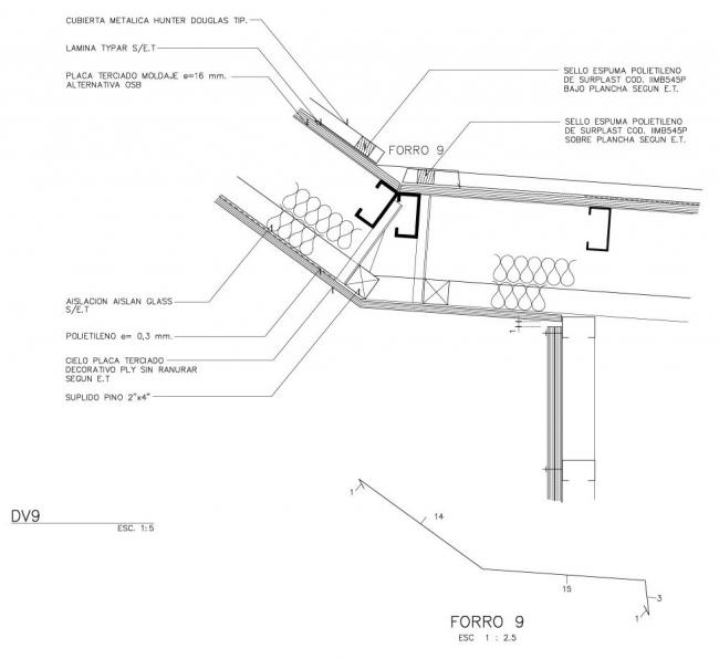
节点构造图

节点构造图

节点构造图

节点构造图

节点构造图

节点构造图

节点构造图

节点构造图

节点构造图

节点构造图

节点构造图

节点构造图

节点构造图

节点构造图

节点构造图

节点构造图
项目信息
建筑师:Sabbagh Arquitectos
建筑位置:Guaitecas Archipelago,Guaitecas,Aysén,智利
项目建筑师:Juan Sabbagh,Mariana Sabbagh,Juan Pedro Sabbagh,Felipe Sabbagh
建筑面积:2600.0平方米
项目年份:2006年
摄影摄影师:由Sabbagh Arquitectos提供
制造商:Hunter Douglas US,Tarkett,Atika,Bercia,Metalcon,Tupemesa,Cintac,Glasstech,Arauco
合作者建筑师:HernánSánchez,Sergio de la Cuadra
结构设计:Ingevsa
灯光设计:MónicaPérezyAsociados
施工单位:Sitecna
浮动酒店设计:Innovaciónmaradentro
委托方:Multiexport Foods
建筑表面积:4个浮动酒店,单个400平方米,以及另外的1.1万平方米

BIM建筑网





评论前必须登录!
注册