
装配式|江边城景的装配式体现 ——前滩36-01地块项目装配式结构设计简介
来源:同济设计四院 项目信息 结构类型:高层框架-剪力墙结构、剪力墙结构 建设地点:上海市浦东新区 建筑面积:53800㎡ 项目团队:住区养老事业部——结构团队 如果2010年让世界知道了上海浦东有个后滩,那么如今“前滩”必定是热词。而在这...

来源:同济设计四院 项目信息 结构类型:高层框架-剪力墙结构、剪力墙结构 建设地点:上海市浦东新区 建筑面积:53800㎡ 项目团队:住区养老事业部——结构团队 如果2010年让世界知道了上海浦东有个后滩,那么如今“前滩”必定是热词。而在这...

建筑表皮设计是地产黄金十年期间的热门领域。在众多新建筑和国际设计竞赛中,建筑表皮设计或是成为建筑方案的特点之一,或是成为建筑师的创意核心。 建筑表皮设计古已有之,并不是近年涌现的新生事物。从古代宗教建筑的立面装饰处理到密斯设计的玻璃幕墙立面...

在我国,外墙保温材料主要被分为A级、B1级、B2级和B3级四个等级A级为不燃材料,属无机保温材料。B级的保温材料,分为三个等级,B1级是难燃,B2级是可燃,B3级是易燃。 B1级:比较常见的如经过特殊处理加了阻燃剂的EPS/XPS保温板等。...
科技部2月22日发布国家重点研发计划重点专项2016年度项目申报指南,其中包括”绿色建筑及建筑工业化”重点专项. 根据科技部网站公布的文件,项目申报单位网上填报预申报书的受理时间为:2016年2月26日8:00至3月...

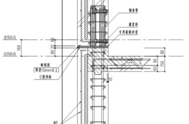
装配式结构来源:远大住工
第三章预制混凝土构件的吊装作业 内容概要 预制混凝土构件的吊装作业在整个装配式建筑施工过程中起到了混凝土构件起吊、就位、调整的作用,完成预制混凝土构件的临时就位工序,因此在本章节中针对预制混凝土构件吊装作业进行详细阐述与讲解,分为常用起重机...
第三章预制混凝土构件的吊装作业 内容概要 预制混凝土构件的吊装作业在整个装配式建筑施工过程中起到了混凝土构件起吊、就位、调整的作用,完成预制混凝土构件的临时就位工序,因此在本章节中针对预制混凝土构件吊装作业进行详细阐述与讲解,分为常用起重机...
第二章预制混凝土构件的运输和进场检查(上) 内容概要 预制混凝土构件依照应用部位、大小、形状、重量具有很多不同的类型,各类型构件在运输、检查和堆放时的具体要求也各不相同,本章介绍了预制混凝土构件的运输特点、进场检查内容和质量要求、现场堆放要...

在互联网+的时代潮流下,建筑业充分利用云计算、大数据、GIS等新兴技术,推动平台化、数据化、模型化、工业化、一体化的建筑领域新生态建设。继2016年建谊集团打造了首款应用“云”技术的BIM工作平台——BIMCLOUD(建筑工业大数据云平台)...

BIM是一个由二维模型到三维模型的转变过程,也是从传统施工中被动“遇到问题,解决问题”到主动“发现问题,解决问题”的一个转变过程。所以,BIM的应用对“智慧工地”建设显得尤为重要。 众所周知,传统建筑行业属于劳动密集型产业,粗放式的管理使工...
虽然如今徜徉在工地,会发现一幅幅数字工地的画面正在呼啦啦地展开,但究竟什么是“智慧工地”,如何打造智慧工地,相信很多小伙伴还一知半解。 7月24日,2015年中国建设行业年度峰会施工企业分论坛上,广联达软件股份有限公司副总裁郭冬建发表了“互...
装配式建筑在20世纪初就开始引起人们的兴趣,1851年伦敦建成的用铁骨架嵌玻璃的水晶宫是世界上第一座大型装配式建筑。第二次世界大战后,欧洲国家以及日本等国房荒严重,迫切要求解决住宅问题,促进了装配式建筑的发展。到上世纪60年代,装配式建筑得...
为促进福州市装配式建筑发展,市建委积极行动,截至2018年7月底,福州装配式研发市已完成62个项目共250万㎡的工业化建筑(设计阶段)认定,推进完成了以福建省食品检验检测实验楼为代表的一批示范项目,为完成2018年福州市新开工建设装配式建筑...

张明祥:我国新农村住宅建设是促进农村可持续发展的重要途径,也是加快城乡一体化发展、实现农村现代化的客观要求。新农村住宅有别于传统意义上的村镇住宅,不仅包括住宅物的实体,还涉及村镇基础设施、公共服务设施、生态环境和聚落文明等方面。新农村住宅建...

27日,国家重点研发计划“预制装配式混凝土结构建筑产业化关键技术”第一次工作会在北京成功召开。在项目负责人—中国建筑股份有限公司叶浩文副总工程师的主持下,与会专家就项目与课题开展的组织管理保障、研究目标及指标、阶段性任务及成果、技术路线、示...

2~3日,由中国建筑股份有限公司作为牵头单位、樊则森作为牵头人的 “十三五” 国家重点研发计划项目“工业化建筑设计关键技术”启动会暨实施方案论证会在京召开。 项目论证会专家 “工业化建筑设计关键技术”项目负责人中国建筑股份有限公司樊则森教授...
和10月,习近平主席在访问中亚、东盟期间,先后提出共建丝绸之路经济带和21世纪海上丝绸之路的战略倡议。自此,这个简称“一带一路”的宏伟构想,成为历史坐标上一个新亮点。 初步估算,“一带一路”沿线总人口约44亿,经济总量约21万亿美元,分别占...

近日,住房城乡建设部印发《建筑工程设计文件编制深度规定(01日施行。

21日,中欧建筑工业化论坛在京隆重开幕。论坛主旨为:绿色建材、绿色建筑、低碳、应对气候变化及城市可持续、建筑工业化。利勃海尔机械(徐州)有限公司总经理张伟宏出席论坛并作主旨报告“欧洲Hybrid建筑工业化体系”,本网现全文刊载,以期与读者共...

观众装配式建筑在“住博会”现场通过VR设备“走进”装配式建筑的样板间。 由工厂批量生产房屋“构件”,再拉到现场组装;初步计划在通州及城六区实施 新京报讯 (记者赵实)今后,像造汽车一样造房的方式,将逐步取代传统的建筑工地现场浇筑——由工厂批...