

“王后之领”公寓楼位于墨尔本皇后大道。皇后大道和圣基尔达路是墨尔本最出名的两条住宅区大道,道路两旁基本上都是不同时代和不同风格的建筑。当从阿尔伯特公园(Albert Park)观看皇后大道时,人们可以看到墨尔本建筑历史的一段叙事史诗。其中包括著名现代主义建筑师弗雷德里克·隆伯格的一些引以为豪的建筑作品。





斯坦希尔和新生代的一些公寓楼都是造型与功能主义兼具的建筑,其设计有开敞式的阳台,拥有一望无际的美景和精致的玻璃幕墙细节。“王后之领”的建造在这段故事中续写了下一个篇章,重新诠释了现代性的元素,同时融入了我们这个时代的设计(BIM学习)和建造技术。



项目地块对皇后大道进行的退界处理,让居民们可以享受到开敞的前院空间。本次公寓的特点是设计了很深的阳台,同时表面弯曲的塔楼形式为室内空间有效形成遮挡,尤其是在西侧可以防止西晒。屋顶露台上设置有封闭在高玻璃栏杆内的烧烤区,从这里可以享受到眺望远方的全景视野,同时确保了防风保护。作为皇后大道城市肌理中的一个核心部分,“王后之领”对已有的退界区域和建筑天际线表示出了充分的尊重,并以此界定区域。


建筑的轮廓通过使用具有一系列纹理和透明度的材料以及弯曲的阳台和立面元素来软化。可以说整个公寓楼的建筑造型完美地平衡了雕塑感和结构性之间的关系。它优雅的外形将为皇后大道区增添一抹靓丽的风景线,并成为墨尔本建筑群故事众的重要组成部分。


图纸

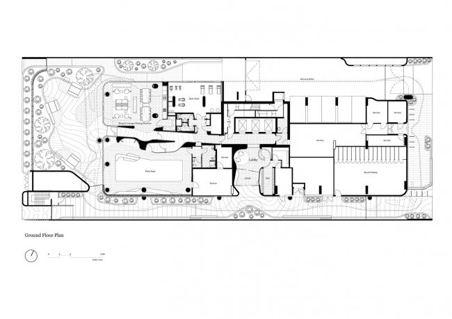
首层平面图

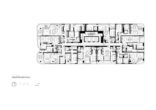
标准层平面图

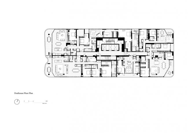
顶层平面图

南立面图

其他立面图
项目信息
建筑设计:DKO Architecture
项目区位:澳大利亚,墨尔本
主导建筑师:Koos de Keijzer, Kai Chua, Andrew Richardson, Raffaele Camuglia, Simon Linardi
室内(BIM工程师)设计:Nexus Designs
建筑面积:36450.0平方米
项目时间:2017年
项目摄影:Tom Blachford
项目类型:公寓
制造商:ShapeShell, Austral Bricks, Gunnersens, LOCKER GROUP, Signorino

BIM建筑网





评论前必须登录!
注册