


位于拉塞雷纳市的公共工程部新的地区总部大楼作为一项新计划启动了,它将机构建筑置于城市和地区服务之中,创造公共空间,结合人文地理环境,帮助城市边缘人口提供更有力的帮助。这个新建的MOP建筑分享并传承了“瑟琳娜计划”的精神,通过公园和一系列重要的建筑物(均位于战略位置),形成了与城市地形相关的新城市形象影响力。我们的目标是建造一座将生态和技术、可持续建筑中的功能和空间要求相结合的建筑,从中优化机构的活动场所。并且这个新的MOP建筑还能够通过工作与公共空间之间的联系来设定城市的边界线,为其与基础城市轨迹和当地地理的整合发展提供了重要的城市元素。



该建筑解决了第一个问题,即城市露台与河流之间的地面沉降问题,同时优化了与远处景观的关系,并提供未来在该现场建造新建筑的灵活性。



这个门户建筑同时也是通向遥远景观与河流的窗口标志。它还为这座城市提供了一个露台,亦或一个舷墙的保障,人们在建筑的平台屋顶可以俯瞰着远处的河流景观。从这个门廊同样也可以进入整个建筑。此外,礼堂是一个单独的空间场所,同样可以通过门廊进入,防止干扰办公楼内部工作人员的工作流线和活动。



为了考虑场地内的影响因素,即有可能形成的城市和河流之间的地面下降,我们将整个建筑体量形态分裂成好几个体块,并在各自之间形成他们自由的开放式庭院。这些庭院将河流景观引入到建筑中来,重建焕发旧城区庭院的活力和生命力。并且两个中央街区都是由能够到达街道的顶冠露台相连。



建筑的东区部分包括二楼的礼堂,多功能厅和餐厅。后者与露台相连,露台可通往景观平台。其中礼堂总共占据两层的通高空间,因此人们可以选择从外部或是从上层和下层的内部大厅两个流线交通进入于此,参加多样的(BIM培训)活动。




图纸
(BIM学习)

场地平面图

平面图

平面图

地下一层平面图

一层平面图

二层平面图

三层平面图

四层平面图

五层平面图

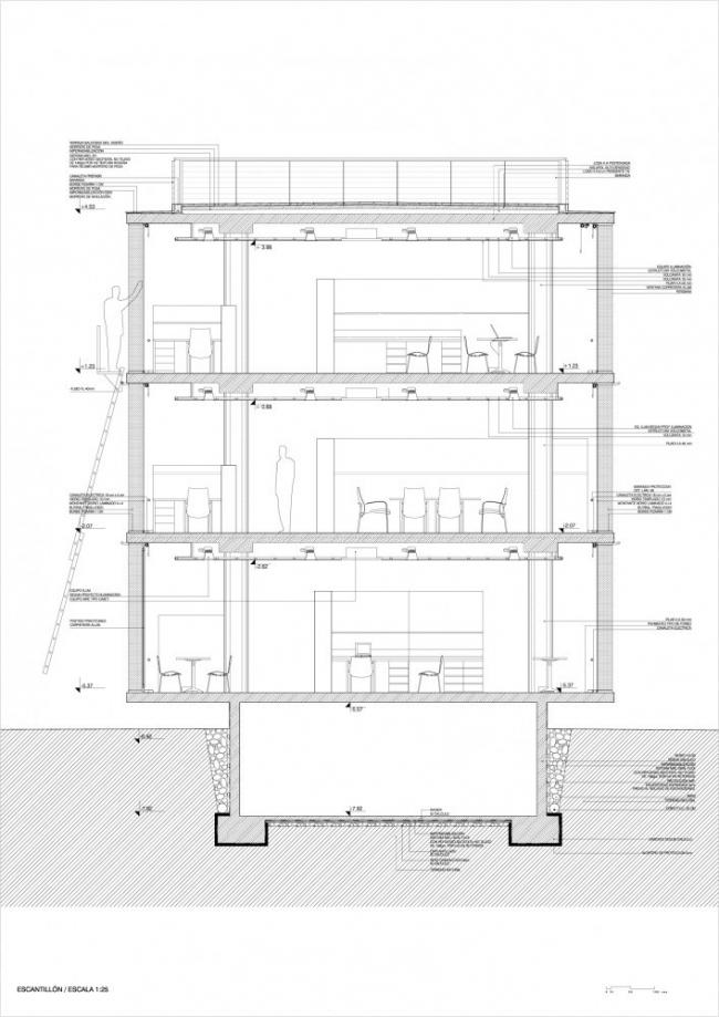
剖面图

立面图

立面图

节点构造分析图

节点构造分析图

效果图

效果图

效果图

效果图

剖面图
项目信息
建筑师:TeodoroFernándezArquitectos/TeodoroFernándezLarrañaga,SebastiánHernándezSilva,Milva Pesce Traverso
建筑地点:拉塞雷纳,智利科金博地区
委托方:Ministerio deObrasPúblicas
建筑面积:10000.0平方米
建筑摄影:罗德里戈奥帕佐

BIM建筑网





评论前必须登录!
注册