

该地块位于斯塔万格以南15公里的一个农业化村庄的中部,占地10000平方米。房子周围的田地被用作奶酪生产的牲畜牧场。房屋和庭院周围的地形都覆盖了厚厚的草地。坡地则被房屋和庭院围合起来。通过这样的设计方式在室外形成了一处温馨的空间,居住者能够在这片空地中欣赏美景,感受风的穿梭。另外场地内本身还有一排连续的石墙。







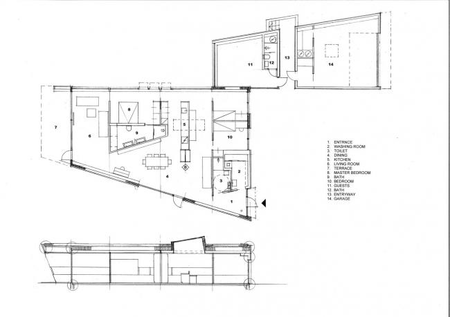
该住宅由两个体量组成,仅有一层高。其中一个是主要的家庭使用体量,另一个是车库和客房部的附属设施。住宅的总占地面积为250平方米。两间卧室位于入口庭院处。客厅、厨房和用餐区排布在一个开放空间内,朝向南部和西部打开。主卧室及其配套卫生间设置在北侧。





住宅的所有立面均采用考登钢板作为饰面材料。屋顶上覆盖着草。这样以来,整个建筑就会让人联想到一台被遗弃在田野中央的生锈旧铁犁。室内空间的墙壁都做了灰木饰面。所有的门都是木匠现场制作的。天花板也同样是灰色的饰面。地板部分除了浴室和入口大厅(BIM工程师)的花岗岩瓷砖外,整个房子都采用Dinesen Douglas云杉木铺就。建筑的所有饰面以及手工艺构件均拥有良好的施工品质。



图纸

总平面图

平面图及剖面图

南立面图、北立面图

细部示意图
项目信息
建筑设计:Hoem + Folstad Arkitekter
项目区位:挪威,索拉
建筑面积:2(BIM)50.0平方米
项目时间:2017年
建筑摄影:Knut Folstad
制造商:Dinesen, Rais, Ruukki, Oslo Finerfabrikk
施工方:Byggmester HøieUeland
景观承包人:Cato Utbjo
混凝土承包商:Geir Stangeland
砌砖工:Tollef Carlsen
铁匠:Lie Blikk

BIM建筑网





评论前必须登录!
注册