
站在三角形庭院里看办公大楼(左)和礼堂大楼(右)
CAT电信的新总部大楼由许多功能需求组成,也正是因为如此而使得整个项目需要巨大的占地面积。事务所决定把它分成三幢大楼:一幢礼堂大楼,一幢停车楼和一幢由业主自己安排具体使用方式的办公楼。

办公大楼(左)及其与礼堂大楼(右)的连廊

办公大楼(右)与停车大楼之间的连廊(左)

在建筑物外部看办公大楼

礼堂大楼内部

礼堂大楼内部

礼堂大楼内部大厅

礼堂大楼内部

停车大楼内部

停车大楼内部
三栋建筑的排列遵循现有的总体规划,成对角线网格分布,在其中间形成一个三角形的庭院。该庭院所形成的公共空间不但可以用于人群的聚集,还可以在建筑物理性能方面带来一系列好处,比如为建筑内部提供更多的自然光线。三幢建筑物彼此独立成栋,有助于将使用者流线和交通流线分离。

站在三角形庭院里看办公大楼(左)和礼堂大楼(右)

站在建筑物外部看停车大楼(左)、办公大楼(中)、礼堂大楼(右)围城的三角形庭院

站在三角形庭院里看办公大楼(左)、礼堂大楼(中)和停车大楼(右)

礼堂大楼(左)与停车大楼(右)之间的连廊

办公大楼(左)与礼堂大楼(右)之间的连廊

停车大楼(左)与办公大楼(右)之间的连廊

沿着办公大楼一侧的庭院走道

沿着办公大楼一侧的庭院走道

夜幕下的CAT新总部大楼

三角形庭院中的蓄水池

停车大楼一侧的池边走道
本项目的主要概念设计是将屋顶景观形成一个逐渐上升的斜坡,从礼(BIM工程师)堂大楼一直绵延到办公大楼,让各个体量看起来不致过于密集。这种形态模仿了有机体的“生长”,仿佛它会在未来的时间一直变化。

从建筑物外部看礼堂大楼的斜坡屋顶
图纸

地下层平面图

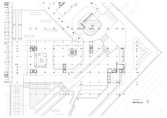
一层平面图

二层平面图

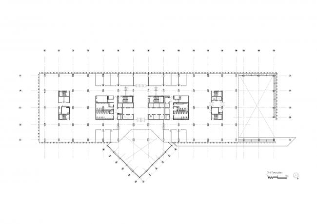
三层平面图1

三层平面图2

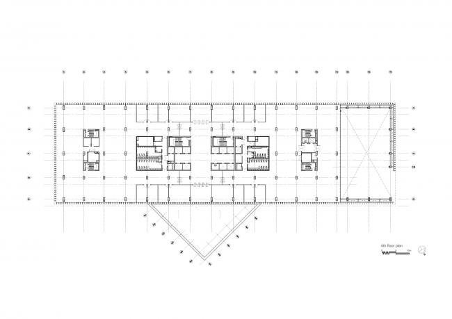
四层平面图

八层平面图

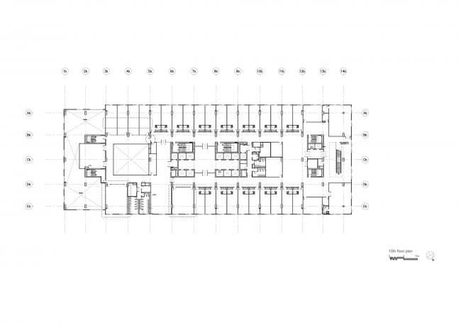
十一层平面图

屋顶层平面图

剖面图C

剖面图A

剖面图4B

剖面图D

立面图2B

立面图3C

立面图1C

立面图3A

立面图2A

立面图4A

剖面图B

立面图1A

立面图4C

剖面图B

三层平面图

四层平面图

七层平面图

一层平面图

四层平面图

剖面图A

屋顶层平面图

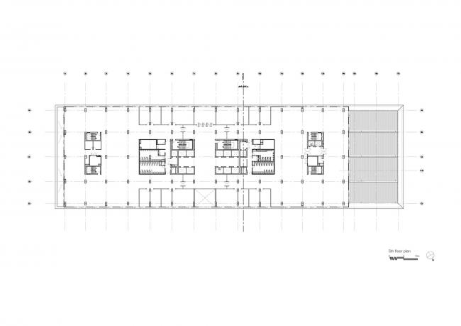
五层平面图

四层平面图

立面图1B

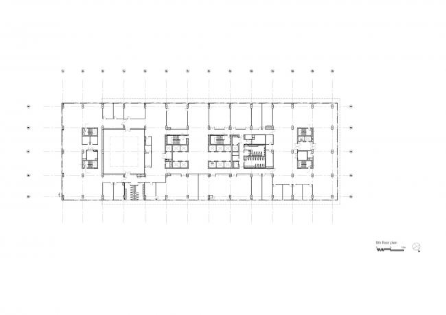
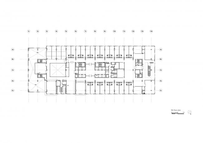
九层平面图

剖面图B

立面图2C

立面图3B

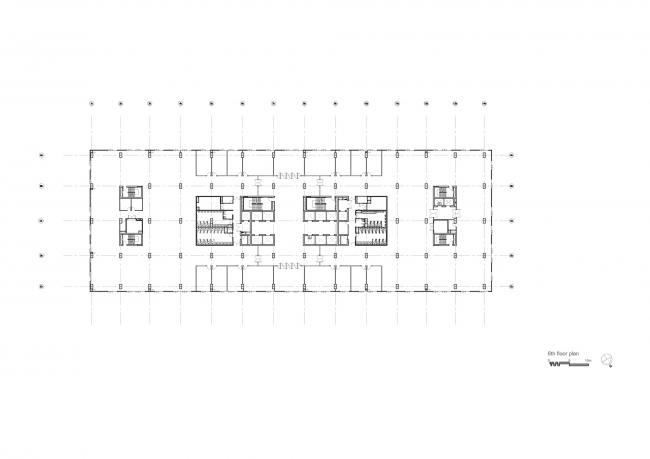
六层平面图

七层平面图

五层平面图

剖面图C

十层平面图

六层平面图

剖面图D

剖面图A

二层平面图

五层平面图
项目信息
建筑设计:Plan Architect
项目区位:泰国
建筑面积:75000.0平方米
项目时间:2018年
项目摄影:Panoramic Studio
制造商:Bluescope, TOA, FAMELINE

BIM建筑网





评论前必须登录!
注册