
建筑的最初形态是一个长方棱镜状体量,长41.5米,宽33米,高25米。如果遵循一般的设计规划,它是相同的体量:三个架空的平面,每个都由三个矩形展览室组成,被放置在两个连续接壤的立面之上,并通过在侧立面上高高架空的斜面坡道相互连接。然后,便自然形成了这个通高四层的中庭在缓道和房间之间升起,在建筑物内部产生对角线的对称美感。




但这座建筑并没有仅遵循这一设计规则。其特征主要是一系列变体的具象化。起着规则作用的斜坡,在每个层分成两个垂直段,延伸达49.58厘米,它需要11.1%的斜率的坡道来增加它的延伸长度,或者以8.73%的斜率增加13.39米,以达到五米半的体量高差。因此,设计师显而易见的设计策略,意味着建筑物的第一组空间形式变化,是为了增加坡道的范围:一组变化中的第一个将决定建筑物的视觉识别,展厅角落空间的顺序保持不变;斜坡拐角的秩序产生变形,而最初的边缘仍然作为其他两个角落存在,建筑内部的阶梯成为了相反对角线的视觉焦点。









通过保持建筑物的原始周长、斜坡的原始位置以及斜坡的原始起点和终点,斜坡达到其所需程度的唯一空间可能性是室外或室内壁架的破坏。该建筑实现了两种可能性。原始斜坡被复制成新的分叉斜坡:外部直线斜坡和内部曲线斜坡。斜坡的每一部分都由三个区段形成:第一个案例中的三个线性区段和第二个区域中的三个弧形区段。每段都要求达到相同的高度,即为连续楼层之间的差异的一半,2.75米,因此整体正好具有与其斜坡的水平分量之和相同的总长度。在曲面坡道和三个折线缓道形成一个新的中庭空间,属于户外宽敞的空间,围合而成的一块天空成为自然的天花板。







连接地板层的始终是由曲线坡道组成的立面空间,而另一个由直线坡道组成:上升或下降路径穿插两种坡道。但在视觉上,每种类型的缓道都有着组合而长的虚假连续性:在内部,只能看到三个曲线斜坡的提升;而在外面空间,主要是直线坡道的三个区段。建筑的空间与现实融为一体;而建筑的形式将现实的(BIM设计)具象而孤立。







建筑物的新周边现在由一条由中心凸弧形成的曲线和两条由切线连接的侧凹弧形成。它强调曲线坡道的痕迹,但略微修改它,使得这些坡道巧妙地出现在立面上。在这个新形成的弯曲表皮的前面和下面,视觉上连续的三个直线斜面环绕着开放的中庭。这些弯曲延展的斜坡缓道在内外空间之间分开,它们成为打破建筑主要正交特征的独特元素。




分成两段的坡道围合出中央封闭的庭院,两个三段式斜坡围合出另外的两个中庭,一个封闭一个开放形成对比。这是建筑内蕴含的变化。从棱镜,岩石状的形态包含建筑的物质性,就是这个建筑的设计所在。




图(BIM教程)纸

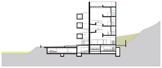
剖面图

首层平面图
项目信息
建筑师:Alvaro Siza建筑师事务所
地点:Avenida Padre Cacique
主持建筑师:ÁlvaroSiza
设计团队:BárbaraRangel和PedroPolónia
合作建筑师:Michele Gigante,Francesca Montalto,Atsushi Ueno
总建筑面积:1350.0平方米
项目年份:2003年
建筑摄影师:Fernando Guerra | FG + SG

BIM建筑网





评论前必须登录!
注册