
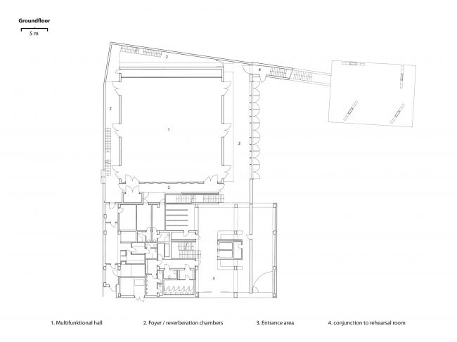
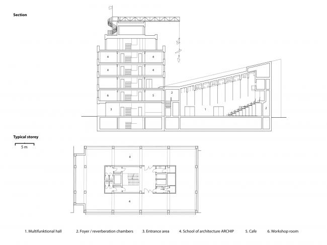
DOX+综合体是位于捷克共和国首都布拉格 DOX当代艺术中心的扩建项目。原本以展区为中心的综合体,扩展出舞蹈、音乐、电影、建筑等特殊区域。 DOX+由建筑学院行政楼、实验音乐舞厅和舞蹈排练室三幢建筑组成。从建筑的角度来看,建筑是一个单一的单元,这一原则通过统一的灰色和各部分之间流动的相互联系象征性地表达出来。因此,综合体可以被视为一个单一的结构雕像。


行政区域包括入口门厅、俱乐部和餐厅,为 ARCHIP 建筑学院服务。该建筑是在20世纪70年代原建筑改造的基础上产生的,其核心的类型学布局和开放式布局得以保留。内部改造方面使用当时的建筑材料(油毡、薄木片门、水磨石….)。






实验音乐、舞厅和舞蹈排练室都使用粗糙的混凝土。钢筋混凝土建筑被一个柔软的立面覆盖,保护它们不被冻结或过热。绝缘羊毛覆盖在柔性绝缘膜上,柔性绝缘膜以规则网格的形式固定在混凝土上。立面吸收来自大厅的残余噪音,减少了住宅庭院的声学负担。



这个基于家具装饰图案的大厅让人联想到两个大沙发。选择了一种软垫家具图案,因为它能有效地沿织物体表面分布张力。这种模式的扩大对其结构性能没有负面影响,因此,塑料薄膜在极冷的天气中收缩时不会撕裂,在阳光照射下表面温度升高时也不会失去张力。



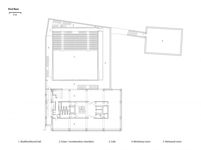
音乐厅音响效果多变,可以当做一种乐器,根据具体演奏的需要进行调音。旋转的三面墙天花板下面板和休息室也是如此。三面墙的面板由吸声、漫反射和反射表面支撑,可以旋转来改变天花板的声学特性,从而改变整个大厅的声学参数。为了扩大渐隐效果,主大厅被一圈门厅包围,如果有特殊演出,大厅可以用作渐隐室。将这些区域添加到主厅的体积中,可以显著延长衰减周期,特别是较低的频率。

正方形的平面意味着没有必要用隔音板覆盖墙壁。该大厅可容纳550名客人,在其短暂的存在期间,因其音响效果而闻名。它目前也被用作参考录音棚。大厅的屋顶是一片草地,用于休闲、户外设施或简单地作为户外表演的场所。礼堂上方有一座供杂技表演用的吊桥。舞蹈排练室的平面图与主厅的舞台尺寸相同。它漂浮在斜柱上的内庭院上方。这些柱子的几何形状不是随机的,避免在地砖下面进行交通规划和技术安装。





图纸(BIM设计)

总平面图

入口层平面图

一层平面图

剖面图和标准层平面图

轴侧草图

声学图解

节点图

场地鸟瞰图

模型
项目信息
建筑师:Petr Hajek Architekti
地址:Poupětova(BIM培训) 1339/3, 170 00 Prague 7-Holešovice,捷克
建筑团队:Petr Hájek, Tereza Keilová, Cornelia Klien, Benedikt Markel, Martin Stoss
项目年份:2018
摄影师:Benedikt Markel
厂家:Jansen, YAMAHA, Aluprof, Tarkett. Linoleum, HERAKLITH
总承包:IMOS Brno, a.s.
承包商(项目经理):Petr Groda
声学顾问:AVT Group a. s.
声学专家:Martin Vondrášek
铝幕墙承建商:IzoDol s.r.o. Jiří Doležal
项目管理:Sidon Schlehr
场地面积:2600 m2
总建筑面积:5450 m2
奖项:EU Mies Award 2019 Nominee
客户:Leoš Válka

BIM建筑网





评论前必须登录!
注册