

RW清水教堂位于韩国首尔东北部Byeollae的新立开发区。建筑本身带有的特征气质总能让参观的人唤起一种心灵上的感觉,仿佛它还是一个在建未完工的建筑项目,如同一个建立在自然与人工之间或创造与遗迹之间暧昧不清过渡阶段的新未来建筑景观。该教堂将成为新城市结构中的一部分,通过基于简单形态的应用,将单一的物质形体特性和建筑的连续空间流动实现了完整的具体化创造。
(BIM学习)

设计师通过使用简单的建筑体量形态和适用于该场地的单一特质的材料美感,创造了一个可以容纳在新开发区所需的一系列功能空间的建筑。




混凝土是一种简单的建筑结构,也是设计中最基本的建筑装饰材料,它自身就带有一种能够代表整个教堂所要传达出(BIM教程)来的某种特性与质感,同时也是一种能够传达出令人产生沉静矗立于大地稳定坚固有形的力量感受,这与一些建筑的抽象概念截然相反。在某种程度上这座教堂的混凝土材质美感揭示了它作为宗教价值观的隐喻价值,即不可预测且无法确定的当代信仰与宗教总是有着不易动摇改变的力量。


此外,在这里作为宗教象征的十字架代替了巨大的钟楼,并通过楼梯上部的空旷空间与建筑物的有形物质特性相结合。设计师通过将宗教符号最小化,来反衬出空间内使人感受到内部的戏剧张力。





当人们走进这座建筑物时,遇到的第一个空间就是底层空无一物的混凝土围合而成的空间。恰恰因为这一点它也是一个灵活度很高的空间,充当与社区互动的交流场所,同时也能容纳不同的宗教活动的需求。

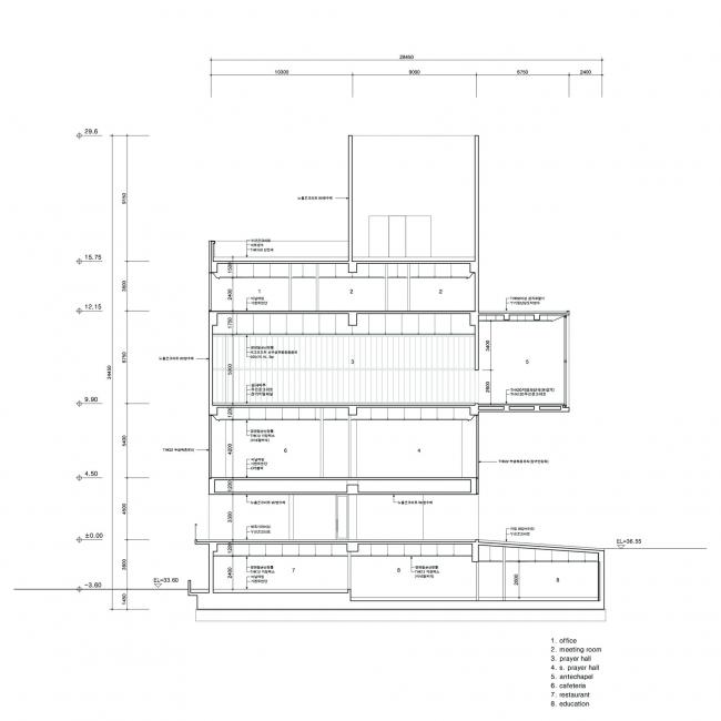
当你走过这个空旷的院子时,已经习惯了设计师固体营造的黑暗观感,逐层而上,当人们爬上三层时,会迎来一个对面盈满了日光的开朗空间。这个内部空间有一个悬挑达6.9米的悬臂结构,是在进入教堂之前必须经过的路径。这个悬臂式空间,是一个将日常生活与宗教信仰逐渐联系起来,并且作为个人的身体感官和灵魂精神过渡转换的场所。

在这座教堂有一个不太陡峭的斜坡,给人创造了一个单一纯净空间的宁静感,并自然地唤起了在低矮山坡中参加礼拜和祷告的特殊体验。

图纸

总平面图

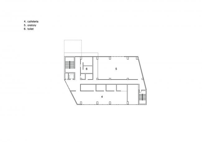
首层平面图

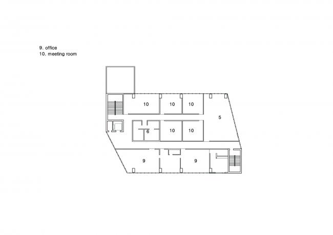
二层平面图

三层平面图

四层平面图

剖面图

概念示意图
项目信息
建筑师:NAMELESS建筑师事务所
建筑地点:韩国京畿道南杨州市Byeollae-myeon
主持建筑师:Unchung Na,Sorae Yoo
合作建筑师:Jplus(Jungtaek Lim,Hwataek Jung)
总建筑面积:3095.0平方米
项目年份:2013 年
建筑摄影师:Rohspace / NAMELESS
结构设计顾问:Mido Structural Consultants
机械设计顾问:One Engineering一个工程
客户委托方:RockWon教堂

BIM建筑网





评论前必须登录!
注册