
柏林博物馆岛的新入口建筑“詹姆斯·西蒙美术馆” 大楼现已竣(BIM工程师)工,并将于2019年夏季对外开放前将管理权移交给地方政府。该建筑由大卫·齐伯菲尔德建筑事务所设计,建筑内主要为博物馆参观者提供各类服务设施,还设置有一个临时展览空间和一个拥有大约300座的大礼堂。

建筑南侧
“詹姆斯·西蒙美术馆既是一座建筑,又是一处场所,”大卫·齐伯菲尔德解释说。“其为博物馆提供的内部功能空间和服务设施能够充分显示出自身的存在感,同时这座建筑的设计目的是重新组织城市关系和博物馆岛内的可达性。它的作用与其说是由建筑功能来界定,不如说是由它作为城市中心公共建筑的责任来界定的。”

建筑主入口
詹姆斯·西蒙美术馆连同“考古长廊” 代表了1999年博物馆岛总体规划的核心。这座建筑以该市一位最重要的赞助商命名,这位赞助商在20世纪初将他的艺术收藏品和挖掘成果捐赠给柏林国家博物馆。在接下来的几个月里,詹姆斯·西蒙美术馆将在2019年的就职典礼前及时装修完毕。

建筑入口
“詹姆斯·西蒙美术馆里的建筑语言采用了博物馆岛的现有元素,主要是来自外部建筑,如已建成的地形、柱廊和室外楼梯,并参照了辛克尔、斯特勒和其他参与创建博物馆岛的建筑师作品,”设计团队说道。“这座用天然石材建造的建筑物采用了石灰岩、砂岩等饰面材料,与博物馆岛上多样的色调融为一体,其光滑的现浇混凝土材质则主要用于内部空间。”

从‘lustgarten’看向建筑物
参观者经过三段宽敞的台阶后就可以直接进入建筑的上层空间中。台阶上紧接着是宽敞的门厅,可以直接进入佩加蒙博物馆的主展厅。门厅内还有自助餐厅,并与一个面宽贯穿整个建筑物长度的大露台相连。下层的夹层空间中是博物馆商店、大衣帽间、厕所和更衣柜,临时展览空间和大礼堂位于地下层内。

上层楼门厅

礼堂空间

从kupfergraben运河上看向建筑

从水道看pergamon博物馆

从schlossbrücke看向建筑
图纸

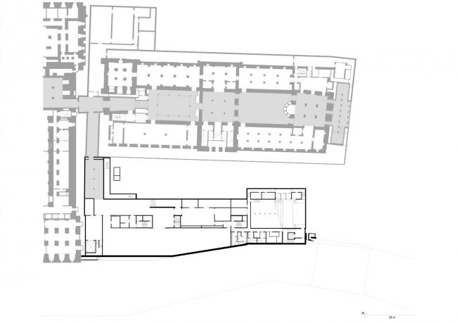
总平面图

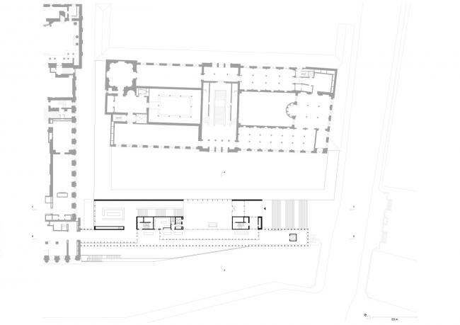
地下层平面图

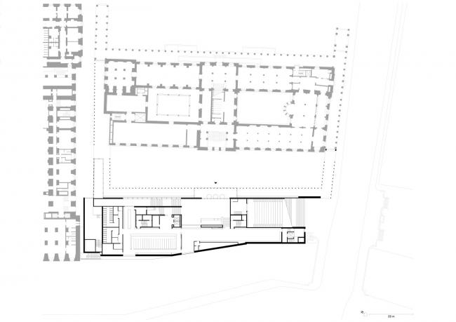
一层及夹层平面图

二层平面图

AA剖面图

BB剖面图,高柱廊处的纵向剖面图

CC剖面图,门厅及大礼堂纵向剖面图

西立面

剖面细部

轴侧分析图
项目信息
竣工时间:2018年
开馆时间:2019年
总建筑面积:10900平方米
业主方:stiftung preußischer kulturbesitz represented by the bundesamt für bauwesen und raumordnung
项目管理:miriam plünne(BIM教程)cke
建筑设计:david chipperfield architects berlin
结构工程师:IGB ingenieurgruppe bauen, berlin
后勤工程师:INNIUS DÖ GmbH, berlin; inros lackner AG, rostock
建筑物理:müller-BBM GmbH, berlin
消防顾问:arge brandschutz NEG, berlin
照明顾问:matí AG, adliswil
照明设计:conceptlicht GmbH, traunreut(室外照明)
景观建筑师:levin monsigny landschaftsarchitekten

BIM建筑网





评论前必须登录!
注册