

埃文特斯商务花园是一座位于EspooMatinkylä的办公中心,拥有着六层灵活可自由配置的办公空间以及两层地下停车场。它的灵活性在设计阶段已经通过了考验,当时它被转化成采矿技术公司Outotec的总部。




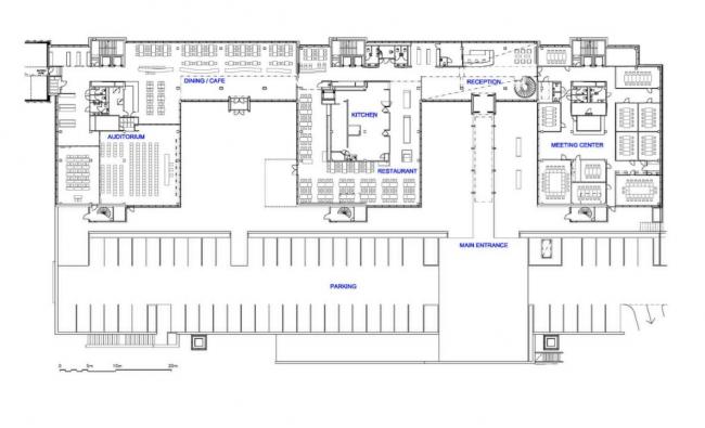
地面层设置了会议和餐厅等功能空间。建筑物的E字形体使立面可以最大面积开窗,让自然风和光线进到室内。大堂里设置了一道巨型的绿植墙体来确保室内空气良好洁净。

从远方看这些建筑呈现出白色以(BIM培训)融入到周围的建筑中。立面上的竖条状白色金属面板中的一些被贴上彩色外皮,丰富了立面色彩的同时,当汽车驶过建筑时,建筑看上去醒目又突出。立面的竖条面板和彩色表皮的大小经过特别设计,人行步道一边的与高速公路一边的相比,面板更小、色彩变化更活泼,以适应不同过(BIM设计)路者的速度。








图纸

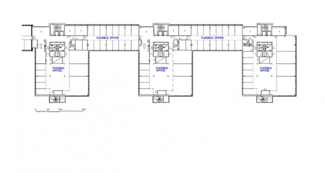
一层平面图

二层平面图
项目信息
建筑师:Arkkitehtitoimisto HKP
地址:Espoo, 芬兰
主创建筑师:Laura Vara, Pekka Leskelä
建筑面积:22400.0 m2
项目年份:2014
摄影师:Mika Huisman
厂家:Casalgrande Padana, Vallila Interior, Tarkett, Saint-Gobain, Ruukki
甲方:PEAB Oy, Outotec Oyj
室内设计:Gullstén-Inkinen, Arno Puukko
结构设计:Insinööritoimisto SRT
HVAC设计:FCG/Asplan Oy
电设计:SIR-Sähkö Oy
微信公众号:xuebim
关注建筑行业BIM发展、研究建筑新技术,汇集建筑前沿信息!
← 微信扫一扫,关注我们+

BIM建筑网





评论前必须登录!
注册