城市景观之间的关系
该建筑位于汉南大道104号,比邻2号隧道口与汉南桥的黄金位置。作为交通拥堵最多的街道之一,设计师确定了该场地的设计特征。尽管该项目是一个小型建筑,但城市景观的定义方向是一个需要解决的问题,它由此成为了该计划的起点。

最后,我们在探讨与思考了交通拥堵期间建筑物中的使用者与坐在汽车内的人、走在街道上的人应该有什么样的视觉交互问题。建筑的立面设计成为构成城市景观的主要部分,而我们将该项目抽离至单向的建筑交流之中,只允许建筑物内的人向外看,而不允许行人、车辆内的人进行任何与建筑物本身相关的视觉交流。而由此建筑将会重新构造都市与景观的主要表征关系。


城市办公空间的可持续性
该建筑的主要功能是提供办公空间。我们中的许多人每天在封闭的办公空间内花费超过8小时,某种意义上这可能类似于围困在栅栏内的动物(可能大概社畜就是这么的由来吧)。为了能够让建筑内的使用者感到更加舒适自由,我们在所有办公空间附近都设计了一个可以连接的阳台。小阳台可以容纳两到三个人进行小型的会话空间,或是私人空间进行电话交谈,从而能够让这些社畜能够在工作繁忙之中呼吸到新鲜的空气。这些阳台成为了都市中的悬浮微公园。城市中的阳台是体验城市的关键。此外,工作在办公室里的人也会因此愉悦身心加快工作效率,因为办公大楼内的建筑空间密度降低也会减少工作狗产生过多的累积疲劳感。





立面结构
为了创造这样的阳(BIM学习)台,建筑表皮的外壳成为了结构。主结构和子结构的双重性允许结构构件合并或分开,并在结构之间产生空隙空间以形成阳台空间。这类似于从哥特式建筑发展而来的肋骨结构,来创建拱形天花板拱肋结构。重复阳台之间的波浪语汇以区分楼层;在内部结构上来看是系统的,但设计师还是在创造一个不规则的表壳立面。随着阳台而生的办公空间,使得建筑物的面积有所增加。消解建筑外立面的边缘使得建筑物的外壳更加自然的形成有机表皮。

浇筑混凝土
制作了钢板分模系统,能够提前组装并在现场构建一系列的三维曲面立面结构。将混凝土浇注到三维模具中,在拐点处模具需要分离铸件。分模的性质要求施工人员能够在混凝土的截面浇筑。然后在一个剖面倾倒最后倒在镜面顶部。颜色编码法则帮助现场工作人员能够轻松了解过程,这也为施工人员创造了新的工作环境。






利用透视角度来变更立面
通常状况下正立面的设计并未能够显示出建筑物的三维方面表征;然而,随着视角的变化,建筑带给人的体验发生了巨大变化。这种模式类似于欧普艺术,主要的决定因素来源于观察者的观点和角度。从长远来看,这给建筑物的体量带来了非常不同的体验,比如那些在车内驾驶的人。我们可以想象路人(当他们瞥一眼建筑物)和使用者(站在阳台上)的短暂交流。这将给那些无表情的城市景观带来一点别样的欢乐。

图纸

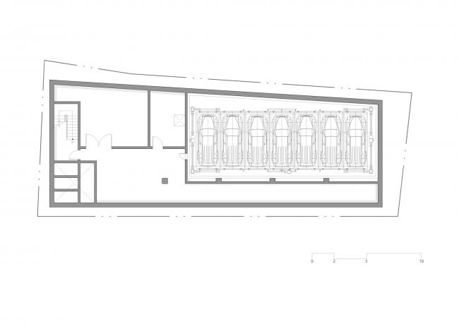
地下一层平面图(BIM设计)

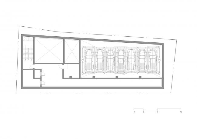
地下二层平面图

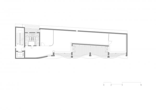
首层平面图

二层平面图

三层平面图

四层平面图

五层平面图

屋顶平面图

剖面图

剖面图

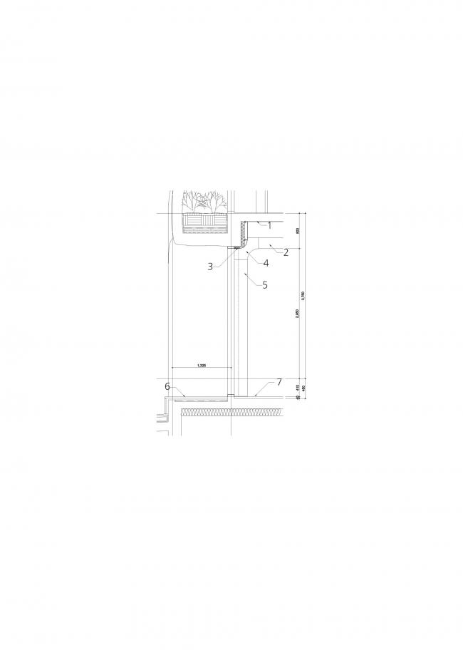
节点构造图示

节点构造图示

节点构造图示

节点构造图示

表皮设计分析图

表皮设计分析图

表皮设计分析图

表皮设计分析图

表皮设计分析图
项目信息
建筑师:THE_SYSTEM LAB
地点:韩国首尔龙山区汉南大路104号
设计团队:Choonglyeol Lee,Sanghyun Park,Jongkil Kim,Jinchul Choi设计Chanjoong Kim
建筑面积:433.0平方米
项目年份:2014年
建筑摄影师:Yongkwan Kim
结构工程师:KUJO有限公司
机械工程师,电气工程师:HANA咨询工程师有限公司
施工单位:Geo Hyun Construction Co.,Ltd(建筑),Kumkang企业有限公司(内部)

BIM建筑网





评论前必须登录!
注册