这座透明的玻璃盒子建筑体量是CO Architects建筑事务所为堪萨斯城的一所大学设计的新教学楼,从外部可以透过玻璃幕墙看到里面围合每层空间的土红色幕墙板。健康教育大楼建在原有停车场的位置上,正好是堪萨斯大学医学中心园区一个非常有意义的角落,它是堪萨斯州与密苏里州交界处。这座建筑是该学院的医疗、护理和相关健康项目的初级教育设施。

这座六层楼的建筑是由洛杉矶建筑事务所CO Architects与当地工作室Helix Architecture+Design合作设计的(BIM工程师)。“随着校园的不断扩大,健康教育大楼将占据现有临床、研究和教育建筑群的核心地理位置,同时也是跨学科资源交流的汇集地,”该项目的设计团队在建筑概况中解释道。

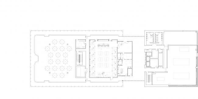
建筑平面大致呈矩形,由两栋翼楼组成,两栋翼搂之间有一个玻璃连接体。该大楼占地约为171744平方英尺(15956平方米),内部包含有教室、模拟实验室、临床技能室和学生生活空间。

建筑外墙用玻璃和红砖做为饰面材料。建筑西立面的上部空间悬挑于场地上方,与熙熙攘攘的街道距离更近。玻璃幕墙透明度很高,从外部可以清晰地看到内部空间,即以土红色幕墙板围合的实验室。(BIM学习)

“悬挑而出的西翼楼就像一个巨大的灯笼一样,不论白天还是晚上都能看到里面的高级模拟实验室,它仿佛悬挂在建筑中,”设计团队说道。“模拟空间中弯曲的土红色板和玻璃外壳会让人们隐隐地联想到人体内部的各类器官,并象征着在建筑中传授的实践和进步的课程。”

相比之下东立面则不太透明,其最大的特点是采用了在校园中发现的传统的砖石罗马砖做为饰面材料。在首层平面中,砖格网的肌理似乎融化成一个格子状的屏幕,人们透过玻璃可以看到里面的大型学习室。建筑物的顶部也使用了类似的策略以达到某些机械设备的需求。

建筑北侧有一条倾斜的人行道,通向另一座研究建筑和停车场。设计团队还将一个风景优美的庭院融入建筑设计中,该庭院的设计是受到堪萨斯州东部弗林特丘陵地区的启发构思而成。从建筑物中排出的机械系统冷凝水可以用于灌溉景观。建筑物的南侧与一座玻璃围成的桥相连,这座桥穿过一条街道与奥尔-梅杰大厅相连。奥尔-梅杰大厅是一栋上世纪70年代建造的野兽派教育建筑。

这座玻璃桥的跨度为250英尺(76米),既是步行通道,又是社交场所。室内空间主要提供了学习和社交的空间。大型的树状柱子既可以提供结构支撑,又能形成视觉趣味性。整个建筑创造了一系列正式和非正式空间,鼓励合作和跨学科解决问题的学习形式。

“大楼每一层的设计目的都在于促进学生之间的友谊、社交和团队精神,”团队说道。“第一层和第二层中设置有15人的辅导室、4人的学习室和1人的小单间,一至四层的教室和学习室包含有模拟医疗环境,如手术室等功能空间。学院办公室设在第三和第四层,而大型活动空间设在第五层。”




中心体量相当于交通枢纽,里面提供通往各楼层的电梯和楼梯通道。零售空间有助于激活建筑物的底层空间。该中心体量具有若干可持续特征,包括LED照明和帮助控制加热和冷却的占用传感器。北侧的天窗从地面上引入自然光线给地下的学习室带来了自然照明。

在西立面上,外部玻璃幕墙和内部土红色幕墙板之间建立起了半调节的热缓冲空间。这个缓冲区有效减少了能源消耗,同时还能提供内部视野、引入自然光线。据设计团队称,该大学建筑的能源消耗预计将比国家能源指导方针规定还要少24%。
图纸

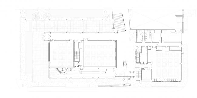
一层平面图

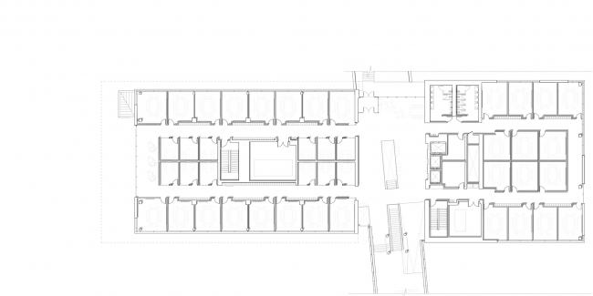
二层平面图

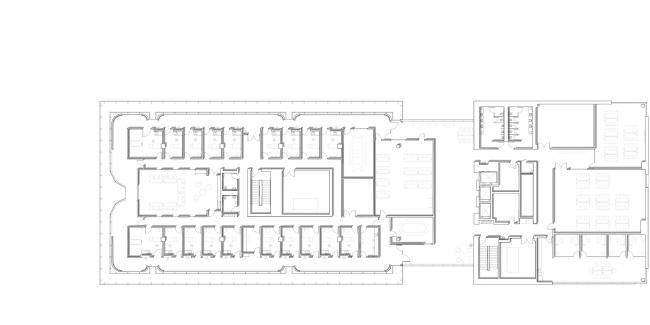
三层平面图

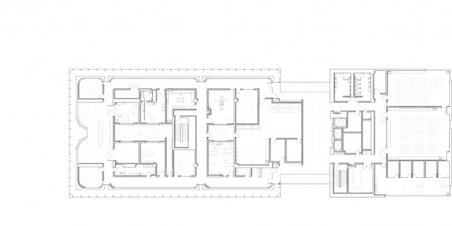
四层平面图

五层平面图

六层平面图

局部平面图

局部平面图
项目信息
建筑设计:CO Architects
执行建筑师:Helix Architecture + Design
业主:堪萨斯大学医学中心(KUMC)
总承包商:McCownGordon Construction
暖通工程师:Henderson Engineers
结构工程师:Bob D Campbell and Company
市政工程师:SK Design Group, Inc
景观设计:Land3 Studio
照明设计:Henderson Engineers
声学设计:The Sextant Group, Inc
艺术家:Miki Baird, Marcie Miller Gross, Jesse Small, and Jeremy Rockwell

BIM建筑网





评论前必须登录!
注册